R.A.W.設計工作室:打破邊界,輕鬆自由的社區咖啡場景
BLANC COFFEE by ATELIER RAW:Break boundaries and create a cozy café for the community
R.A.W.設計工作室呈上場景設計獨家理念,攜手新銳咖啡品牌BLANC COFFEE白藍可咖啡,通過向街區居民提供優質咖啡和開放輕鬆的社群空間,營造出可以隨意就坐的公園環境,消除原有的邊界感,讓有趣的事情自然而然地發生。
ATELIER RAW has collaborated with BLANC COFFEE, a rising coffee brand, to establish a café that offers an open and relaxing venue for coffee tasting that is open to the neighborhood community. Following a distinctive scene-oriented design concept, ATELIER RAW created a scene resembling a park where customers can relax and enjoy their coffee. The interior design was intended to eliminate the existing boundaries and foster an environment that would encourage natural interactions and allow for spontaneous moments to occur.
#01 平等開放的社區空間形態
Equal and open community space
項目場地位於上海市嘉定區一座開放式的社區型商場內街,空間處於一個室外騎樓的外廊內側深處,設計師希望這間店鋪可以將這種城市的“暗角”積極地介入到居民的生活中,讓店鋪成為這條街道向內的一種延伸,人們可以無拘束地進出,停留,也將街道中的生活氛圍帶入到室內。
The project is situated in the inner street of an open shopping center in a community in Jiading District, Shanghai. The store is located deep inside the corridor of an outdoor arcade. The designer intended to create a welcoming environment that actively engages people in this “dark corner” of the city. By seamlessly integrating the store with the street, people can easily come and go, stay, and enjoy the lively atmosphere of the community.
∇ 室外門頭 Shopfront
∇ 室內概覽 Interior view
∇ 剖麵圖 Section
室外挑廊下方既是招牌又是天花的斜麵,將灰空間都納入設計範圍,模糊了內外的界限。通透的推拉窗使得室內獲得了最大化的向外展示,吧台設置在顯眼位置,從室外就清晰可見,並且保證室內能夠最大限度地獲取采光。在完全打開時,室內與室外廊下的空間便連作一個整體,打造開敞自在的空間氛圍。
The bottom of the outdoor overhanging corridor has been ingeniously utilized to accommodate the shopfront and slope surface of the ceiling, creating a seamless blend between the interior and exterior. The sliding windows are transparent, allowing for maximum exposure of the interior to the outdoors. The bar counter has been strategically positioned to ensure it is clearly visible from the outside, and the space is flooded with natural light. When the windows are fully opened, the indoor and outdoor areas become one, creating a welcoming and comfortable atmosphere.
∇ 室外一側朝向室內 Outdoor space facing the interior
∇ 室外正麵看向室內 Interior view from the café frontage
∇ 門外卡座 Outdoor booth
∇ 軸測圖 Axonometric diagram
圍合的室內卡座為人們提供了一種視線交流的機會,營造出一種可以隨意就坐的公園般的舒適體驗,增進了咖啡師與客人,客人與客人的交流溝通。不鏽鋼桌的桌麵以花崗岩的材質與地麵呼應,表達出仿佛一部分地麵在漂浮的空間構想。
The indoor booths enclose the space to encourage eye contact among patrons, providing a comfortable and park-like experience where they can sit at their leisure. This space arrangement also fosters interaction between baristas and customers, as well as between customers themselves. The granite table surface of the stainless-steel table complements the flooring, resulting in a spatial design that creates an illusion that part of the floor is floating in the air.
∇ 座位區 Seating area
∇ 座位區的小桌 Small tables in the seating area
設計延續了BLANC COFFEE品牌專注於咖啡本身的精神,選擇三種主要材料構築空間底色:仿佛從大地生長出的石材,觸手可及高度的樺木多層板,天光照耀下輕盈的白色肌理,從而以極少材質與肌理獲得輕鬆自然的咖啡體驗空間。
The design stays true to BLANC COFFEE’s brand concept of focusing on the coffee itself. The space features three main materials: stones that seemingly grow from the earth, birch plywood within reach, and pale white textures that are accentuated by natural light. The combination of these materials creates a relaxed and natural ambiance that enhances the coffee experience.
利用燈膜與空間尺度,巧妙避開現有的吧台上方的管道較低的位置,設計師在落座區域營造出仿若自然天光的效果。人造天光的正下方是前吧台,咖啡師的主要操作空間,光影聚焦空間咖啡功能的中心,用設計敘述以咖啡為主角的日常故事。
The designer utilized an illuminated stretch ceiling and proper spatial proportions to skillfully avoid the lower position of the pipe above the bar counter. This arrangement creates an atmosphere in the seating area that feels like being under a natural skylight. The front bar counter, which serves as the primary operation area for baristas, is situated directly beneath the artificial daylight. This space functions as the hub for coffee preparation and consumption, where daily stories unfold with coffee as the main character.
∇ 從正門朝向操作台 The front door facing the counter
∇ 操作台內部朝向一側 The inner sides of the counters
∇ 吊頂天光 Illuminated stretch ceiling & 麵包展示區 Bread display area
#02 優雅節製的細部設計
Elegant and restrained details
在節點構造設計上,設計師選擇從最基本的構造方式出發,避免多餘的構件的幹擾。門窗框均采用僅15毫米寬的角鋼夾玻璃的製作方式,減少視線上的阻隔,打造清爽通透的空間質感。
The structural details of the design have been simplified by adopting a basic construction method, avoiding unnecessary components. The doors and windows have been crafted with 15mm wide steel frames inserted with glass, providing a clear sight and a refreshing and transparent atmosphere.
∇ 門把手細部 Door handle detail
吧台背景牆嵌入A柱,上方安置三角支架,以靈活的組織形式適應後期運營中調整展陳的需求。
The bar counter features embedded vertical shelf supports in its background wall, along with triangular brackets that form an adjustable floating shelf. This design allows for flexible display options that can easily adapt to the changing needs of the operation.
∇ 吧台細部 Counter detail
置物板與背景牆空出10公分的間隙,這一細節允許頂上燈光通過照到吧台,以極簡的構造呈現優雅的功能空間。置物板和三腳架通過鋼圓通穿插固定,顯露出穩固清晰的結構語言。
To ensure proper illumination on the counter, a gap of 10 cm between the floating shelf and the background wall was reserved to allow the light to be cast through. This minimalist structure results in an elegant functional space. The floating shelf and the bracket are fixed by steel dowels, making a stable and clearly visible structure.
∇ 操作台朝向座位區 Counter facing the seating area
∇ 操作台正麵 Front side of the counter
LOGO的呈現簡潔大方,不多修飾的白融合了品牌關注咖啡品質的核心理念,去除冗雜的設計引導人們關注真正重要的東西。
The brand’s core concept of prioritizing the quality of coffee is elegantly reflected in the simple and refined design of the logo, which features unmodified white. The thoughtful and concise design effectively guides customers to focus on what truly matters.
∇ LOGO
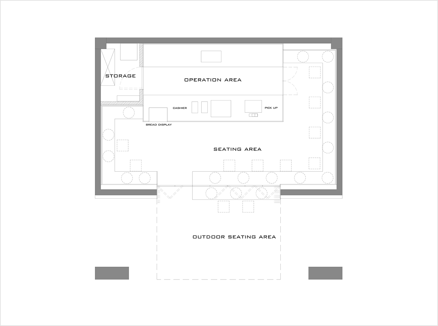
∇ 平麵圖 Plan
項目信息
項目名稱:BLANC COFFEE白藍可咖啡
項目地點:上海市嘉定區洪德路288弄8號樓102-2號
項目類型:咖啡店
項目麵積:40平方米
完工時間:2023年4月
設計範圍:室內設計/家具設計/燈光設計
設計公司:ATELIER RAW/R.A.W.設計工作室
主創設計:任培英
設計團隊:胡哲淶、儲明逸、杜玉鵬
項目攝影:閃電儲
VI設計:Studio O
Project name: BLANC COFFEE
Project location: No. 102-2, Building 8, Lane 288, Hongde Road, Jiading District, Shanghai
Project type: café
Project area: 40 square meters
Completion: April 2023
Design scope: Interior Design/Furniture Design/Lighting Design
Design firm: ATELIER RAW
Chief designer: Ren Peiying
Design team: Hu Zhelai, Chu Mingyi, Du Yupeng
Photography: Chu Mingyi
VI Design: Studio O




























