為了響應瑞典設計和建築事務所 Specific Generic 與挪威珠寶品牌 Tom Wood 之間長期持續的創意合作,該品牌在奧斯陸開設了新裝修的旗艦店。在這個簡約的空間中,湯姆·伍德 (Tom Wood) 對當代珠寶的富有遠見的方法找到了新的表達方式,呼應了對可持續解決方案和設計的共同承諾。
Specific Generic 此前曾於 2020 年與斯德哥爾摩的多學科設計機構合作設計了最初的旗艦店,現在再次與 Tom Wood 的創意總監 Mona Jensen 和首席執行官 Morten Isachsen 齊心協力,打造了一個提升空間的旗艦店,超越消費者體驗的空間。通過優雅與前沿設計的無縫融合,新空間體現了品牌的精髓。
Specific Generic 對功能性進行了深思熟慮,鋁和鋼等耐用且可回收的材料已被優先考慮,使該品牌能夠在未來幾年內進行改造或回收。
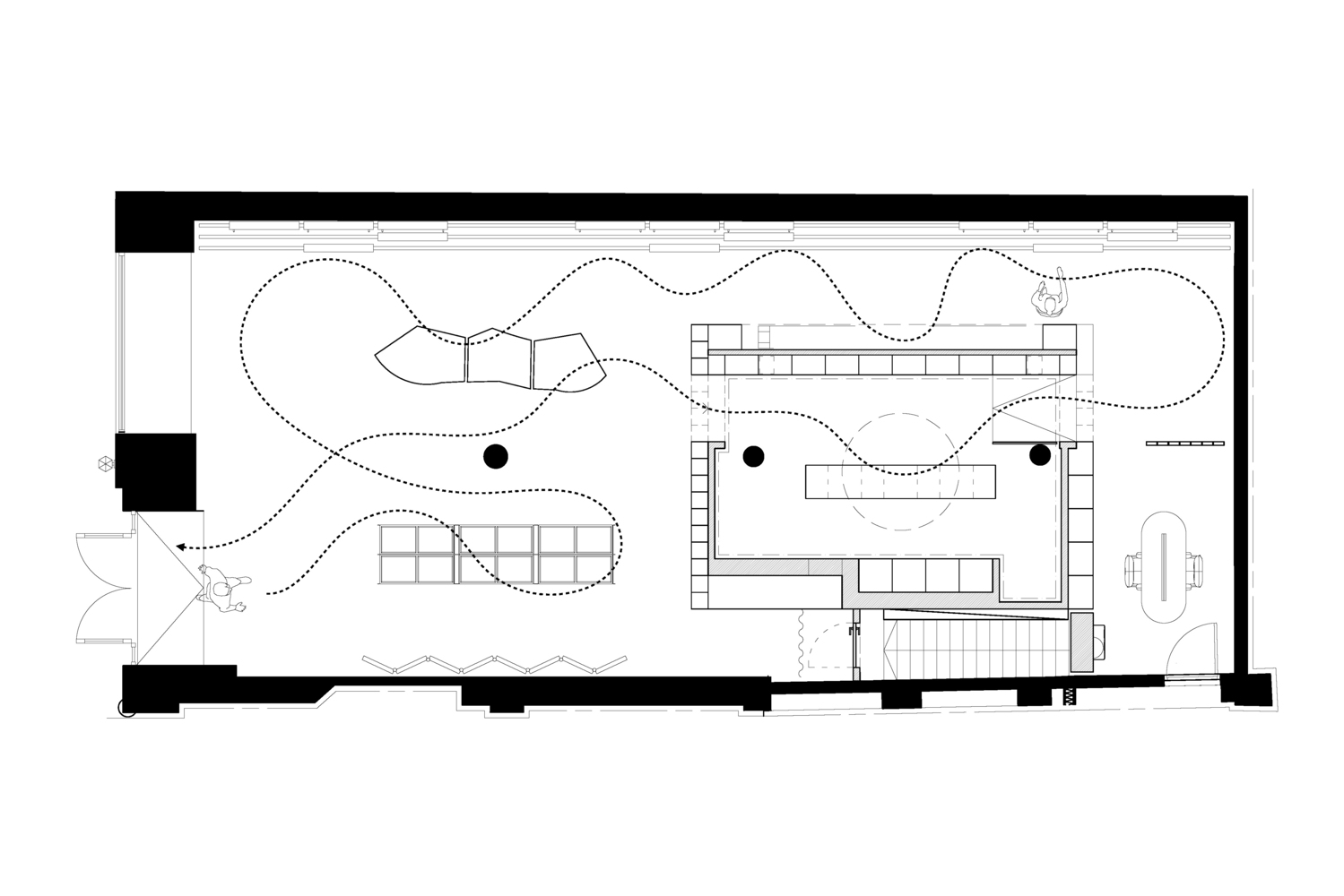
該空間的一個新的核心特征是 18 米長的柔性牆,由可移動的櫥櫃、鏡子和 LED 屏幕組成。這種設置迎合了不同季節變化的陳列,為商店體驗帶來靈活性和創新。顧客在該空間的旅程經過仔細考慮,讓每位訪客都能以一種非常個性化且有意義的方式接觸精致的珠寶首飾。
湯姆·伍德 (Tom Wood) 以其建築、自然和傳統風格的設計而聞名於世。奧斯陸旗艦店在該品牌成立十周年之際開業,標誌著一個重要的裏程碑,鞏固了該品牌作為當代珠寶全球領導者的地位。
Tom Wood 首席執行官 Morten Isachsen 表示:“我們非常高興地歡迎珠寶愛好者、建築鑒賞家和我們尊貴的客戶光臨我們的新旗艦店。” “這家商店不僅僅是一個零售空間;這是對我們品牌曆程、對藝術創新的承諾以及對提供成為人們故事一部分的珠寶的奉獻精神的慶祝。”
∇ 遊覽動線
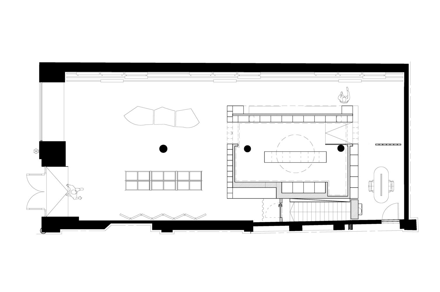
∇ 平麵圖
























