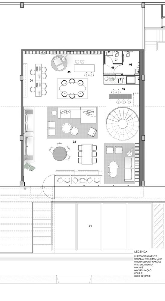
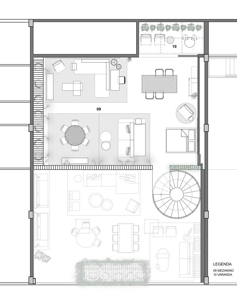
通過中性自然的色彩、創新的材質和紋理,極簡的空間讓每件產品都展現出其獨特性。中性色調和白底白字的概念貫穿商店的所有元素,增強了家具的飾麵、顏色和木質色調。在展廳的主軸線上,金屬雕刻的螺旋樓梯將底層與夾層連接起來,強化了整合和感官體驗的概念。
添加了白色金屬的鏤空元素,為上層貨架創造身份和支撐,讓自然光進入整個商店。鏤空元件麵板充當空間分隔符,為裸露的家具創造了突出的背景。這些元素中使用的材料是指飾麵和原材料。展廳的各個區域都布置了恰到好處的景觀,營造出溫馨宜人的氛圍,在家具展營造的環境中融入了公眾所追求的生活方式。
∇ 平麵圖
版權聲明:本站所有文章除投稿授權發布外,其他文字內容均為原創,享有著作權保護,未經許可不得以任何形式進行轉載(包括且不限於:媒體、網站、公眾號等)。所有項目照片/設計圖形版權歸原作者所有。本站部分內容源自網絡公開資源或用戶分享,如若侵犯了原作者的合法權益,可聯係我們進行處理。






























