前言
建築設計靈感來自於重工領域的燃料塔和噴射裝置,以“蓄能”與“噴發”的動勢統領創作。用凝練的語言轉譯為符號化的建築空間。契合美式複古銀飾品牌Rock&Ride的內核精神,富有激情與力量感,寓意給自由的騎士注入源源不斷的動力。
街區型商業的突破點在於開放的擁抱城市空間,營造良好的城市生活體驗。同時建築形象的打造需要平衡藝術性和全群體覆蓋的大眾包容度,這樣一來,極具辨識度的商業空間可以助力品牌的發聲和也為城市麵貌的更新注入新的活力。
一、 現狀與挑戰
項目位於深圳萬象天地,地處商業街入口同時也是人流聚集的核心地段,場地中央有一個保留的雨棚。如何處理新建築與城市的關係,如何平衡快閃店的“輕”與品牌的“重”,如何解決雨棚對建築形式的影響,是本項目的突破點。
∇ 場地原狀
∇ 概念分析
二、建築設計
我們首先將耐候鋼質感的圓柱滿鋪場地。場地雨棚麵向主街有一個懸挑趨勢,我們順勢而為,將建築主立麵後退至雨棚斜柱邊緣,地麵局部抬起,範圍延至場地紅線,最大化城市灰空間。主立麵上部體量則外挑,並被一個麵向主街翹起的斜麵切斷,漏出圓柱內部空腔,空腔內置入錐形金屬內壁,擬合噴射器的形態,並配上火焰般的燈光,將入口前場空間打亮,形成濃厚的氛圍感。主立麵懸挑部分的微微翹起,也保證了主街人流可以看到出挑雨棚下方的立麵表情,最大化立麵張力的呈現。建築背立麵麵向一片安靜的花園,於是此立麵采用低調沉穩的處理手法。
∇ 分析圖
三、建築的城市角色
街區型商業最大特點在於城市空間的體驗感。我們采用了以退為進的方式形成充足的城市灰空間,解決了快閃店人流高峰期室外排隊的遮陽避雨問題,同時將場地還給城市,用開放的態度擁抱公共人群,成為城市生活的發生地。這種“退”撕開了商業空間與城市空間的區隔,為室內空間創造了層次豐富的接口。
∇ 分析圖
∇ 分析圖
四、建築的商業角色
建築
建築通體采用耐候鋼飾麵漆,最大化快閃店的厚重感,創造最直給,最容易被公眾辨識的符號化形象。將品牌“輕”的快閃行為變成建築化的“重量級”發聲。將建築沿街麵完全打開,通過玻璃幕牆將室內商業氛圍展現給公眾,形成虹吸效應。頂部設置美式公路牌,突破建築限高將品牌信息傳達至整個商街。
∇ 長凳分析圖
室內
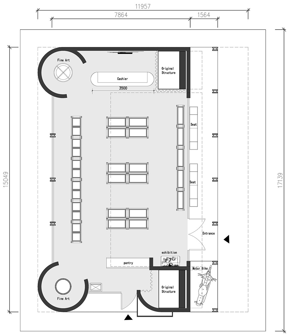
室內布局采用高效的布置方式,沿幕牆設置貼邊展櫃,最大化產品識別度。在環形動線的節點區域,將建築外部的圓柱體插入室內,與建築語言形成呼應,並在空腔內設置藝術裝置。在空間上空利用原始雨棚承重,懸掛二手波浪板製作的條狀天花,勾勒出空間走向,同時提升與外立麵呼應的粗糲感。裝置藝術家創作的機械心髒及花藝裝置則彌補了與銀飾呼應的精致感和靈動感,增加室內空間藝術氛圍和視覺記憶點。
五、母題的貫穿
從室內家具到城市座椅,再到Logo設計,都是圓柱符號的變體,母題的統一將設計的整體性提升到新的高度。
∇ logo設計
∇ 結構分析圖
∇ 總平麵圖
∇ 平麵圖
項目信息
項目名稱: Rock&Ride 深圳萬象天地快閃店設計
設計公司: WBS裏外工作室
公司所在地: 中國北京
項目完成年份: 2023.8
建築麵積: 170平米
項目地址: 深圳華潤萬象天地
主創建築師: 張哲
攝影師1: SFAP
攝影師2: UKstudio
建築及室內設計團隊: Summer Lv,Wicks Wang
裝置及花藝設計師:蔡韻涵
家具設計團隊:WBS裏外工作室
委托方: Rock&Ride












































