木,本質的溫潤性,應和了文雅從容,含而不露;木材的獨特紋理,應和了沉斂大氣,華而不奢。
隨著科技與木藝的碰撞,精工鍛造與手工細琢的相遇,賦予了木材本身更多的表現形式,作為專注於居家空間的木作高定品牌“蜂鳥木坊”,因追問木材本質而起,倡導功能主義的理性美學,希望通過嚴謹建構邏輯,打造一間與眾不同木作展廳。
#01
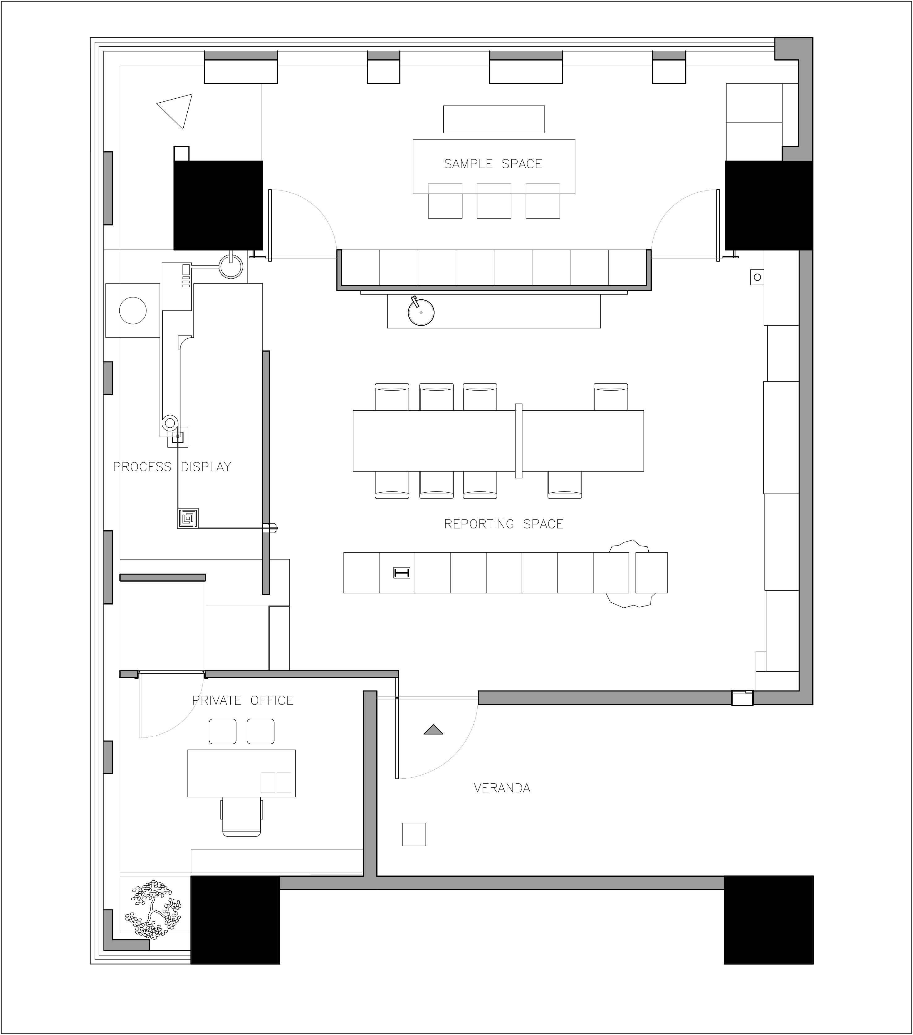
LOBBY / 門廳
入口處有較深的走廊,我們統一色係的材質,通過燈光把視線引入到木質裝置,點名空間主題。
我們希望設計的不是一個傳統的材料展廳,不用平鋪直敘的陳列和展示產品,我們更希望營造出一個用心體驗的空間,產品既是構成空間的材料本身,也是玩味與探索的試驗場。
#02
Corridor / 過廊
過廊左轉動線可以快速到辦公區域,對展廳不形成幹擾。
右轉動線,牆麵開洞引入光線,同時尺度更加開闊,利用工字鋼架懸空櫃子,讓瀏覽體驗變得更加豐富。
#03
Circular motion line / 回形動線
△回形動線
右動線到底,轉向後便可看到豐富的工藝牆麵與二進的門,作為空間區域的劃定。
圍繞中心的長台做了回形的布局,讓瀏覽和體驗變得更加順暢與豐富。
從過廊左轉動線望去,與右邊形成對稱關係的門洞,圍合與劃定的空間功能。
#04
Negotiation and reporting area / 洽談彙報區
中心的水泥長台將功能分為品茗洽談與彙報區,便於不同場景下的複合使用。
△斯卡帕解構
△斯卡帕作品截選
“斯卡帕展示的方式使展品成為空間的一部分,無法重組、移動,甚至虛無的光,都是藝術空間的細部,而它們本身也是富含細部的藝術品。這些細部都是渾然一體的,部分與整體用同一種語言在對話。”
— 布魯諾·塞維
我們將後厚重的石材通過比例的切割,所有的高差與片段形式,通過明確的等級、模數,形成固有秩序與對位關係,從而表達現代技術的力量感。
蓋板打開後,裏麵可隱藏電視插座與電源線。
我們希望通過局部的細節之美,表達背後的精工技法和五金品質。
#05
Process display / 工藝展示區
西方古典雕塑的黃金比例的結構美,流暢的線條美,克製的美與我們空間想表達的理性美學理念契合。
△左:柯布西耶朗香教堂 右:光線圖
教堂的開窗形狀和圖案並不是隨機任意的,基於黃金分割的比例係統以不同的角度讓光線進入,它引導著人類的心靈深處的思索,從抽象的感觸到對信仰的渴望。
光塑造了空間,營造了氛圍,也傳遞了空間表達的理念。
水是靈動的,無處不在,從一而終,周而複始,在理性硬朗的空間流淌著溫柔的感性。
#06
Sampling area / 選樣區
柱體比例,對稱的形式,秩序的樣板展示,自然光線與模擬的自然的光,營造木作材質源於自然,歸於自然感。
五金細節表達產品品質和匠心工藝。
一場緣起“伐木場”追問木作本源意義的空間得以敘事完整。
△功能爆炸圖
項目過程
△石材城淘石材
△設計師采擺
△logo雕琢
△logo塗色
△平麵布置
項目名稱:蜂鳥木坊
項目地址:安徽.合肥
設計公司:1890.STUDIO
設計總監:夏承龍
建築麵積:180m²
完成時間:2023.05
使用材料:做舊鋼板、微水泥、岩石、舊木板等
夏承龍
1890 STUDIO創始人兼設計總監,創辦10年帶領團隊服務於合肥及全國的客戶,我們倡導用建築思維的理性規劃空間,用藝術美學的感性營造生活,以功能為基礎,以情感為紐帶,以真實美學為導向,從居者內心出發,用當代設計手法賦予每個空間最真實的情感表達,為居住創造一種專屬的生活方式。
1890 STUDIO
成立於合肥的設計工作室,我們倡導用建築思維的理性規劃空間,用藝術美學的感性營造生活,以功能為基礎,以情感為紐帶,以真實美學為導向,從居者內心出發,用當代設計手法賦予每個空間最真實的情感表達,為居住創造一種專屬的生活方式。
















































