一場粗獷與柔軟的對話
店鋪原為一家牙科診所,現要改造成一家經營可再生紙巾類產品的便民社區零售店。門店將於8月8日開業,設計團隊和施工方努力協作,在一周的時間內,共同踐行一個理念:通過弱介入的方式,快速建造,在社區中創造出一個視覺上引人注目的商店。
弱介入的設計
“弱介入”設計,即弱化設計在空間中的主導成分,讓場地自帶一種不拘俗的原生感—粗糲與秩序並存,在滿足店鋪營業需求的同時達到再生可持續的意義。這一種模式帶給四口工作室對於傳統業態期望革新的零售店鋪設計有很多新的啟發,精簡設計語言,重視易構節點設計。
∇ 概念草圖
∇ 構成分析
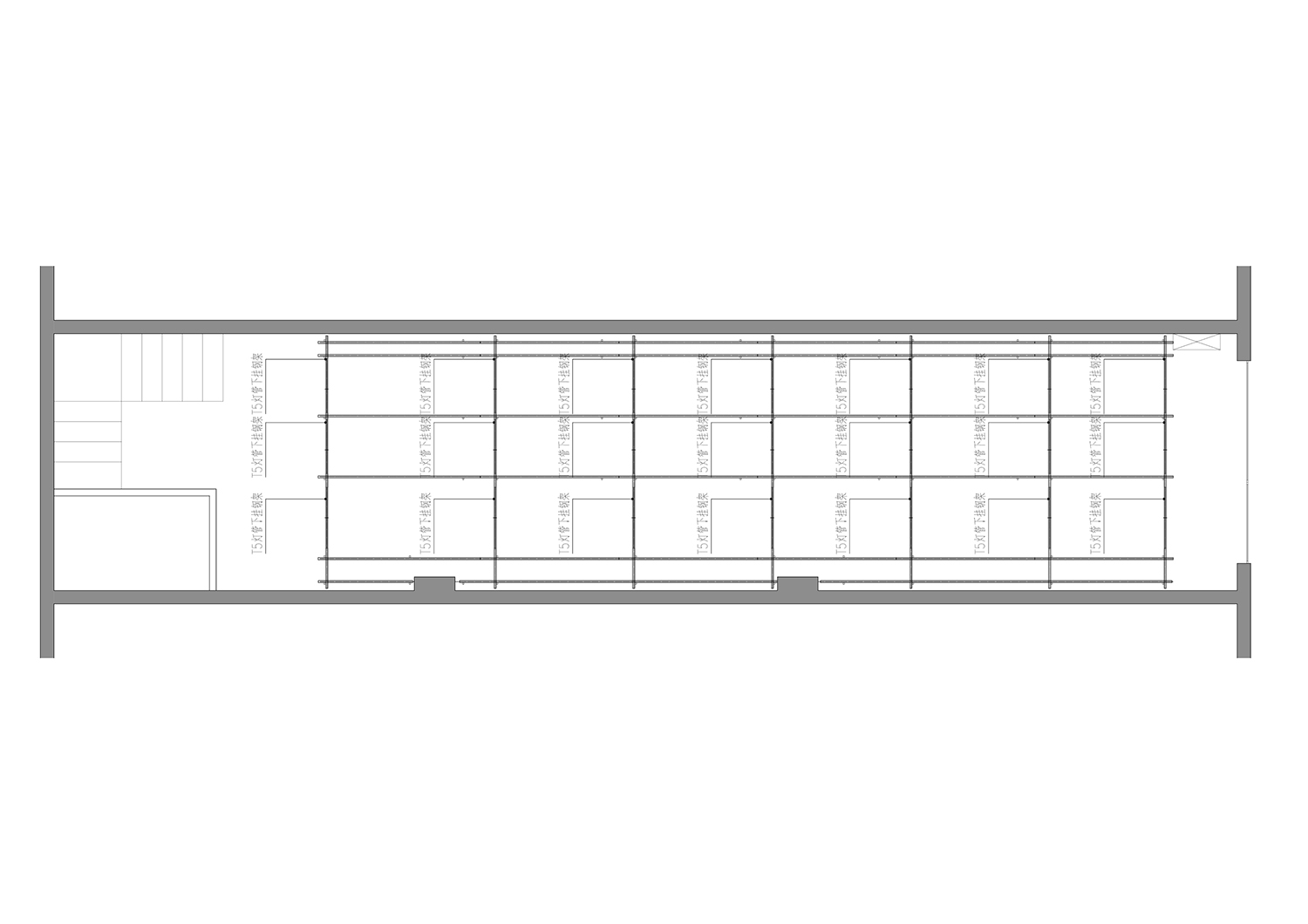
我們選擇將拆舊之後的牆體裸露,保留原有牆體斑駁的痕跡。在這樣的一個空間裏,利用腳手架的快速拚裝特性,整合一個集貨架、廣告、照明一體的新體係。在橫向的鋼管上架設由歐鬆板組裝的貨架,在豎向的鋼管設置用於宣傳的布藝廣告,頂部的橫向鋼管吊掛照明燈具。
∇ 原始牆體及腳手架施工
可循環的材料
基於再生可持續的原則,新店鋪在設計施工時,材料和資源的謹慎使用成為了重點。我們盡可能保留或再利用原本室內已有的材料,當不可避免需要使用新材料時,選擇就近便能獲取的可循環使用材料,減少時間和經費的浪費。
我們將拆舊剩餘的混凝土砌塊,重新進行布置砌築形成新的收銀台。利用砌塊的雙孔,放置音響和裝飾綠植。
我們在棉麻材質的布上印刷各式產品樣式和口號,掛於腳手架上,便於不定時更換廣告字樣;同理,在收銀台後方大麵積掛設部分,作為門店營業空間與後勤空間分隔。
我們在室內四周裸露的牆體上、拚裝的歐鬆板貨架上噴繪新的銘牌標識。
外延的立麵
店鋪所處社區對於外立麵有著嚴格的管控。在規定的範疇內,突顯店鋪的個性,達到精彩而不突兀的效果。我們沿用室內的鍍鋅鋼管元素,在立麵主體搭建外顯的腳手架。將金屬框架元素延伸出室外,將內外擬合統一。
結語
如果說呈現的是原始的空間,搭配上粗獷的結構形式,想要去兜售柔軟的產品。這一二三的衝突,是不是會有反轉的戲劇效果。所謂的立業,不都是從粗淺往精致的發展,但是最始也是最為用心時。
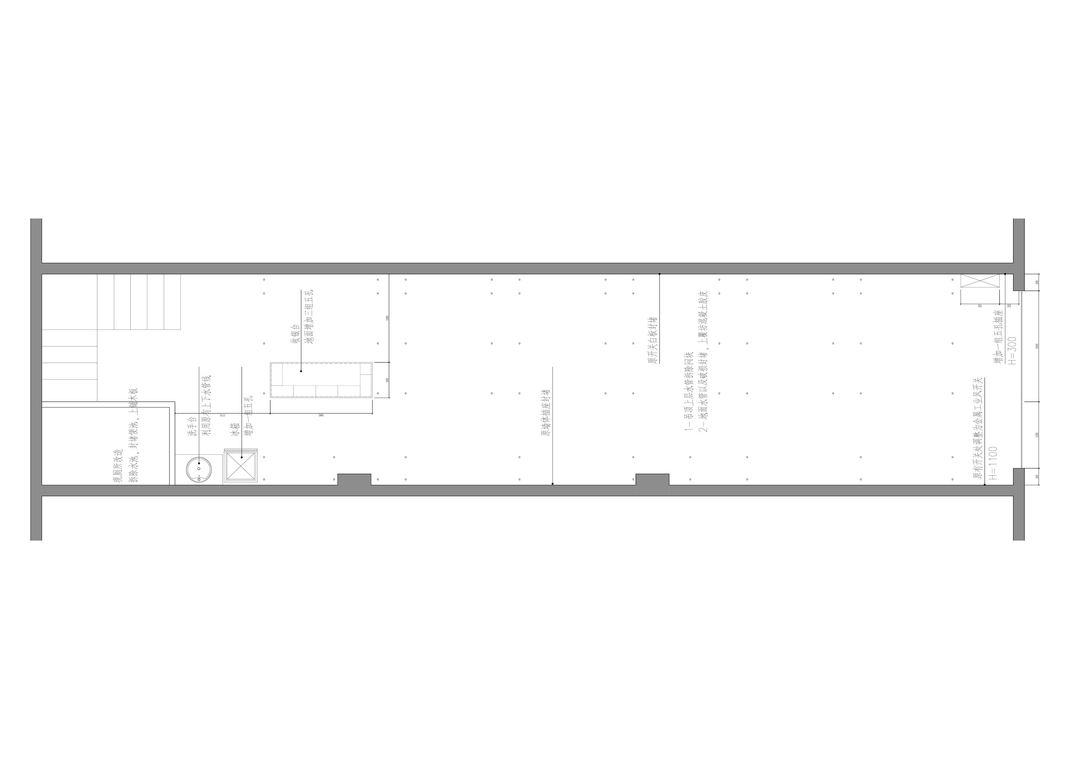
∇ 各標高布置圖
項目信息
項目名稱:雲瀾紙鋪
項目類型:室內設計
項目設計:2023.08
完成時間:2023.08
設計團隊:四口建築設計工作室
項目地址:浙江杭州
建築麵積:75㎡
項目造價:5萬
攝影版權:Smile
材料:歐鬆板、混凝土砌塊、鍍鋅鋼管腳手架


























