詩意盎然的法式複古畫卷
美在於自然景觀
與藝術表現的結合
—- 路易斯·巴拉幹
《紐約時報》編輯Amy M.Spindler曾經寫道:“無論誰在時裝界超過5年,都會覺得時尚的輪回重複,就像溺水的人回憶一幕幕生活片段一樣。”,放在私宅領域又何嚐不是呢,作為輪回首選的法式複古風格一直占據著風向標的位置。
// 設計理念– 法式複古+暖色係+自然舒適
∇ 客廳軸測圖
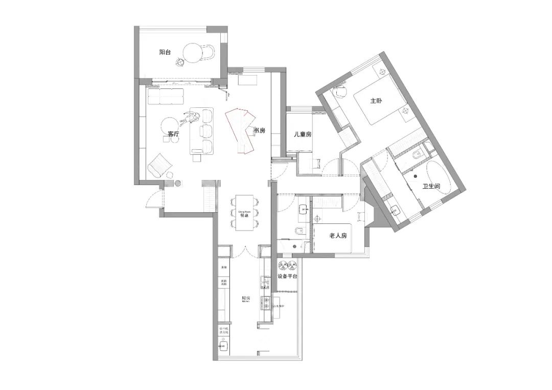
本案位於仁恒河濱花園,180㎡ 大平層,整體需全部拆除重改。屋主是一對年輕夫妻,熱愛生活,他們偏向於法式複古自然的風格,“Cozy,開放,慵懶,綠植,自然,環保”是他們日常喜愛的關鍵詞。
設計師以優雅浪漫的情調為畫筆,勾勒出了法式複古+自然舒適+暖色係的雅致生活空間,簡約不簡單的線條,結合柔軟明亮的配色,給家增加了溫馨氛圍。
// 客廳– 結構重組·一體化空間設計
頂麵圓弧造型的拱形門洞,在視覺上呈現出流暢之感,不同於直線造型的轉折死板,將各種角度的曲麵重組疊加後,呈現出的優雅弧度,很好的調和了客廳空間的靈動性,這個視角下的客廳,大氣又典雅。
∇ 客廳軸測圖
結構上,客廳重新布局規劃後,擴大了麵積,原客廳旁邊的小房間,牆體拆除後,規劃至客廳空間,原房間位置則作為開放式書房,與客廳歸為一體,增加了空間層次感與縱深感。
氛圍上,設計師根據屋主對法式複古的鍾愛,很好的把握住了色彩與內在的聯係,巧妙的將二人對法式的熱忱衍生為空間中的主要情緒,浪漫、慵懶、隨性。
簡潔硬朗的線條、精致柔美的家居、自然的質感、濃鬱大膽的配色,極賦藝術氣息,自由與迷人的悠然氛圍,為屋主演繹一場不褪色的日常浪漫。
// 書房– 可靜可動的開合式布局
考慮到平時辦公時需要專注安靜,設計師在書房與客廳間增加了隱藏式推拉折疊門,移門關上後,書房獨立存在,互不幹擾。
光影是大自然的饋贈,可開可合的多功能書房設計,靈活中將屋外的景色引入室內,用光與影的邂逅演繹空間形態,書櫃不同的裝飾藝術效果,亦能增添屋主的生活趣味。
// 餐廳– 人間煙火的溫柔浪漫
廚房外的北陽台,麵積寬敞,設計師將其充分利用,部分空間劃分至廚房,麵積獲得延伸,部分則作為功能房,可容納洗衣機、烘幹機、水池、空調外機設備等,若有客人到訪,視覺上,也可將晾洗的衣物隱藏起來,無形中擴大了空間的整體舒適度。
餐廳連接著廚房區域,渲染出人間煙火的氣息,活躍而自在。曲線門框造型,賦予了溫柔的力量美,層層遞進。
// 主臥– 高級又不失沉穩的治愈感
∇ 主臥軸測圖
法式半腰牆的設計、錯落有致的燈具、異形元素的掛畫、時代感極強的皮革材質,提升了主臥空間質感,張揚有度,又不失沉穩中,營造出一方寧靜舒緩的睡眠氛圍。
與客廳的柔美雅致呼應,深紅色破牆板、藝術壁紙等讓臥室變得鮮豔起來,滿溢複古的異國風情,帶給人很強的治愈感。
∇ 原始平麵圖
∇ 平麵布局圖
項目信息
項目地址丨Address:上海長寧
麵積丨Area:180㎡
設計單位丨Company:上海示覺室內設計事務所
服務方式丨Service:硬裝+軟裝全案設計服務,主材+軟裝代購及落地服務
攝影公司 | Pho:翰墨視覺 秦榴可
聯係方式 | Tel:19921398746










































