這座別墅位於波爾圖市一條與博阿維斯塔大道垂直的街道上,其建造方式保持了街道的對齊,包括牆壁、大門和百葉窗立麵,以保護用戶的隱私。
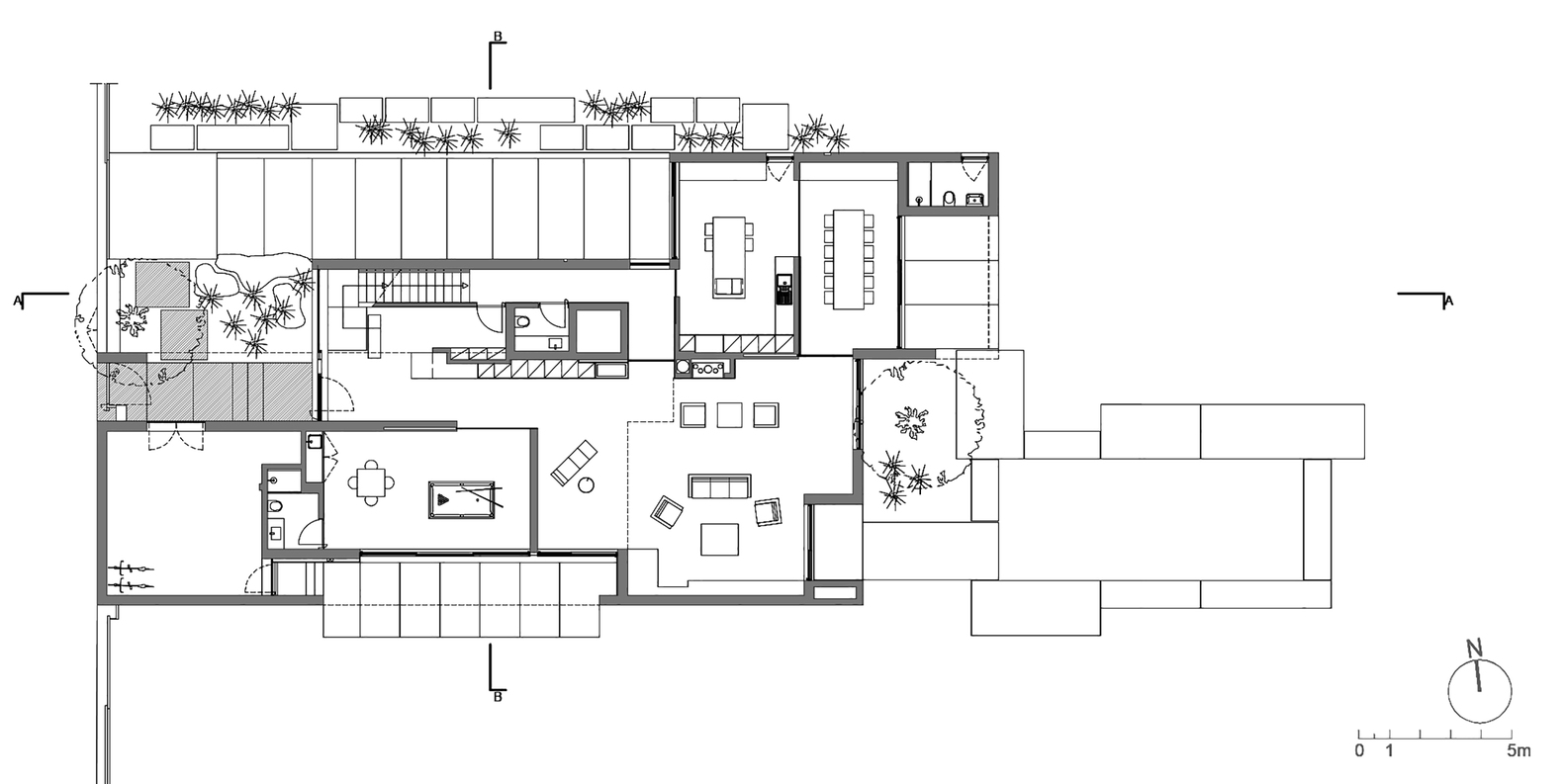
社交空間布置在一樓。從入口處可以看到整個房子通向花園的絕佳視野,分布著遊戲室、餐廳和客廳,後者擁有雙層高的天花板。鑲板樓梯中的隱藏通道可通往下層的廚房和服務空間 – 車庫、洗衣房、健身房和儲藏室。
在底層,所有窗戶都通向花園。客廳裏有一個巨大的垂直開口,周圍有一棵樟樹和一棵百年雪鬆。這扇窗戶的垂直度覆蓋整個天花板的高度,與帶有淺浮雕圖案的白色混凝土煙囪的體積相呼應。其他開口引導著花園和遊泳池的視線,與為夏季享受而創建的有頂室外空間連續。
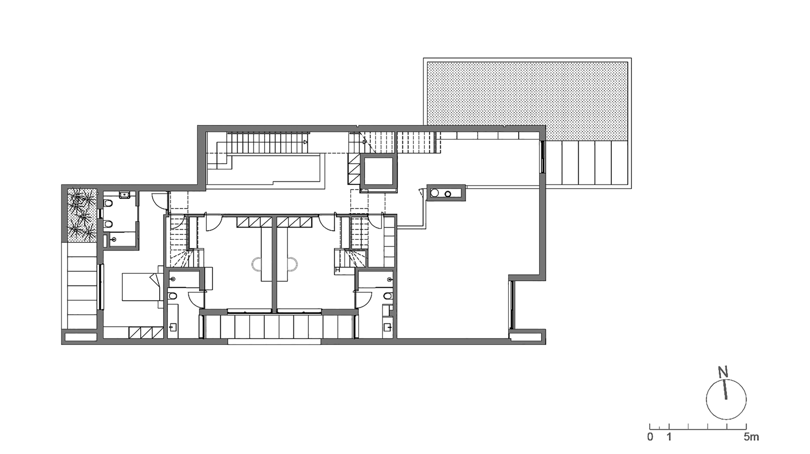
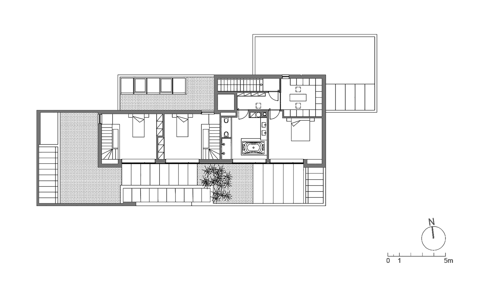
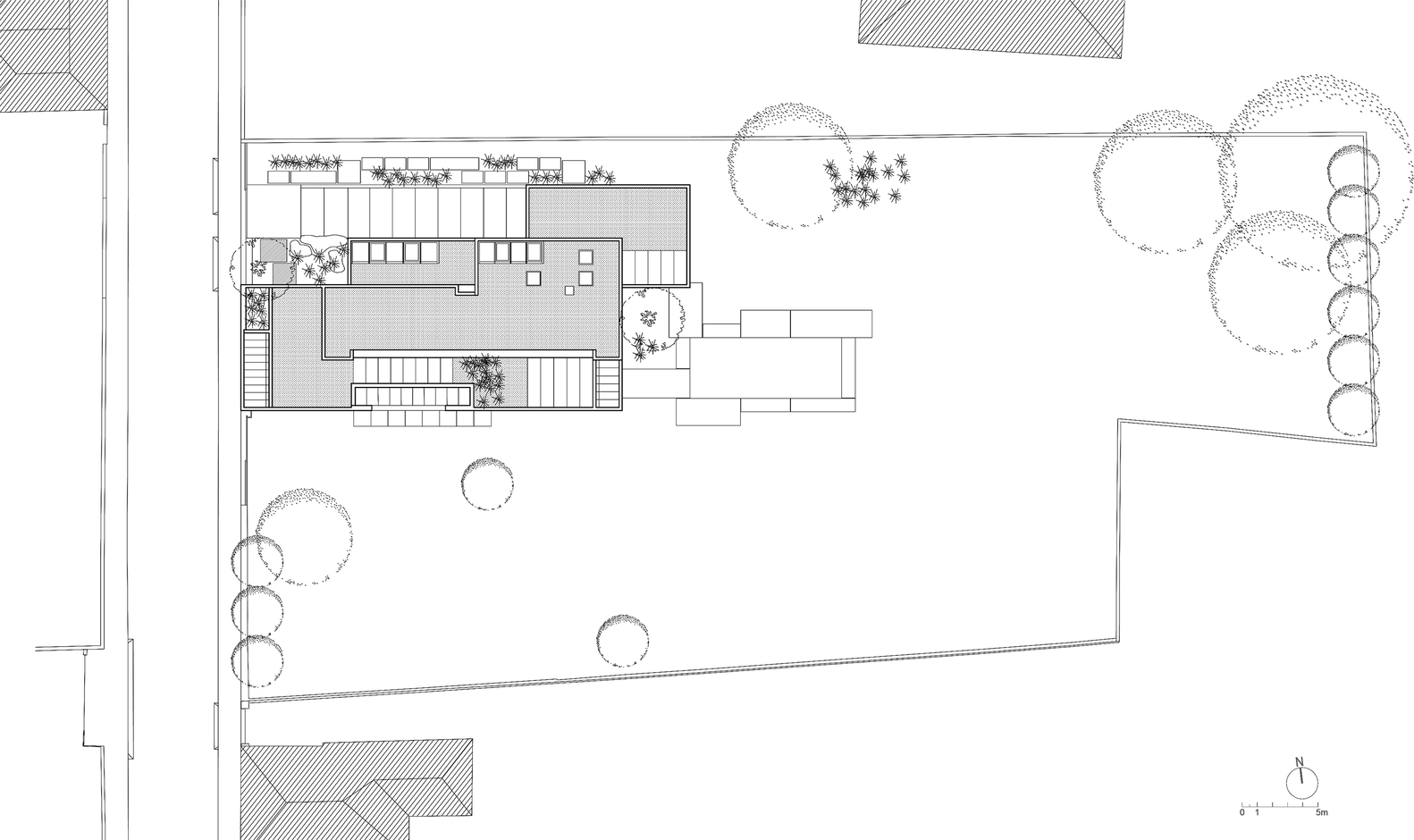
∇ 平麵圖
∇ 手繪草圖
版權聲明:本站所有文章除投稿授權發布外,其他文字內容均為原創,享有著作權保護,未經許可不得以任何形式進行轉載(包括且不限於:媒體、網站、公眾號等)。所有項目照片/設計圖形版權歸原作者所有。本站部分內容源自網絡公開資源或用戶分享,如若侵犯了原作者的合法權益,可聯係我們進行處理。




































