這是品牌的延續與創新的故事,本次設計保留品牌固定設計元素(前設計單位優秀的元素保留)融合創新於醫美院感體驗。
This is the story of brand continuity and innovation. This design retains the fixed design elements of the brand (the excellent elements of the former design unit are retained) and integrates innovation into the hospital experience.
極簡白色的夢幻空間,融合多元素的科技體創新,突出品牌精神。
The minimalist white dream space integrates multi-element scientific and technological innovation and highlights the brand spirit.
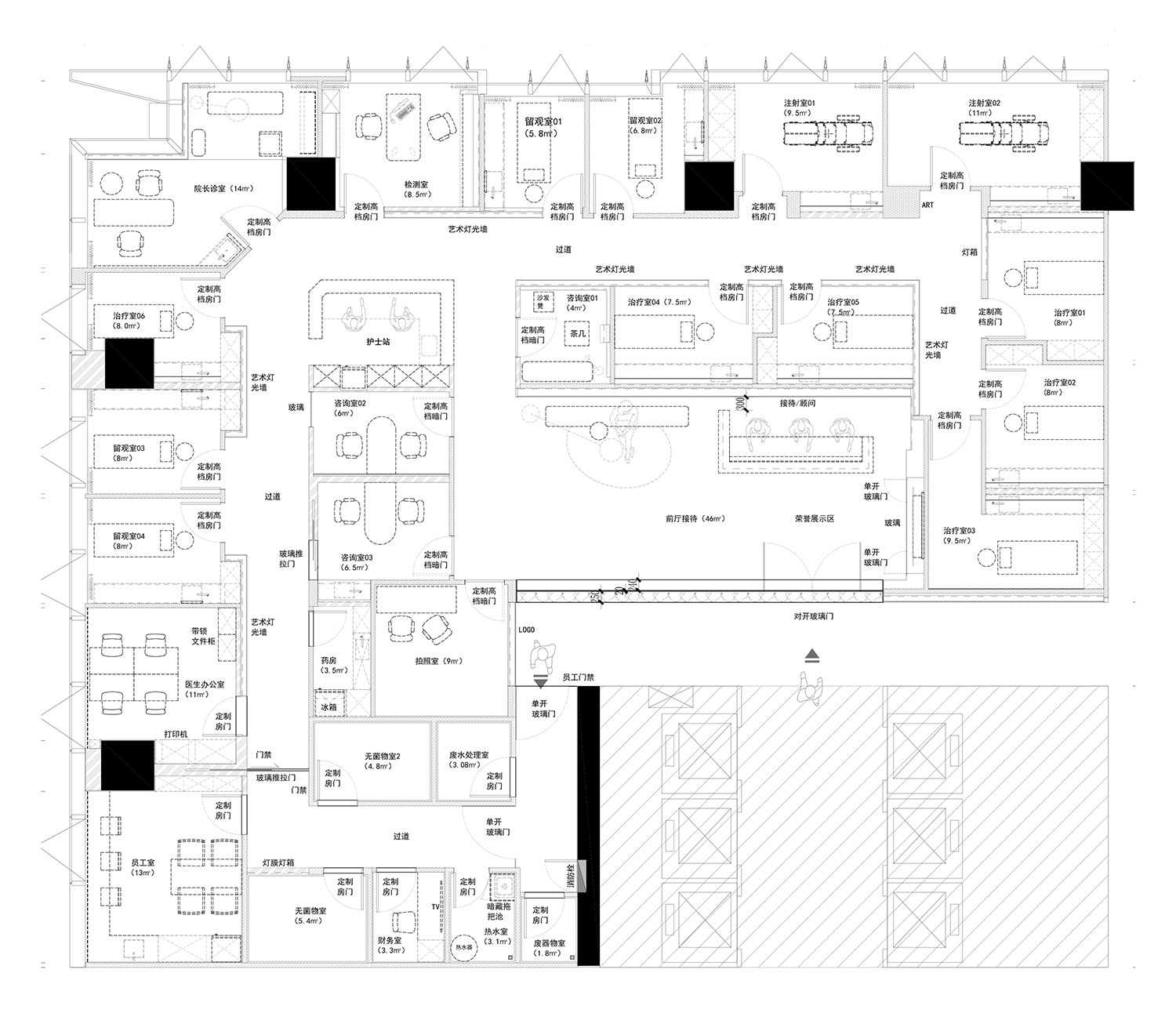
350平的空間中需要置入多個功能需求及合理的運營動線,共計大小空間27間通過多次推敲,進行合理布局。
空間設計中燈光及負荷非常具有挑戰,白色係的空間考慮空間燈光層次且不能曝光成了最大難度,另整個空間燈光均置入智 能控製係統,多場景控製且需考慮運營負荷壓力。
空間中所有房間均不設置門鎖及拉手,通過閉門係統、門禁係統、智能係統共同協調完成控製,進入房間時工作人員通過門 卡識別開門,門禁係統隱藏於門標導示中,功能與美學完美結合。
醫美不同於其它美膚空間,在及其嚴格的行業驗收標準限定內創意
Medical beauty is different from other beauty spaces, and it is creative within the limits of its strict industry acceptance standards
場景采用智能科技元素、折射與對稱的衍生構成
The scene is composed of intelligent technological elements, refraction and symmetry
當客人進入房間後,智能係統會通過不同場景提供燈光氛圍、音響係統、空調係統等,同時門外門標導示燈會亮起,提示房 間已有客人。當客人離開房間時,智能係統會啟動離開模式,完美體現全智能化互動體驗感。
境遇、停留、於蛻變———
Circumstances, stay, change———
人與空間、探與隱—-創造自由的無限想象
Man and space, exploration and concealment — infinite imagination of creating freedom
∇ 平麵圖
項目信息
項目名稱:科麗研肌科美醫療美容診所 CLINSKIN
項目地址:廣東深圳大衝商務中心
室內麵積:350㎡
項目類型:科技醫美
設計內容:室內設計、展櫃設計、燈光設計、軟裝設計
設計時間:2021.9—2021.10
施工時間:2021.10—2022.06
室內 | 設計團隊:KAIPAI | 凱派 DESIGN
設計團隊:王晨凱、崔祥玉、丁慕華
施工團隊:深圳凱派裝飾工程有限公司
材料:噴砂灰鋼、鏡麵不鏽鋼、藝術玻璃、A級燈膜、磨砂亞克力、岩板、藝術塗料
攝影:江南|建築空間攝影




























