01/Chapter 1
神話·伊甸|戲劇性維度衝突
Commercial Eden|A Dramatic Contrast in Dimension
隨著經濟和時代的發展,越來越多的高級餐廳正在讓藝術成為一種精神食糧,使得料理本身的風味和藝術帶來的附加值產生“共鳴”,而餐廳也逐漸成為全新的藝術場域。正如意大利詩人菲利波·托馬索·馬裏內蒂(Filippo Tommaso Marinetti)在【未來主義的烹飪書】中所表示,食物的消費和準備過程並不是為了充饑,而是一次精彩的藝術體驗過程。本案品牌創始人是市場投資參與者,在三角鏈中扮演了投資者與運營者的角色,將收益產品植入整個遊樂場內盤活,扮演著日料餐飲的實踐者。
As the economy and society continue to evolve, an increasing number of upscale restaurants are incorporating artistic elements into their dining spaces to provide a spiritual nourishment that complements the flavors of their cuisine. This trend has transformed restaurants into new art venues. In his book, Manifesto of Futurist Cooking, Italian poet Filippo Tommaso Marinetti suggested that some food on the table were not to be eaten, but to be appreciated as a work of art. He believed that the process of preparing and consuming food should be a delightful artistic experience rather than just a means of satisfying hunger. The founder of EVER BOOM is a practitioner of Japanese cuisine and has experience as a market investor and operator, who is good at vitalizing profitable products by integrating them into the market.
02/Chapter 2
文化·破壁|神秘場域的醞釀
Cultural Breakthrough|Create a Mysterious Field
華燈初上,燈火一星一點亮了起來,門上的“虹”字LOGO麵向燈火輝煌的商業區,反射出燦燦金光;像是黑暗中出現火焰的光亮,影影灼灼,引導著尋訪來此的人;光影交落漸淡漸現,又平添幾分望不穿的朦朧交織與神秘未來感,戶外就餐花箱區植被為產品動線賦予氧氣。
Located in Houhai Harbour, EVER BOOM’s front door emits a warm glow from its Japanese family crest logo, inviting customers to explore what lies beyond. The interplay of light and shadow on the solid door creates a sense of mystery, adding to the anticipation of what’s inside. The greenery in the outdoor planters adds vibrancy to the entrance area.
「常虹」坐落於青年文化破壁+優質內容出圈且自帶“流量”入場的後海彙,對“青年文化”的孵化與運營,可以稱得上是商業地產界的一個典型案例,在當下深圳市場相對獨特。中芯的土地需要中芯的商業綜合體,中芯生活是對於城市中心資源的占有,在這樣的區位下,後海片區所吸引的都是具有代表性的高質量年輕新中產。
EVER BOOM is situated in Houhai Harbour, a youth-oriented mall characterized by a youth culture that breaks down barriers with high-quality content to stand out to attract young customers. The incubation and operation of the “youth culture” of Houhai Harbour is exemplary in the commercial property field, making it an unique complex in Shenzhen. It’s located in Houhai District, a new CBD in the Greater Bay Area that needs top commercial complexes to foster a high-quality lifestyle by the use of favorable urban center resources, to serve young elite customers and the new middle class.
空中商業連廊連片在後海這樣一個麵向灣區經濟的前沿陣地,聚焦總部企業創新型技術產業,身處其中的客群必然也更具創造性與前瞻視野。「常虹」結合Mall的商業形態,將商業餐飲空間擴維,融合“網紅經濟、夜經濟、體驗經濟、社群經濟”,打造了四大主題商業運營全案策劃貫連。「常虹」儼然已經成為後海彙的又一張潛力性商業餐飲名片,以神秘場域的醞釀在整個商場業態鏈條中破壁。
As an economic hub in the Greater Bay Area that agglomerates innovative technology enterprises, Houhai District is planned with a network of commercial corridors to serve creative and forward-looking customer groups. Based on the commercial form of the mall, EVER BOOM integrates the internet celebrity economy, night economy, experience economy, and community economy to shape its business operations. With its unique atmosphere, EVER BOOM has become an iconic catering destination at Houhai Harbour, standing out in the entire shopping mall.
03/Chapter 3
場域·食饕|開啟暗夜七宗罪
Venue of Banquet|The Bold and Dark Scene
從注重短期效益,轉向更關注長期效益。我們在前期的全案規劃設計中兼顧業主更為長遠的需求,並與後期的運營、管理、維護等方麵互相結合。一是空間導向的環境改造VS資本導向的經濟激活。AD建築團隊把空間當底盤,關注形象或風貌,但是否思考背後的經濟邏輯?資產怎麼激活?也許這才是符合時代“戲劇性”設計的奧義。以接待處為開場,於接待區開始便被設計師重新定義並精心詮釋,現代都市人文的奢享餐飲與儀式感,就此緩緩滲入……
As approaching the project, AD ARCHITECTURE shifted its focus from short-term gains to long-term benefits by considering the owner’s future needs during the early stages of planning and design. The design team also took into account the later stages of operation, management, and maintenance. One of the main challenges was finding a balance between environmental transformation and economic activation. AD ARCHITECTURE managed to enhance the overall image and style of the space while keeping in mind the economic logic behind it and how to activate the brand’s assets. The team adopted “dramatic” design that aligns with the current times. The reception area is reinterpreted, to incorporate a sense of ceremony into luxury dining and create a captivating experience at the start of the journey into the restaurant.
場劇:對戲劇場所感的界定,不僅止乎於元素的表象,而是對於空間建造的氣場的營造。有限製的自由構造的手法,圍合,穿透,而又衝突,再糅合,再升華。光影在構造中塑形,神秘“場域”的醞釀 ,是構造場所感的核心。將主體營造的場地精神,盡致的契合空間的氣場,進而影響中餐餐宴的客場力量,或沉浸,或靜謐,或隱現……
A drama: defining the dramatic sense beyond the mere presence of its elements, but the ambiance created within the space. The restricted but boundless construction techniques, enclosed, penetrated, and then conflicted and blended, and finally sublimated. The interplay of light and shadow shaped the structure, creating the mysterious “realm”, the core of defining the identity of place. The spirit of place, blend seamlessly with the aura of the space, thereby influencing the energy and mood of its patrons, immersive, quiet, or indistinct…
04/Chapter 4
筳饗·如錦|拓展舌尖空間維度
Fine Dining|Expand the Space Dimension of Restaurant
「常虹」整體保留傳統日式風味,同時結合法式前沿創新並融入中國元素與烹飪方式,用神話美學【聖經】完善高端餐飲靈魂,營造具有神話場景戲劇性與當代藝術感的用餐空間。選址上梳理此商業綜合體近三年的市場動作,後海彙更多的是以一個“優質內容產出者”的身份,深挖當代青年消費者的思潮與真實訴求。
EVER BOOM offers a unique dining experience that combines traditional Japanese flavors with cutting-edge French innovations, while also incorporating Chinese elements and cooking methods. The restaurant’s mythological aesthetics and contemporary art provide a dramatic and immersive atmosphere for fine dining. Over the past three years, Houhai Harbour, a commercial complex where EVER BOOM stands, has positioned itself as a “high-quality content producer” that caters to the needs and demands of contemporary young consumers.
產權運營模式改變空間產品邏輯,創始人瞄準新青年經濟運行「常虹」,在產權重組的趨勢下,通過創新餐飲空間資產化設計和市場化運營完善空間經濟。經濟要素流動空間將進一步拓展商業空間的維度,創造新的餐飲黑馬空間是這次AD團體與業主的合力唯一目標。常虹的沉浸式藝術氛圍不僅體現在空間內,菜單也貼合整體日式韻味的藝術審美哲學。在創始人看來,日料的靈魂除了廚師,材質既貼合東京美學文人士大夫的風流雅致,又有市井食肆的活色生香,其優雅的飲食藝術穿越時空,亦能與源遠流長的東京匠人精神形成對照。
The founder of EVER BOOM has adapted to the trend of property rights reorganization and aims to capture the new youth economy market. As the property rights operation model changes the space design logic, the design team proposed an innovative space design strategy that improves the spatial economy through an asset-based design approach and market-oriented operation method of the restaurant. Using economic factors to expand the dimension of the commercial space, AD ARCHITECTURE intended to make the restaurant a dark horse in the catering market. The immersive artistic atmosphere of EVER BOOM is not only reflected in the space. The menu is designed to reflect the overall Japanese artistic aesthetic philosophy, with a focus on the elegance of Japanese aesthetic literati and the lively ordinary life scene in Japan. The refined food art is served in precious utensils and echoes the spirit of Japanese craftsmen with a long history of the same origin.
05/Chapter 5
升華·撒旦|血腥的美麗穿越周期
Satanic Drama|Bloody Beauty Across Time
“天堂”與“地獄”詮釋了血腥的美麗,這一化學分子在空間的一幀一鏡中升華場所。開放式大廳分布著的就餐區呈異形開放式布局,在社交情緒中營造安全的距離感。一方麵在分段式社交場所做出回流動線鋪設,另一方麵,空間在其高雅、混合、與混沌光影的暈染下形成混沌的雅奢品牌基調。空間整體基調呈黑紅,Omakase首個操作台設置在餐廳的中心,是餐廳的第一個功能視覺焦點,服務於餐廳全部桌席的附屬功能,選擇了離每個區域最近的位置,滿足功能性的同時強調一種開放式神秘場域的空間情緒。與很多日料的平和不同,這是一種幽靜與美好,嵌入了現代日式傳統的另類精神。
Like “Heaven” and “Hell”, the venue boasts a bloody yet beautiful ambiance, where every subtle detail defines the sense of place. The open hall features a unique layout of the dining area, creating an atmosphere with a sense of distance formed by social emotions. The circulation design lays out the physical form for segmented social places, while the elegant, mixed, and blurred lighting effect creates a luxury brand image with the force of chaos. The Omakase operational counter, located in the center of the black and red space, serves as the first functional visual focus and provides auxiliary functions for all seating areas. Its location closest to each dining area maximizes its functions and emphasizes an open spatial mood in the mysterious field. Unlike many other Japanese restaurants, EVER BOOM is tranquil and beautiful, incorporating a distinctive style of modern Japanese spirit.
隻有市場回歸理性,產品力的重要性才會被看見。回撤的時候,還能否有持續的產品創新呢?由此,厚積薄發、博觀約取,可以說是本次項目發布的主要內核。這場“硬氣”的撒旦戲劇得以完整上演,緣於業主攜AD團隊基於市場需求順應市場。中場空間布局方麵,設計師預設了三角鏈島台,回旋分隔人流,吞噬著饕殄的同時,感受空間劇場分子細膩的流竄,色香味俱全,升華場域。
The importance of having a powerful product can only be fully realized when the market returns to rationality. Continuous product innovation based on profound knowledge is crucial for the success of any project. In this project, the client and AD ARCHITECTURE adapted to the market demand, resulting in a “strong-willed” satanic drama that was fully staged. The designers also added a playful triangle island in the middle of the space layout to separate the flow of people. Patrons can enjoy delicious food while experiencing the delicate dramatic vibe of the space, which satisfies both their senses and spirit.
06/Chapter 6
叢林·法則|雷鮑夫法則的人生哲學
Law of the Jungle|Life Philosophy
【城市基因】中鍛造城市級餐飲的生態位令空間生而熱烈,往深處走,隱藏在空間深部布局的是包廂位,操作台上的饕殄儲備與消費者的不同體驗形成鮮明對比,場景感十足,形成客主位轉換視角體驗空間場域。空間基礎結構除了弧線與線條以及材質外,在肌理勾畫上將“城市脈像”的戲劇性勾畫至空間各處,站在景觀包房內著眼高樓鄰立,坐擁後海彙的城市叢林法則表演。
EVER BOOM embodies the urban genes of Shenzhen, creating a bold and lively dining atmosphere. The VIP rooms are located deep within the restaurant while the operational counter provides an impressive display of the food and ingredients, providing patrons with rich experiences by altering the perspectives. The restaurant’s design incorporates the curves, lines, and materials of the basic structure, with textures that outline the dramatic sense of the “city context” all over the space. From the VIP room, customers can enjoy a view of the nearby high-rise buildings, observing the law of the jungle that is staged in Houhai Harbour.
空間中石材質感漆的牆麵與蝕刻金屬的碰撞,使空間在舒適中透露出高奢感。在柔和光線的襯托下,愈加顯現空間的分量感。大麵積落地玻璃將幕景與場域疊加,重體量的倒置感在具象的矛盾與抽象的平衡中傳遞空間的戲劇性。空間的狀態表達則是思考分析中摸索出的已知答案。曲線的力量塑造出流動的感知,蘊含著設計師對生命本質的思考,它串聯起理性空間和感性認知,立足當下,敬畏天地,更指引我們追尋天地生存環境的法則。
The space exudes an air of luxury and comfort because of the collision between the stone-texture paint wall and etched metal. The soft lighting further enhances the ambiance, creating a sense of weight in the area. The floor-to-ceiling glass makes the scene and field superpose, and the inversion of a heavy volume results in a dramatic yet balanced feeling. The designers’ exploration of thinking and analysis is evident in the expression of the space. The power of the curve creates fluidity, reflecting the designers’ thinking on the essence of life. The space connects rationality and sensibility, respecting the world and guiding people to pursue the law of the environment based on the present.
07/Chapter 7
一路·常虹|達爾文式的進化
EVER BOOM|Darwin-style Evolution
收官區域為空間重頭戲,達爾文式進化出有別於市場場域的神秘性。石材與地麵鋪裝、大麵積鐵鏽漆覆蓋、操作台搭配實木深色大山紋餐椅和斧鑿麵背景牆,整體空間材質偏向於沉穩,賦予空間神秘的質感。功能性裝置老船木與局部細節相互呼應,含蓄的表達了商業空間淡墨的優雅。大麵積運用質樸粗曠的洞石和沉穩的色調,幹淨大氣的硯石有序排列鋪述層次美感,使得空間體塊的穿插烘托界麵的整體性,營造出沉穩優雅的氣質。階段性產品持續提升產品力是我們一直都在做的事,我們隻是選擇在合適的時機讓人們看見它,順應市場表達品牌理念,從而增加品牌和顧客之間的深度聯結,獲得消費群體的青睞。
At the end area of the space, EVER BOOM highlights Darwinian evolution with distinctive and mysterious textures. The use of stone materials on the floor and wall, a large area of rust feature paint, black wooden chairs with mountain patterns around the operational counter, and a chiseled background wall all contribute to this intention. The functional old timber installation echoes the space details, implicitly expressing the elegance of the commercial space. The large area of plain and rough travertine and calm tones, along with the clean and dignified arrangement of inkstones, creates a layered aesthetic that highlights the integrity of the interior surfaces, resulting in a calm and elegant space. AD ARCHITECTURE has successfully expressed the brand concept in response to the market, creating a deep connection between the brand and customers and helping the brand to win the favor of consumer groups.
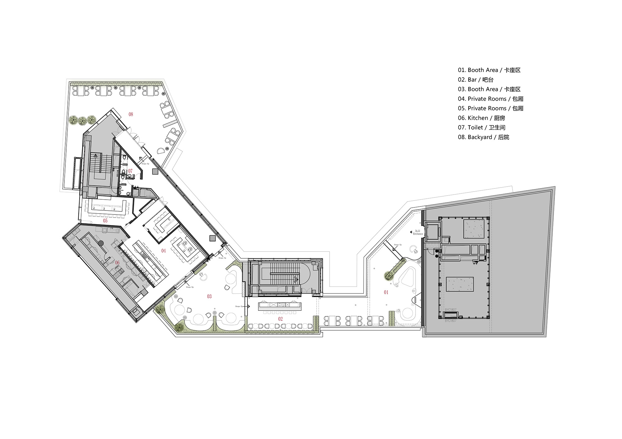
∇ 平麵圖 © 艾克建築設計 Plan © AD ARCHITECTURE
項目信息
項目名稱:「常虹」·鐵板料理(深圳店)
項目業主:常虹鐵板料理餐飲
項目地點:深圳
建築麵積:800 m2
設計時間:2023年1月
竣工時間:2023年7月
設計機構:AD ARCHITECTURE|艾克建築設計
官方郵箱:office@arch-ad.com
總設計師:謝培河
主要材料:金屬網、日本紙、亞克力、液態金屬、斧鑿麵石材、漆黑岩板、啞麵金屬、柔砂麵玻璃、戶外地板、灰麻(火燒麵)、肌理漆【黑色氟碳漆、鐵鏽漆、意大利手工漆】
項目攝影:歐陽雲
Project name: EVER BOOM, SHENZHEN
Client: Shenzhen EVER BOOM Catering Co., Ltd.
Location: Shenzhen
Area: 800 sqm
Design time: January 2023
Completion time: July 2023
Design firm: AD ARCHITECTURE
Email: office@arch-ad.com
Chief designer: Xie Peihe
Main materials: metal mesh, Japanese paper, acrylic, liquid metal, chiseled stone, black sintered stone, matte metal, frosted glass, outdoor flooring, gray granite (flamed surface), textured paint (black fluorocarbon paint, rust feature paint, Italian handmade paint)
Photography: Ouyang Yun









































