別墅為一對有年幼子女的年輕夫婦建立,以永恒之家為設計基礎,別墅麵積近1400㎡。這個大的住宅有一個金屬結構,可以使用更薄的板材,使水平板材更輕,以及更高品質的材料。建築項目中最引人注目的元素之一是內部與外部的融合,開放式花園改善了住宅項目的環境。入口路線是通過一個花園,私密區域位於上層、社交區域在底層。
∇ 平麵圖
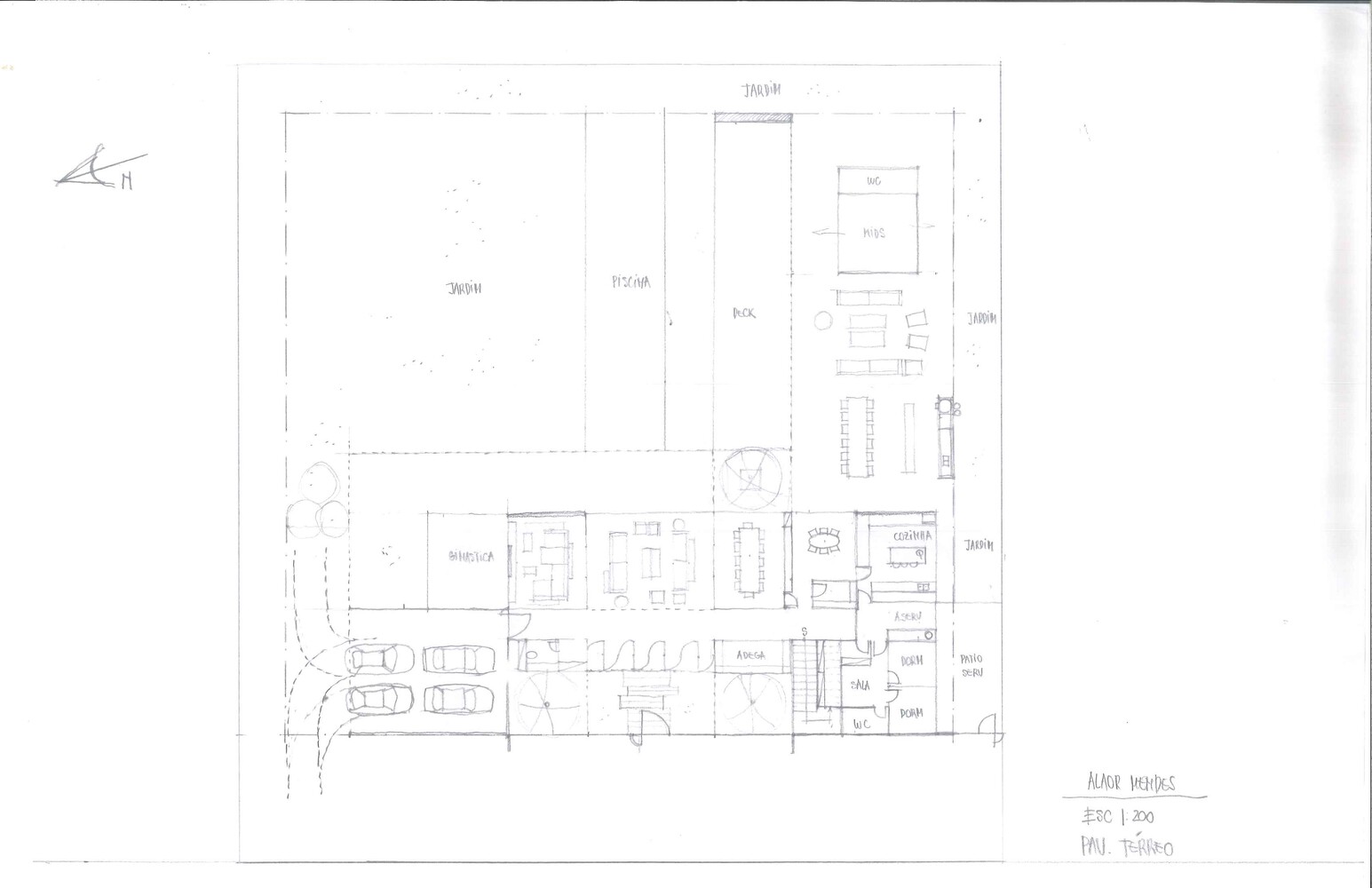
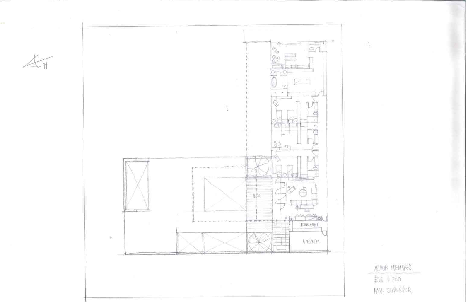
∇ 手繪草圖
版權聲明:本站所有文章除投稿授權發布外,其他文字內容均為原創,享有著作權保護,未經許可不得以任何形式進行轉載(包括且不限於:媒體、網站、公眾號等)。所有項目照片/設計圖形版權歸原作者所有。本站部分內容源自網絡公開資源或用戶分享,如若侵犯了原作者的合法權益,可聯係我們進行處理。



































