這棟全開放式的海景別墅被巴西伊塔卡雷的熱帶森林所包圍,隱藏在植被中。設計考慮與環境限製和共管條例,確保不會在景觀上脫穎而出,與此同時,它將適應一個平行的表麵,避免額外的土壤移動。鄰近的景觀是這個項目的主要動機,以至於它要求建築結構減少到絕對的最低限度。這種結構性建造和地塊的輕微傾斜之間的結合,使得從所有的套房中可以欣賞到大海的全景美景成為可能。
材料調色板的選擇考慮到了環境要求和實際使用之間的關係。因此,影響最大的是超薄表麵、最小襯裏和石英岩。這些都是針對激進的地方環境的特殊材料和解決方案。施工要求極其嚴格,突出了地基加固、防護、爭用、特殊排水技術和防滲屏障。蘭花植物園內有一係列蘭花收藏品,將主要用於室內裝飾。據估計,大約1500種植物將在鬆結構層合木(MLC)中得到保護。
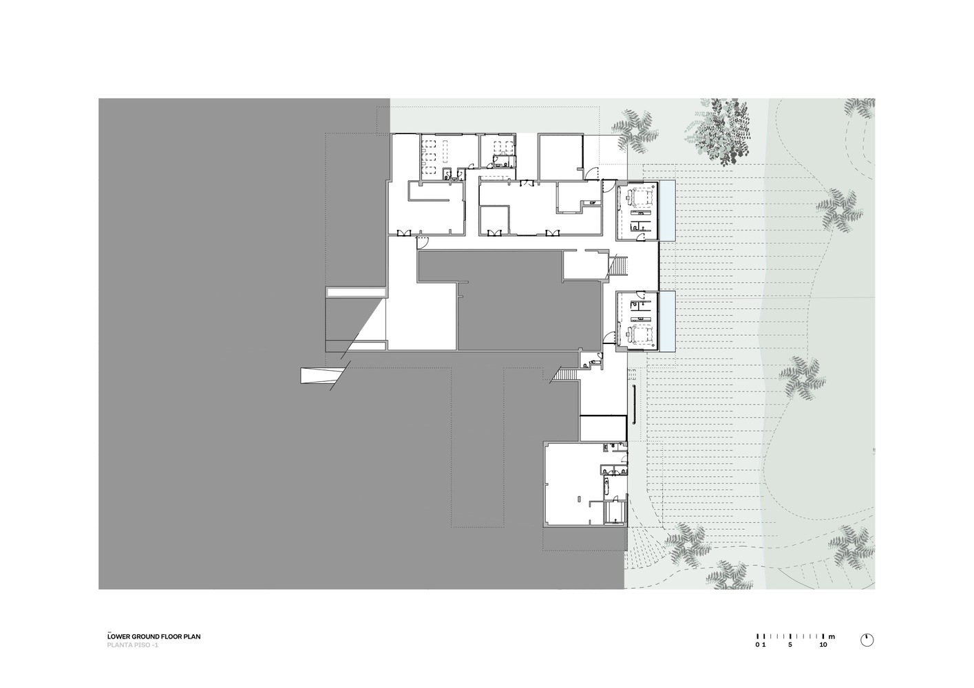
∇ 平麵圖
版權聲明:本站所有文章除投稿授權發布外,其他文字內容均為原創,享有著作權保護,未經許可不得以任何形式進行轉載(包括且不限於:媒體、網站、公眾號等)。所有項目照片/設計圖形版權歸原作者所有。本站部分內容源自網絡公開資源或用戶分享,如若侵犯了原作者的合法權益,可聯係我們進行處理。


































