由A77建築師Kristina Kirsenko和 Ksenia Karabanova 設計的這個項目被稱為D-2108,公寓麵積為55㎡。他們為一對來自 IT 和航空行業的年輕夫婦設計,他們經常旅行,喜歡視覺簡單和簡潔。
在這個項目中,主要目標是創造一個幹淨的空間,沒有不必要的細節和開放式存儲空間。 這個概念基於幾何體積、光和反射之間相互作用的思想。巨大的空間由白色的牆壁構成,並被玻璃插入物打斷。鏡麵使空間變得複雜,天然花崗岩和烏木為其增添了觸感。
經過重建,創造了一個寬敞的客廳,裏麵有一個柔軟的區域和一個鏡子體塊。它不僅分隔了走廊和臥室,而且還可以作為每個區域物品的存儲場所。廚房位於原來的邊界內,為了在視覺上擴大它,設計師在廚房和客廳之間添加了玻璃隔斷。把浴室和衛生間合並起來,並通過走廊進行擴展。這就是我們如何擁有一間帶洗衣房的寬敞淋浴間的原因。
客廳由幾個區域組成。主要是一個柔和的區域,配有沙發和扶手椅。白天可以欣賞窗外的樹木,晚上可以放下屏幕看電影。沙發前麵有一張天然花崗岩製成的咖啡桌,落地燈溫暖的燈光鼓勵居住者坐在扶手椅上讀書。兩個窗口之間是創作音樂的家庭主婦發揮創造力的地方。相反,在鏡麵立麵後麵,有一個辦公室,裏麵有一個小工作區、一個坐墊凳和書架。
臥室位於一個壁龕中,通過玻璃隔斷和厚窗簾與起居區隔開。中央是一張低矮的黑色木床,兩側是白色的金屬床頭櫃。臥室裏沒有頭頂照明,隻有壁櫥裏的壁燈和小吊燈照明。
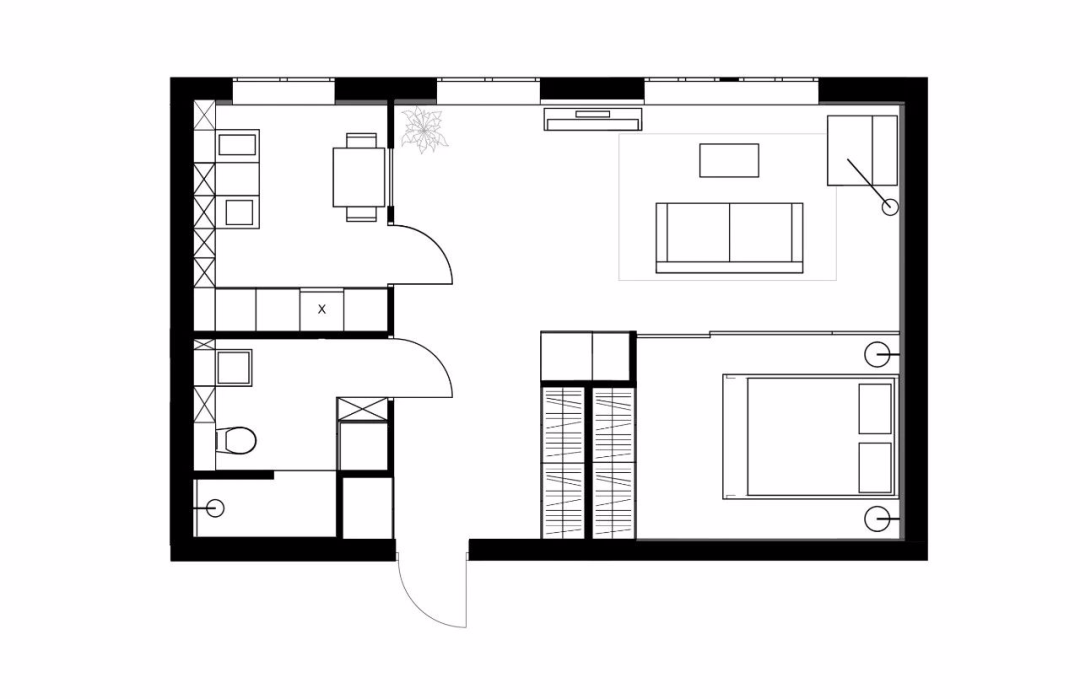
∇ 平麵圖
版權聲明:本站所有文章除投稿授權發布外,其他文字內容均為原創,享有著作權保護,未經許可不得以任何形式進行轉載(包括且不限於:媒體、網站、公眾號等)。所有項目照片/設計圖形版權歸原作者所有。本站部分內容源自網絡公開資源或用戶分享,如若侵犯了原作者的合法權益,可聯係我們進行處理。
























