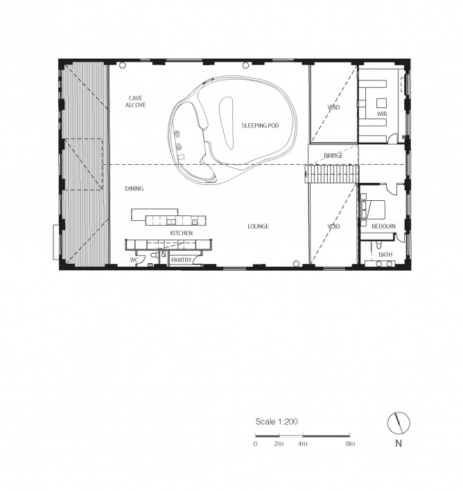
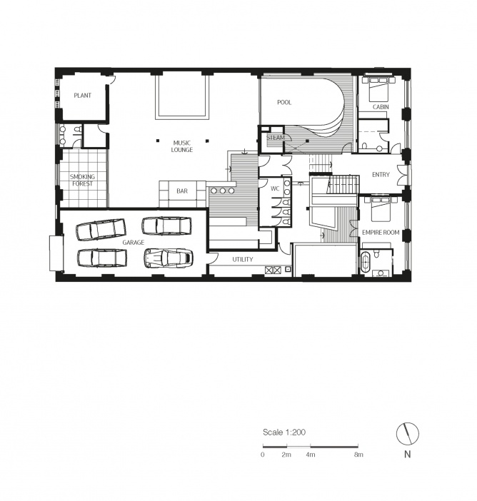
這個項目由澳大利亞Allen Jack+Cottier建築事務所進行設計,目的是將一個現有的1060平方米的二層倉庫進行改造。改造後建築將從根本上解決將光線引入室內的問題,並通過空間將兩個樓層連接到一起,這樣就組成了4間臥室,起居室,大型廚房,音樂室,遊泳池和一個陽台。
Allen Jack+Cottier的客戶在市中心尋找倉庫類型的建築已經有一段時間了。它與悉尼那些有誌向的業主不同,他並不是迷戀於房子一定要有一個好的景觀,麵對大海或港口。相反,他是一門心思要打造一個能夠符合他興趣的內部空間,比如音樂、娛樂和朋友的聚會。這個被選中的倉庫在上世紀初期是一個食品生產廠,後來成為了家具工廠。
在改造中最重要的環節是插入在一樓的睡眠倉或者叫洞穴也可以。這是客戶的私人套房,它就像一塊雕塑被擺在了主生活空間,其內部形態在屋頂桁架之間呈波浪形。倉庫裏不同形狀的幾何體相交會建立了新的空間,但並沒有感覺倉庫的空間被減少了。
鋼化玻璃用泡沫結構做支撐立在地麵上,就像一間笨重的家具擺在那裏一樣。睡眠倉裏包括一張帶外殼的大床,衣櫃,休閑空間和一間浴室。牆壁和天花板都塗有VOC白色樹脂,地麵到睡眠倉是大畫幅的皮革瓷磚,其它的地板使用了柚木板,就像遊艇甲板上的樣式。
睡眠倉的外麵也塗上了白色的樹脂,白天可以反射不斷變化的光,在夜裏就像一個漂浮的LED。表麵就像一個播放娛樂事件投影頻幕。
Photos © Castle+Beatty
版權聲明:本站所有文章除投稿授權發布外,其他文字內容均為原創,享有著作權保護,未經許可不得以任何形式進行轉載(包括且不限於:媒體、網站、公眾號等)。所有項目照片/設計圖形版權歸原作者所有。本站部分內容源自網絡公開資源或用戶分享,如若侵犯了原作者的合法權益,可聯係我們進行處理。









































評論(2)
mark
mark