這個設計是為東京郊區的一個家庭設計,住著一對30多歲的夫婦。這對夫婦計劃在他們的地震翻新公寓裏進行一次靈活的、不受未來影響的翻修。
“細微差別”指的是情感、意義、顏色、聲音和表達上的微妙差別。該結構框架遵循了經濟高速增長期間(1950-70年代)大規模生產的典型網格計劃,在”空間”和”功能”之間建立了嚴格的1:1關係,沒有靈活性或解釋的餘地。為了接受經常在家工作的雙收入夫婦的各種活動,並更新房間的設計以適應現代時代,這個項目努力創造一種”細微差別”–一種介於”上”和”下”、”活躍”和”放鬆”之間的微妙差別。”細微差別”包含在空間成分、顏色和材料中,允許個人感知自己的微妙感受。”
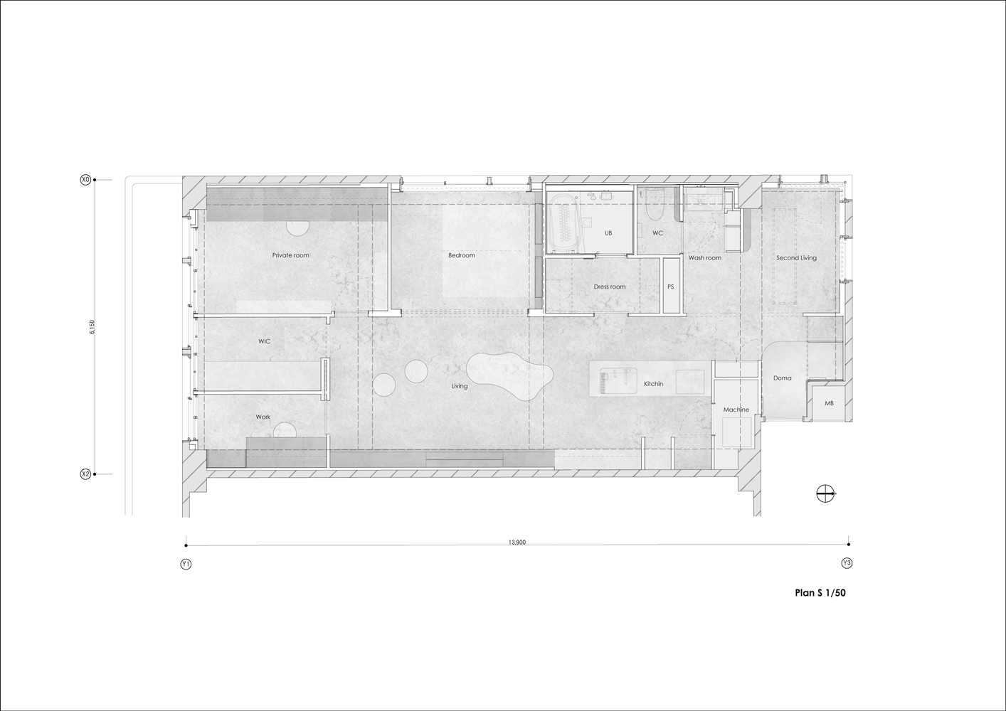
在保持日本公寓在寬度和深度方麵的典型比例的同時,現有的公寓擁有從其核心房間布局中產生的資產,如長麵入口和三層開口。為了充分利用這些優勢,沿著牆麵布置了一組較小的房間。通過允許從客廳直接進入每個小房間,走廊空間被完全拆除,通常用牆壁隔開。
通過解構走廊,這是標準格形布局的薄弱環節,通過吸收”日常通道”進入客廳,這些通道變成了一個明亮、開放和幹淨的區域,從而創造了一種整體寬敞感。此外,通過將小房間與客廳直接連接起來,每個房間的活動和氣氛的細微差別滲透到客廳,創造了一個活潑而輕鬆的空間。其目的是複製家裏公共街道或廣場的感覺。
∇ 平麵圖
版權聲明:本站所有文章除投稿授權發布外,其他文字內容均為原創,享有著作權保護,未經許可不得以任何形式進行轉載(包括且不限於:媒體、網站、公眾號等)。所有項目照片/設計圖形版權歸原作者所有。本站部分內容源自網絡公開資源或用戶分享,如若侵犯了原作者的合法權益,可聯係我們進行處理。



























