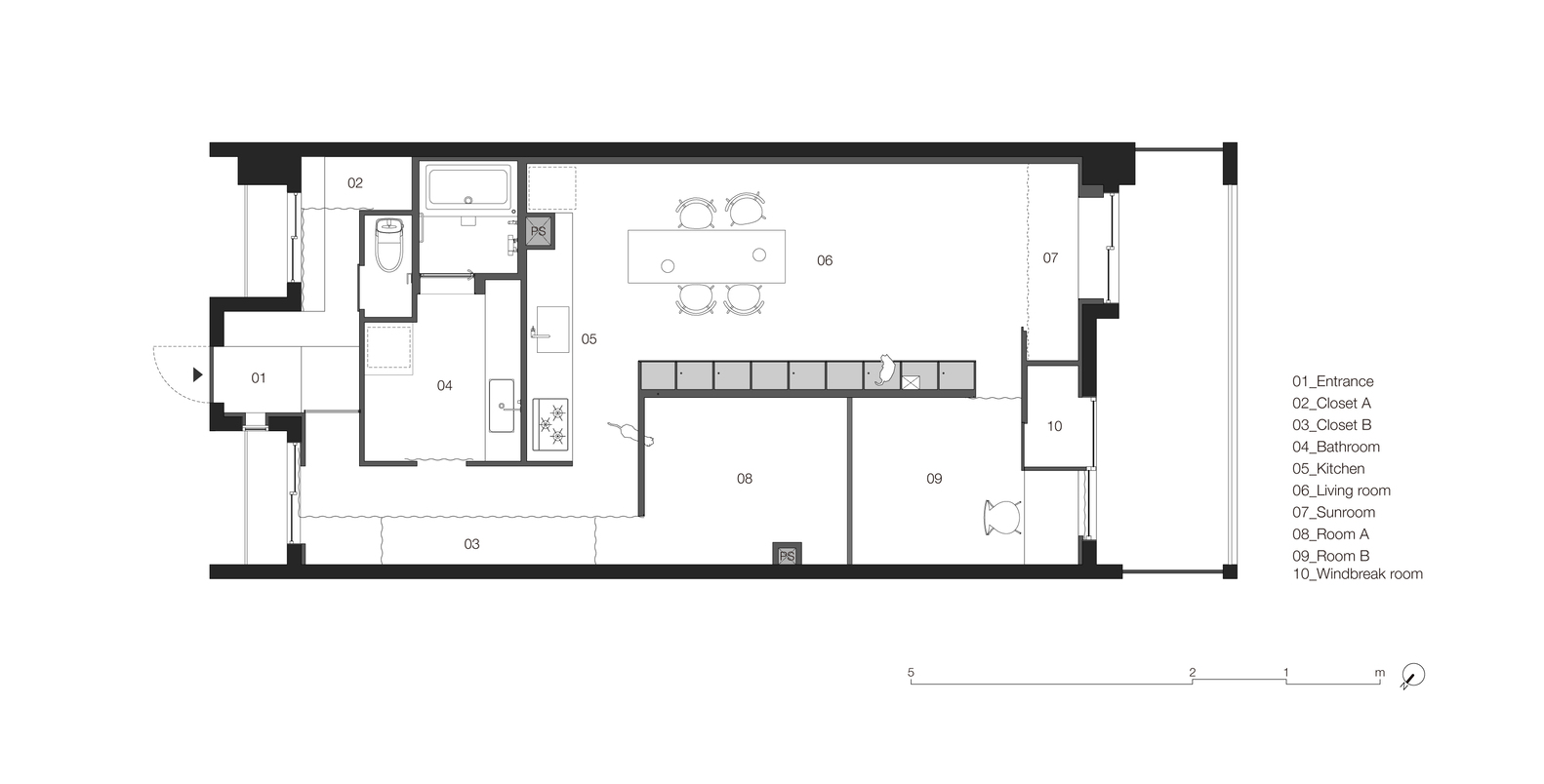
這間小公寓是一對已婚夫婦和兩隻貓的家。Hiroyasu Imai的目標是建造一座能讓人類和貓在65㎡內舒適生活的房子,這是日本典型的房間尺寸。Hiroyasu Imai試圖從人類和貓的角度設計房子(生活方式、習慣和安全)。
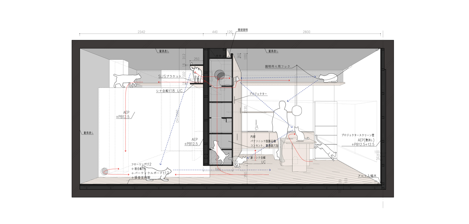
通過減少房間和繞圈循環,獲得了深度和變異。建築師在架子、廚房和臉盆下麵用了一個350毫米的間隙。對人類來說,它的功能就像一個隔斷,感受到深度和空間。對貓來說,它的功能是一個大廣場和空間來躲避人類。建築師改進了機器人真空吸塵器的通風和良好的交通線路。
Hiroyasu Imai還在架子上用了台階、洞穴和橫梁下的台步來擴展貓的垂直循環。架子上的洞口可以用作投影機和其他設備。通過將貓的視角融入住宅的設計,Hiroyasu Imai能夠創造一種豐富的狀態,不同的尺度、習慣和活動範圍相互重疊,並在一個房間裏合為一體。
∇ 平麵圖
∇ 尺寸示意圖
∇ 動線軸測圖
∇ 軸測圖
∇ 剖麵圖
版權聲明:本站所有文章除投稿授權發布外,其他文字內容均為原創,享有著作權保護,未經許可不得以任何形式進行轉載(包括且不限於:媒體、網站、公眾號等)。所有項目照片/設計圖形版權歸原作者所有。本站部分內容源自網絡公開資源或用戶分享,如若侵犯了原作者的合法權益,可聯係我們進行處理。





































