中國 / 澳門 / 酒店 # Jess Yu Design #
在澳門,充滿煙火氣的牛雜攤,和繁華璀璨的賭場,往往隻有一街之隔。這樣的縱橫曆史的穿梭,使澳門即有趣又神秘,賦予了這座城市獨特的魅力。漫步澳門的街頭,常常讓人陷入一種時空交錯的恍惚,仿佛上一刻,時間凝固在昔日的繁華,下一秒,又跌入當下的喧囂。
位於新馬路的六國飯店(葡萄牙語:Restaurante Lok Kok),曾是澳門的一家著名茶樓,誕生於1913年,由廣州茶樓大王譚傑南創辦,當初名為“得心”。它是澳門文物名錄中被認定為“具建築藝術價值之樓宇”的珍貴遺產。1938年抗日戰爭初期,酒樓改名為六國飯店,與“冠男”及“大龍鳳”一同矗立,三者與營地大街的“遠來”並稱為“澳門四大茶樓”。電影《海上花》和《群龍戲鳳》曾在此取景,留下了無數經典瞬間。
然而,如今的六國飯店已經曆了百餘年的風雨洗禮,煥然一新,變身為一座擁有62間客房的精品酒店,隸屬於澳門新東方集團旗下。坐落於澳門最繁忙的街道之一 新馬路。進入纜廠巷,一條幽長的小巷,就是酒店的大門。這裏是旅人們忘卻路途疲憊,感受澳門曆史與現代氣息的地方。
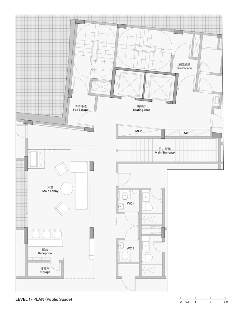
酒店的公共區域采用了裝飾主義風格的設計,牆麵和天花板選用了天然橡木、胡桃木和墨綠色手工花磚作為主要材料,以古銅及墨綠色金屬條則點綴其間。這些花磚和色彩的拚貼以原六國飯店的用餐空間為靈感,將其以更簡潔克製的現代設計語言重新詮釋。
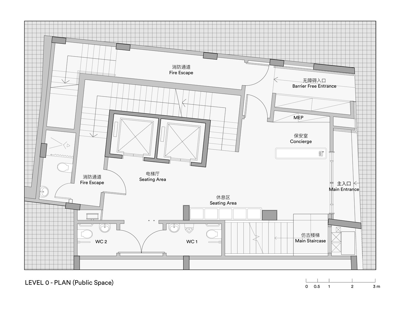
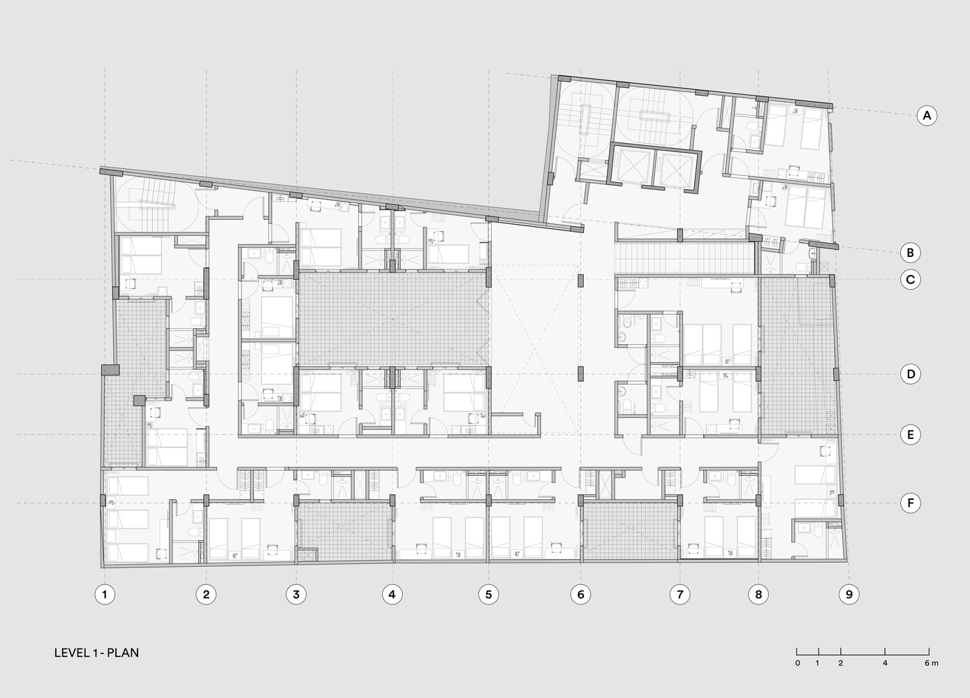
我們也對古建築的花磚做了研究,以原六國飯店的窗戶作為靈感,為二層的休息大堂設計了地麵花磚的拚貼,將曆史元素與現代風格相結合。在2000平米的總麵積中規劃62間客房的任務書並不簡單,為了確保每個房間的有效采光,我們在整個建築中開辟了五個采光井。緊湊的平麵規劃下,每個房間仍保持了小而美的精致感。客房以灰白色的牆麵打底,靠床頭一側選擇了墨綠色的塗料呼應酒店公共空間的設計,配合天然橡木,營造舒適、休閑的氛圍,幫助住客卸下旅途的疲憊。
百餘年後,六國飯店終於以全新的身份再次開業,迎接來自各方的遊客。
∇ 平麵圖






































