這棟別墅的兩個最重要的特征是,其一它是完全獨立的,與相鄰建築物或鄰居保持一定距離,第二個是帶有綠色和硬地板的花園。這兩者是KLab architecture希望建築給人的感覺的創意驅動力。
KLab architecture試圖盡量減少與下一個建築相連的體積,以盡量減少擁有房屋的人之間可能存在的幹擾。KLab architecture通過每次插入一個小的中間樓層來解決這個問題,這產生了一個空隙空間,特別是與中庭結合在一起。然後,空隙空間被花園和室外覆蓋區域占據。
在某種程度上,建成的部分等於甚至更少於室外空間,有遮蓋的也有無遮蓋的,這對於別墅建築來說是相當新鮮的事情。這座建築的體積產生了戲劇性的切口,因為金屬結構使建築師能夠在輕金屬柱的頂部創建大型懸臂表麵。中庭和水池的體積強調了這種近乎雕塑般的體積減法,創造了所有這些有頂花園。
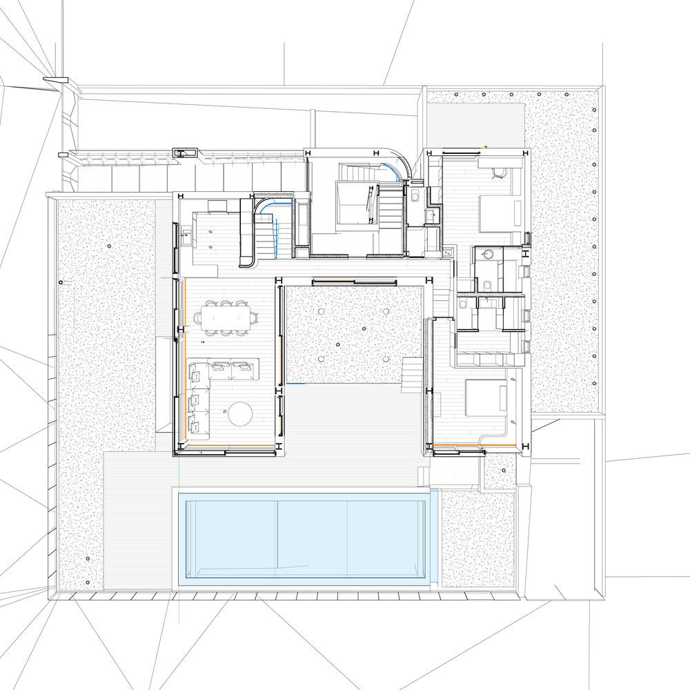
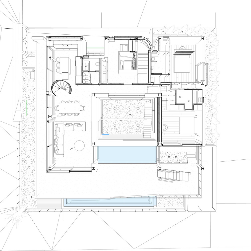
∇ 平麵圖
∇ 剖麵圖
∇ 爆炸分析圖
版權聲明:本站所有文章除投稿授權發布外,其他文字內容均為原創,享有著作權保護,未經許可不得以任何形式進行轉載(包括且不限於:媒體、網站、公眾號等)。所有項目照片/設計圖形版權歸原作者所有。本站部分內容源自網絡公開資源或用戶分享,如若侵犯了原作者的合法權益,可聯係我們進行處理。






































