對 70 年代中期的標誌性“Hanikian”酒店進行了全麵重新設計,體現了其位於希臘科林斯灣傳奇位置的地形元素,塑造了新的建築特色。這座以前的矩形、重複形成的現代主義建築被賦予了有機的形式,其靈感來自於明亮的自然光下的景觀形態。
新酒店的設計理念強調了其位於希臘火山弧北部邊緣的物質和感官特性,以及“Sousaki,一座沉寂了 270 萬年的無火山口火山”。受火山噴發的神話體現的啟發,該設計引入了全景視圖,並模仿了熔岩的流動性:建築的方形體積變成了一堆白色的“鵝卵石”,而建築立麵上的連續曲麵則賦予了動態感。形式和雕塑效果創造出整體的運動感。
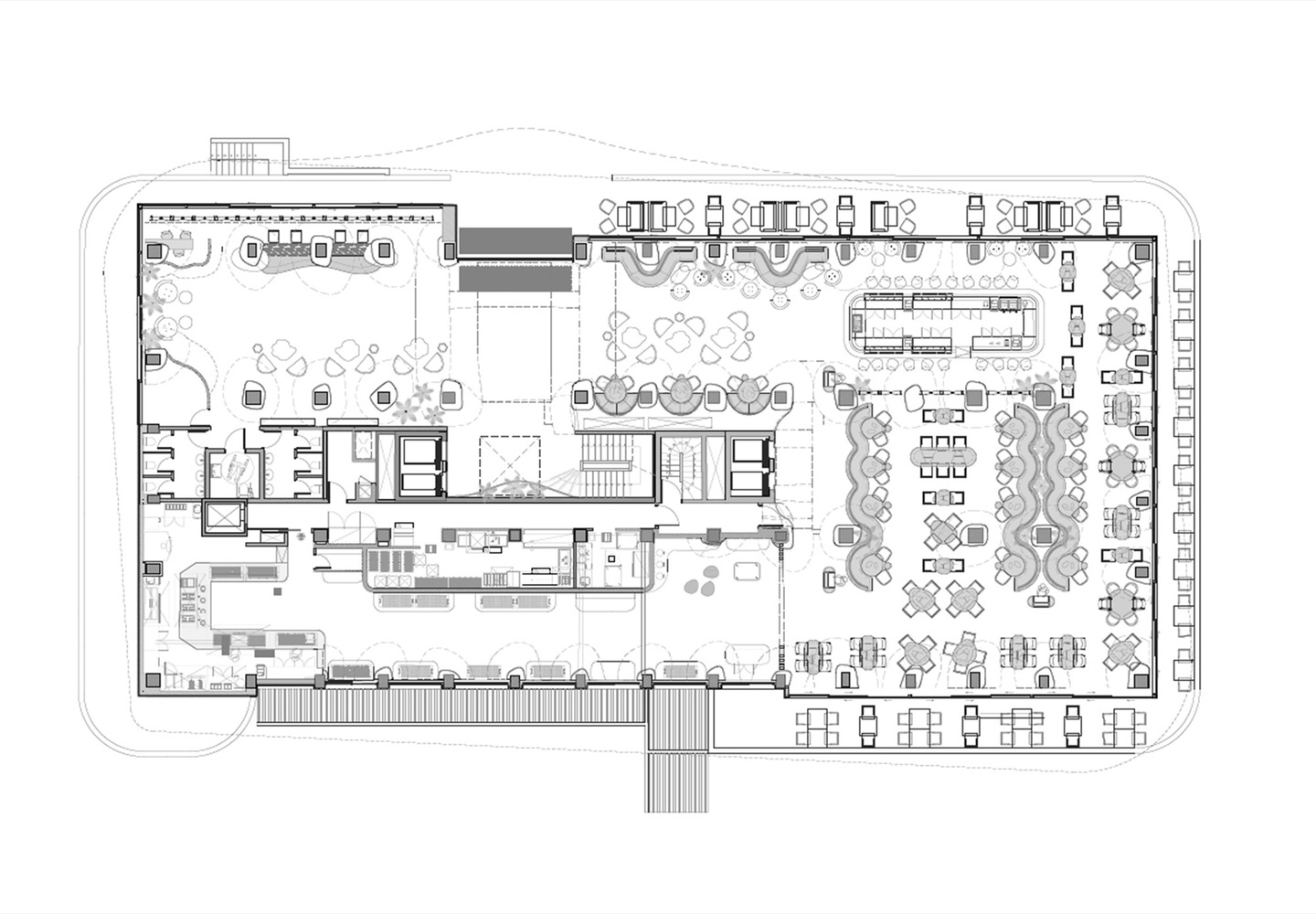
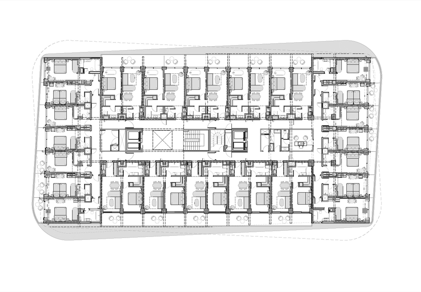
酒店擁有 166 間豪華客房和套房,提供室內用餐、兩間浴室和獨立浴缸。公共空間包括大堂、室內海景酒吧(在起伏的天花板下設有青銅雕塑台麵)、全日餐廳、健身房和水療中心,以及宏偉的無邊際屋頂淺水池,其中設有酒吧和休息室休息區,提供寬敞的休息區。科林斯灣的景色,連續的曲麵在外牆和內牆、飾麵、照明設計和裝飾元素上創造了新的視覺形象。
色調包括赤土色和琥珀色的火山色調、青銅鏡、金色和有色玻璃。為所有公共空間設計的定製家具在提供功能性的同時遵循當代美學,其靈感源自獨特的自然元素。該酒店強調酒店運營過程中的節能和低能源,其設計充滿創意和創新,同時涵蓋功能性、可持續性和前沿美學。
∇ 平麵圖
版權聲明:本站所有文章除投稿授權發布外,其他文字內容均為原創,享有著作權保護,未經許可不得以任何形式進行轉載(包括且不限於:媒體、網站、公眾號等)。所有項目照片/設計圖形版權歸原作者所有。本站部分內容源自網絡公開資源或用戶分享,如若侵犯了原作者的合法權益,可聯係我們進行處理。





























