與周圍環境的融合和銜接
Casa M 位於葡萄牙阿爾加維海岸,傲然矗立在村莊的山丘上,俯瞰著大海。該設計考慮了當地的氣候——炎熱的夏季、潮濕的冬季和盛行的大西洋微風。作為狹窄街道上的聯排別墅,Casa M 優化了半層空間,以與鄰近體量協調一致。Casa M 將傳統建築原則和鄉土表達帶入當代世界,與周圍環境完美融合。可持續性和生態效率 – Casa M 通過集成被動和主動係統、優化光、陰影和自然通風來優先考慮可持續設計,以顯著降低能源消耗,消除對空調的需求。生態效率在設計中根深蒂固,結合了充當風煙囪的內部庭院,用作自然冷卻係統和光軸。建築設計在19米深的地塊上引導自然采光和通風,確保氣候舒適。此外,該設計理念旨在通過最大限度地減少材料和細節來簡化生產鏈,確保隨著時間的推移更容易維護。最終目標是創造舒適的生活條件,避免不必要的複雜性。
空間連貫性和生活品質
空間連續性是通過一個不間斷的地板實現的,該地板從停車場無縫延伸到露台,包括樓梯、護牆板和起居區。致密的織物窗簾平衡了材料的礦物元素,賦予流動性並確保聲學舒適度。陽台和景觀是廚房和餐廳不可或缺的一部分,是家庭生活的核心。地板和天花板在天篷中的連續性強調了該區域的空間統一性。同時,可移動的隔斷,包括內部窗戶和窗簾,充當適應性強的大門,調節熱量和隱私以滿足各種日常需求。
Casa M 的設計平衡了視覺和空間延伸與舒適生活功能的組織。安靜的白色立麵表現出光滑和紋理的表麵、質量和空隙。這種效果是通過渲染技術的變化、穿孔門的設計以及在光與影的圖形相互作用中戰略性地結合微風塊來實現。這座房子提供了反映自然和天氣變化的畫布以及日常生活展開的舞台。
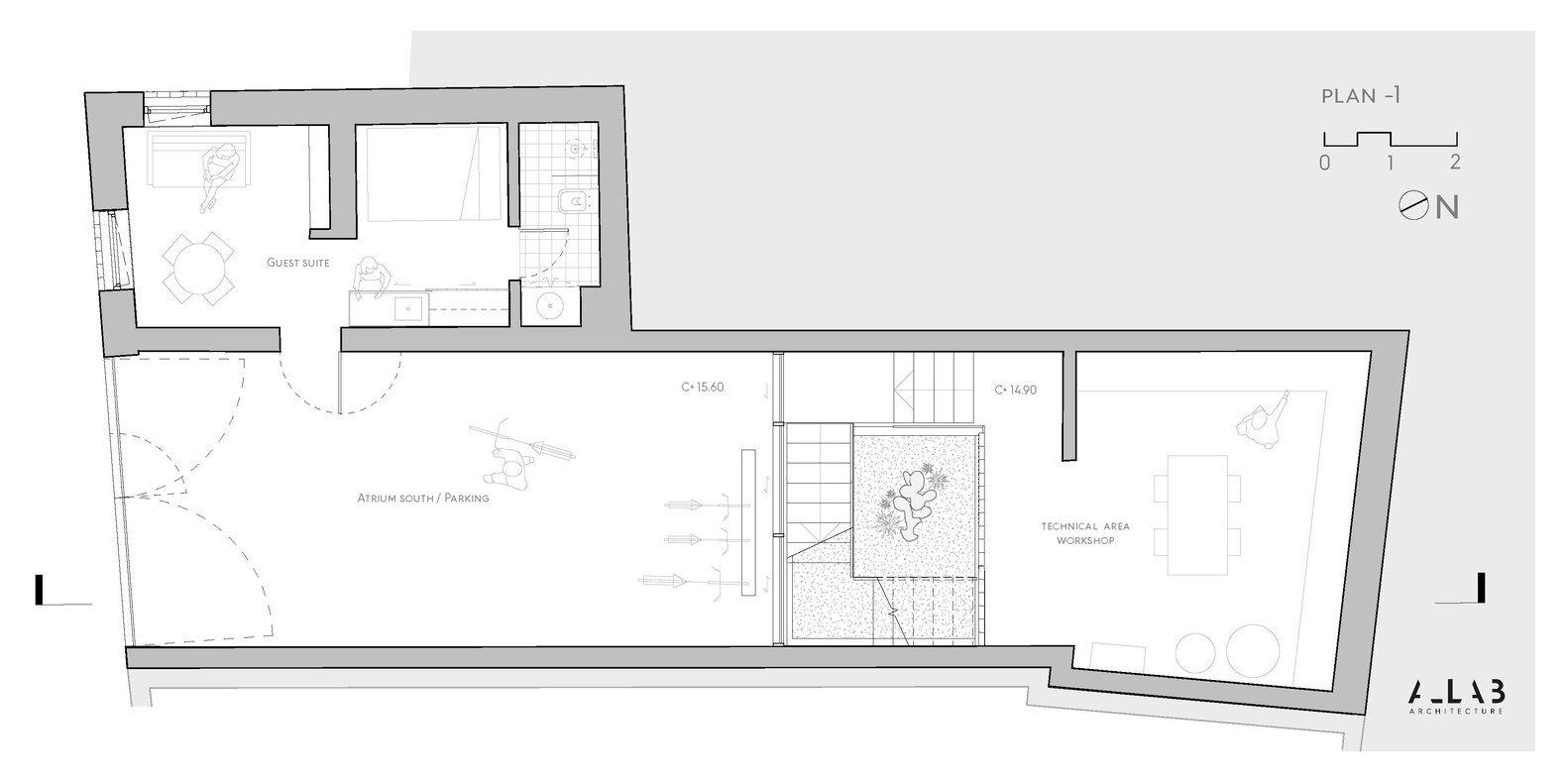
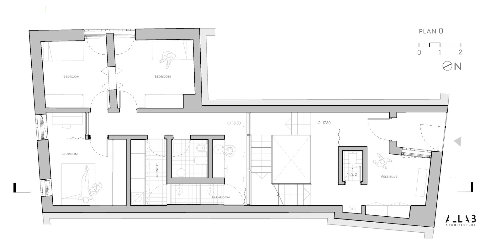
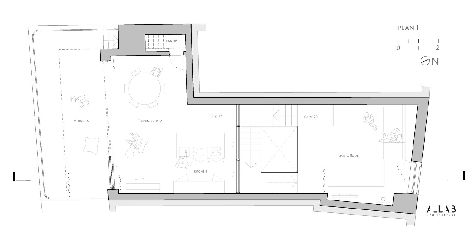
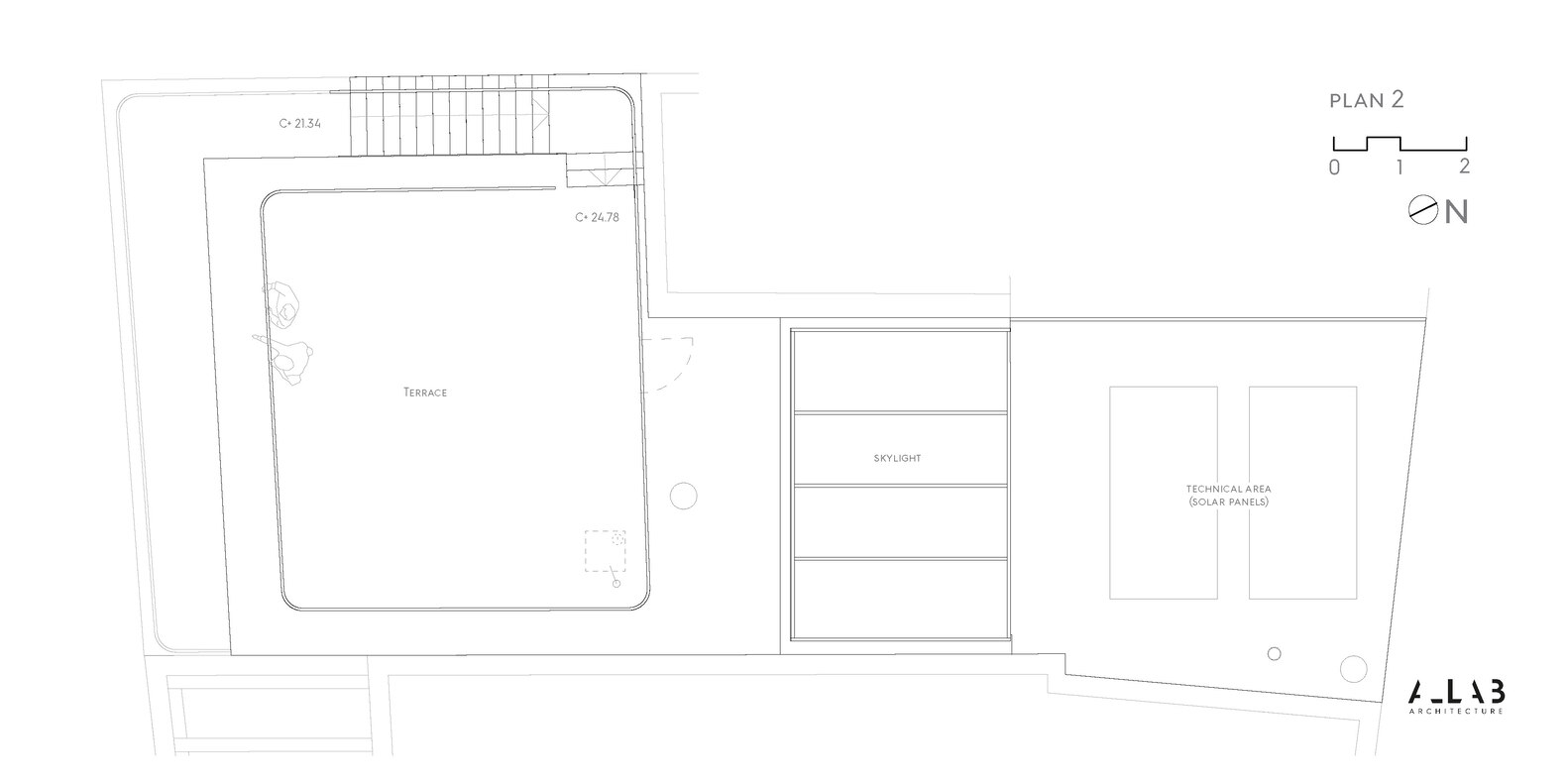
∇ 平麵圖
∇ 剖麵圖
版權聲明:本站所有文章除投稿授權發布外,其他文字內容均為原創,享有著作權保護,未經許可不得以任何形式進行轉載(包括且不限於:媒體、網站、公眾號等)。所有項目照片/設計圖形版權歸原作者所有。本站部分內容源自網絡公開資源或用戶分享,如若侵犯了原作者的合法權益,可聯係我們進行處理。





































