上音實驗鶴壁分校是一所新建的從小學到初中的九年一貫製公辦學校。位於校區主軸線中心位置的圖書館代表著該校的精神麵貌。2022年6月,當URBANUS都市實踐接到圖書館室內設計邀請時,設計師對河南省的這個地級市的名稱都比較陌生。然而正是在百度城市排名中所謂的五線城市,以及現場看到城市發展的欣欣向榮的狀態,讓設計師產生了對這個設計莫名的激動和期待,因為正是在這樣需要設計力量的地方,才能體現出設計的力量。當前媒體上不缺少一、二線城市的商業空間中驚豔的圖書館和書店打卡點,而對於五線城市而言這太是一種無用的奢侈,但也需要好的圖書館,因為這裏的孩子們的視野相對窄,好的空間會刺激他們對書的喜好,以實現幫助他們養成熱愛閱讀的習慣的目的。
毛姆說:“閱讀是一座隨身攜帶的避難所。”越是在資源不平衡、不充分的地區,一個好的初級教育的圖書館越是讓孩子們終身受益。原建築有三層,平麵呈方形,中部是大樓梯和采光天窗,並有局部三層。改造和升級的切入點是從分析圖書館土建狀況出發,先優化現有的條件,用最小的代價彌補不足的短板。
1,問題:原建築中庭上方設有采光天窗,但缺乏對遮陽、通風、排煙的綜合考慮,造成了區域溫度過高,直射光過強,不利於閱讀功能;
解決方案:“讓光變得溫順,讓風變得輕柔”
把原來的天窗升高,在側麵位置增設了電動開啟裝置,側高窗開啟後將聚集在建築中央部分的熱空氣有效排除,用自然通風減少空調使用,從而通過主動式節能方式增加室內環境舒適度。在天窗下方吊掛了一層金屬穿孔板的“濾光片”,把直射光過濾成了更加柔和溫順的漫反射光,使天窗下成為適合閱讀的空間。
2,問題:原建築一二層之間設有大台階,這種空間比較適用於在書店中搞活動,而對安靜的圖書館無益;
解決方案:“書山有路勤為徑,學海無涯樂做舟”
利用書架把大台階劃分成了若幹個位於不同標高的閱讀區,通過中央台階串聯在一起,好像一條小徑攀登著“書山”。功能上這裏是非教輔的趣味閱讀區域,小學部和初中部垂直交流的混雜空間。
3,問題:原建築的局部三層隻是一個俯瞰二層吹拔的閣樓,與二層並沒有直接視覺聯係。
解決方案:“更上一層樓”
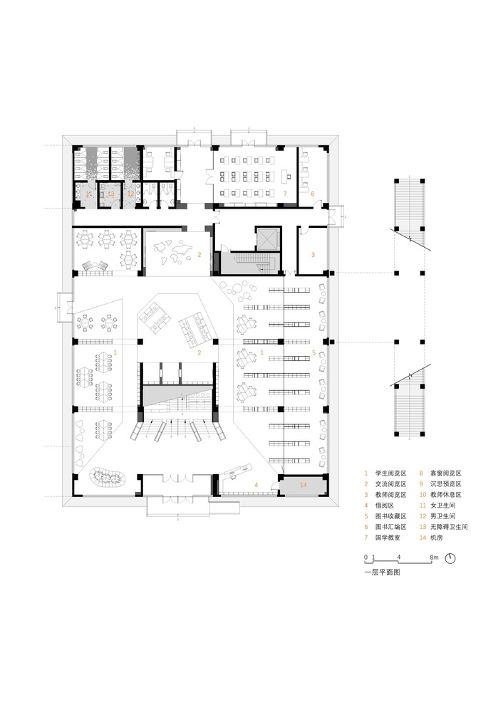
三層作為教師閱覽室,還可以照顧到下麵兩層。讓“書山”繼續生長,通過一個隱藏在書架裏的折形小徑把二層與三層連接起來,使一、二、三層空間形成了一個完整的空間敘事。在重新設定的平麵中,一層是小學部,和教師可以進入的閉架書庫;二層是初中部。
一層小學部:“單元劃分,多元活潑”
為了擴大空間感,東側的閉架書庫與小學部開架閱覽區之間使用玻璃隔斷,閉架書庫也是教師閱讀區,日常會有一些教師在裏麵,通透的視野也節約了管理成本。考慮到小學生的注意力並不容易集中,並且需要老師的管理,因此這一層連通的大空間通過書架劃分成了若幹個獨立的區域,每個區域恰好可以容納一個教學單元的學生上閱讀課。單元之間的書架隔斷上又設有能坐進去閱讀的洞口,既使有視覺的通透性,又給孩子一些開放的私人空間。大台階底下的空間通過正負兩種不同的空間手法,形成了看書的“洞居”和“房居”,通過尺度的控製生成更有領域特征的閱讀基地。
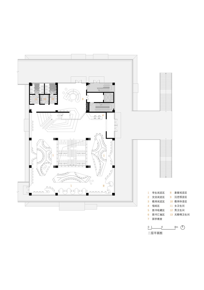
二層初中部:“島嶼劃分,動靜相宜”
二層作為初中生閱讀的主要區域,由於層高較高,並且初中生有了更多不同閱讀狀態的空間需求,進行了有別於首層的空間設計。沿著建築的外邊緣的幕牆,設置了一條連續變化的閱讀桌作為初中生進行獨立學習的區域,該區域采光良好、視野開闊且空間較為穩定,更適合學生集中注意力於書本本身和獨立思考。圍繞著中庭設計了三個獨立的“島嶼”,每個島嶼都有一種顏色,一張異形的共享大書桌,和一個高書架圍合成的私密閱讀空間,這樣既可以讓一個班的學生圍坐在一個大書桌前上一堂生動的閱讀課,又滿足了兩三好友在一個獨立空間進行心得分享的私密需求。
顏色設置
空間簡潔幹淨,又充滿朝氣和正能量,需要大麵積白色基礎上配些高飽和度的原色。大空間選擇白色來突出圖書館安靜的屬性。除了牆麵上大麵積的白,還有多種多樣的白:作為“濾光片”的白色穿孔鋁板,白色半透明的陽光板,帶灰色顆粒的亞光白色水磨石瓷磚。這些白色材料會隨著一天中不同光線變化而呈現出不同的效果,讓以白色為基色的空間更有層次感。白色之上是地麵、家具和書架上的彩色。根據少年兒童心理學,首層的小學部反而用暗一點的藍色和棕紅色作為地毯顏色,讓低幼的孩子在閱讀時不太受顏色的刺激;二層的初中部采光好,顏色比本色更鮮亮些,空間更活躍。
家具設計
為了保持空間的通透性和流動性,空間劃分都通過書架和書桌,因此運用了大量不同類型的定製化家具。經過與廠家反複溝通工藝,結合家具不同的形狀和載重量,分類使用了鋼製和成品板材兩種材料。為了和地麵形成統一的視覺關係,把PVC編織地毯作為家具的局部飾麵,得到了良好的效果。
三層教師閱覽室:“教師之家,精神高地”
三層是提供給教師的加油站。三樓的書架上拒絕擺放任何教輔書籍,而是裝配提升教師修養、擴大他們知識麵的讀物。這裏是交流和休閑的場所,精神療愈的地方,而不是枯燥的教師閱覽室。
材料選擇
為了讓空間看起來更加明亮幹淨,設計師在牆麵和天花更多采用了純淨的白色材質,但也需要一定的質感。半透明的陽光板(聚碳酸酯板)包圍了中心的“書山”,它潔白柔和,又能朦朧地透視出背後書架上多彩的書籍。懸在天花上的“濾光片”,考慮防火等級的需求,采用壓型穿孔鋁板,產生另一種透光效果。地麵上用了不同顏色和拚花的PVC編織地毯來界定空間,又起到吸音作用,配合上高飽和度顏色的家具和書架隔板,為空間帶來了活力與變化。
結語
可能有人會驚訝於這樣的設計都不會發生在一線城市的公立學校。其實,設計的投資並不高,效益也遠遠大於投入。這樣的設計最適合於發生在發展相對滯後的區域,因為這裏的公立學校更有這種設計需求。在所謂五線城市,更需要借助設計的力量來打開孩子們的視野,激發他們對書籍的興趣,享受像一線城市孩子們那樣可以去網紅書店閱讀的體驗。希望他們能把對圖書館的喜愛轉化成對書本的喜愛,把閱讀當作隨身攜帶的避難所,通過一個設計來造福一生。
∇ 總平麵圖
∇ 平麵圖








































