以色列建築設計事務所SharonNeuman Architects最近完成了“Kibuts住宅”的設計,這是一座用普通磚砌築的方盒子形建築。建築前麵有一個被分離出來的涼棚,這個長方形區域為戶外餐廳提供了遮蔽陽光同時還能觀賞節水庭院的景色。
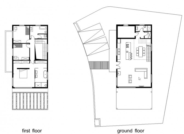
開放的首層空間包括入口,廚房,餐廳和起居室。兩層通高的樓梯間包裹了整個空間,通往臥室走廊。主臥套間由一係列顏色不同的獨立隔牆定義,它們相互組合,封閉了床,浴室和壁櫥空間。一個簡約的空間設計,明亮的蘋果色櫥櫃,清新自然,開放式的五顏六色的牆壁,豐富多彩現代家居生活。
SharonNeuman 建築設計事務所官方網站:SharonNeuman Architects
Photos © Amit Gosher
Content Copyright © www.online4teile.com
版權聲明:本站所有文章除投稿授權發布外,其他文字內容均為原創,享有著作權保護,未經許可不得以任何形式進行轉載(包括且不限於:媒體、網站、公眾號等)。所有項目照片/設計圖形版權歸原作者所有。本站部分內容源自網絡公開資源或用戶分享,如若侵犯了原作者的合法權益,可聯係我們進行處理。






























