Superimpose疊術建築應邀接受了在北京核心區域,為跨國科技公司華為,設計首家“北京旗艦店”的挑戰。該店坐落於北京熱鬧繁華、享譽數百年的王府井步行街的十字地帶,毗鄰曆史建築故宮。作為傳統與現代的交彙之地,王府井正在積極迎接國際化的時代潮流,而這片古老的、充滿活力的商業區,不僅是中國文化底蘊的代表,更是國際化的窗口。
該店設有兩層,占地超過1200平米,Superimpose疊術建築從深厚悠久的地標古跡——例如故宮和長城中汲取靈感,將中國傳統建築元素、空間邏輯和構築語言,巧妙地融入現代設計中,進行全新闡釋。多年來,華為以“構建萬物互聯的智能世界”為願景,不斷擴展產品範圍,廣泛涵蓋電子產品、智能設備等,並逐步打造出數字生態係統。此次北京旗艦店的設計,引入“城市客廳”的理念,尊重在地文化,同時為所在城市營造出一個全新的體驗空間。
室內設計:中軸線與綠洲靈感
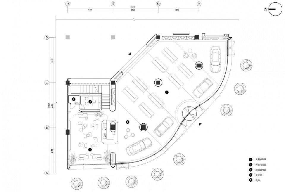
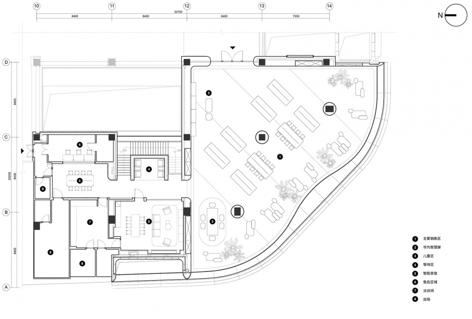
Superimpose疊術建築秉持著“期待+1”的設計宗旨,全力投入這一挑戰性項目。旗艦店整體采用連續的布局,靈感源自於紫禁城的尺度、對稱性和不同空間類型。其中,展示廳位於整個店鋪的中心,設計契合了人們對華為店麵形象的期待——整潔、簡約、細致入微的美感,致力於最大程度地展示產品,為訪客帶來沉浸式的空間體驗。此外,設計團隊結合“城市客廳”概念,創造了鼓勵社區聚會、探索和互動的空間:綠洲咖啡區。
在原始建築場地不對稱的情況下,設計團隊加入了一道厚重的天然萊姆石牆壁,將店麵對稱的劃分為銷售區、綠洲咖啡區,巧妙的與北京的城市脈絡、中軸線、紫禁城均衡對稱的布局相呼應,同樣也是華為美學的延續。這個自然石材隔斷牆,受到長城的啟發,其清晰的牆麵縫隙,是對長城磚牆的汲取與提煉。
綠洲咖啡區,旨在為訪客提供一個互動體驗場所,鼓勵人們使用產品並融入“城市客廳”。咖啡區本質上是一個多功能空間,可用於舉辦活動、講座或日常聚會。它在設計上采用木質天花、暖色微水泥地板和茂密的綠植牆,並放置了一座洞石咖啡吧台,呈現了一個自然、明亮溫馨的韻律空間。咖啡區的樓梯設計獨具匠心,踏步的另一端連接著一整塊玻璃麵板扶手,懸浮於鬱鬱蔥蔥的室內花園上方。這些細節,均是受到長城蜿蜒於北京蒼翠山脈的景色啟發。
立麵設計:古老建築的優美曲線
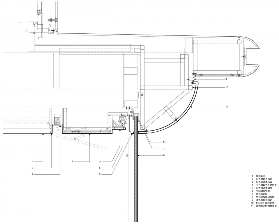
兩層通高的玻璃幕牆,鑲嵌在曲麵造型的UHPC(超高性能混凝土)立麵框架中,描摹出紫禁城壯麗的氣勢。立麵的弧形造型,借鑒了北京城古老而優美的屋頂輪廓線。設計團隊精密把控每一個技術細節,確保其表麵處理幹淨而流暢。
8.8米高的玻璃板,凸顯了立麵對於城市的開放性,將街道上的人群自然地引至室內。值得一提的是綠洲咖啡區內,設有一塊大型的LED曲麵屏幕,增添了視覺吸引力,也將室內外無縫銜接,交融貫通。UHPC幕牆板,遵循商場裙樓的屋簷輪廓,而中間的玻璃門,則在入口處形成了一個凹形空間,表現親切的邀請姿態。
作為旗艦店類型的項目,Superimpose疊術建築的整體設計思路,旨在歡迎訪客,避免繁瑣或過分的裝飾,專注於為華為打造一個高品質的互動空間,並在北京城市中心根植和推廣數字生態係統,帶來全新用戶體驗。
∇ 一層平麵圖
∇ 二層平麵圖
∇ 立麵圖
∇ 幕牆大樣水平
∇ 幕牆大樣垂直
項目信息
項目名稱 / 華為旗艦店 · 北京王府井
項目業主 / 華為
項目位置 / 北京王府井步行街銀泰in88大廈
項目類型 / 商業零售
設計範圍 / 室內設計與立麵設計
設計公司 / Superimpose 疊術建築
主創設計 / 梁勵德,Ben de Lange,Ruben Bergambagt
設計團隊 / 梁勵德,Ben de Lange,Ruben Bergambagt,JunWei Loh,許瀟予,曲海波,王思捷
項目規模 / 1,233 m²
合作方 / 總承包商:上海信鴻實業(集團)有限公司,設計院:悉地(北京)國際建築設計顧問有限公司,幕牆顧問:上海熙瑪工程顧問有限公司,照明顧問:上海碧甫照明工程設計有限公司
完成日期 / 2024年1月
項目材料 / UHPC 超高性能混凝土(外立麵),天然萊姆石材(室內牆麵),水磨石(地麵),軟膜天花(頂麵)
攝影 / Kris Provoost































