都市中的律動景觀,DCDC DESIGN打造中國首個HONMA之家
近幾年,從室內健身房到城市公園,從宅家躺平邁向戶外自然,運動休閑消費滲透到人們的生活日常中,運動賽道也因此有了新的風向,“運動即生活”已然成為運動品牌引發消費者共鳴的流行語境。
無不例外的,過去有著精英屬性的高爾夫運動,也借勢完成從“小眾”到“大眾”的破圈;高球品牌通過門店設計、品牌傳播等形式為大眾展現有別於以往的高爾夫生活方式。
日本高端高爾夫運動品牌HONMA,其中國首家“HONMA之家”坐落於上海新天地湖濱道購物廣場,DCDC DESIGN打破原有固化的品牌零售模式,打造藝術與自然、時尚與都市、社交與娛樂糅合一體的共生情景,為都市人提供運動生活的靈感。
∇ © 雲眠攝影工作室
#01 設計程式
不局限於零售
{ Not limited to retail }
HONMA,這個1959年誕生於日本橫濱的高爾夫運動品牌,秉承著“打造具有藝術美感的高爾夫球杆”信條,從始至終堅持著自主設計、生產一體化,以精雕細琢的工藝、與時代結合的科技,向消費者傳遞HONMA的文化和故事。
∇ 圖片由HONMA提供
麵對“傳承、科技、匠心”的品牌基因,DCDC DESIGN延續全新門店形象概念“律動景觀”,以高爾夫球場的起伏地形和球手揮杆的優美弧線出發,從弧形構造、自然光照到回旋樓梯,用直觀且具有辨識度的方式轉譯出品牌的藝術運動調性和時尚都市風格。
在此之上,考慮到項目參與到了一個曆史文化、潮流生活和自然景觀交織的獨特街區中,DCDC DESIGN以“HONMA Resort”為概念,提出不局限於零售的設計程式,擁抱多樣的場景需求,涵蓋大師工坊、高球體驗、悠享咖啡等,在現代都市的中心地帶,為上海新天地店寫下新的注解,讓熱愛高球的玩家們在此相聚。
∇ 空間爆炸圖-一層 © DCDC DESIGN
∇ 空間爆炸圖-二層 © DCDC DESIGN
#02 視覺錨點
創造都市果嶺
{ Creating urban greens }
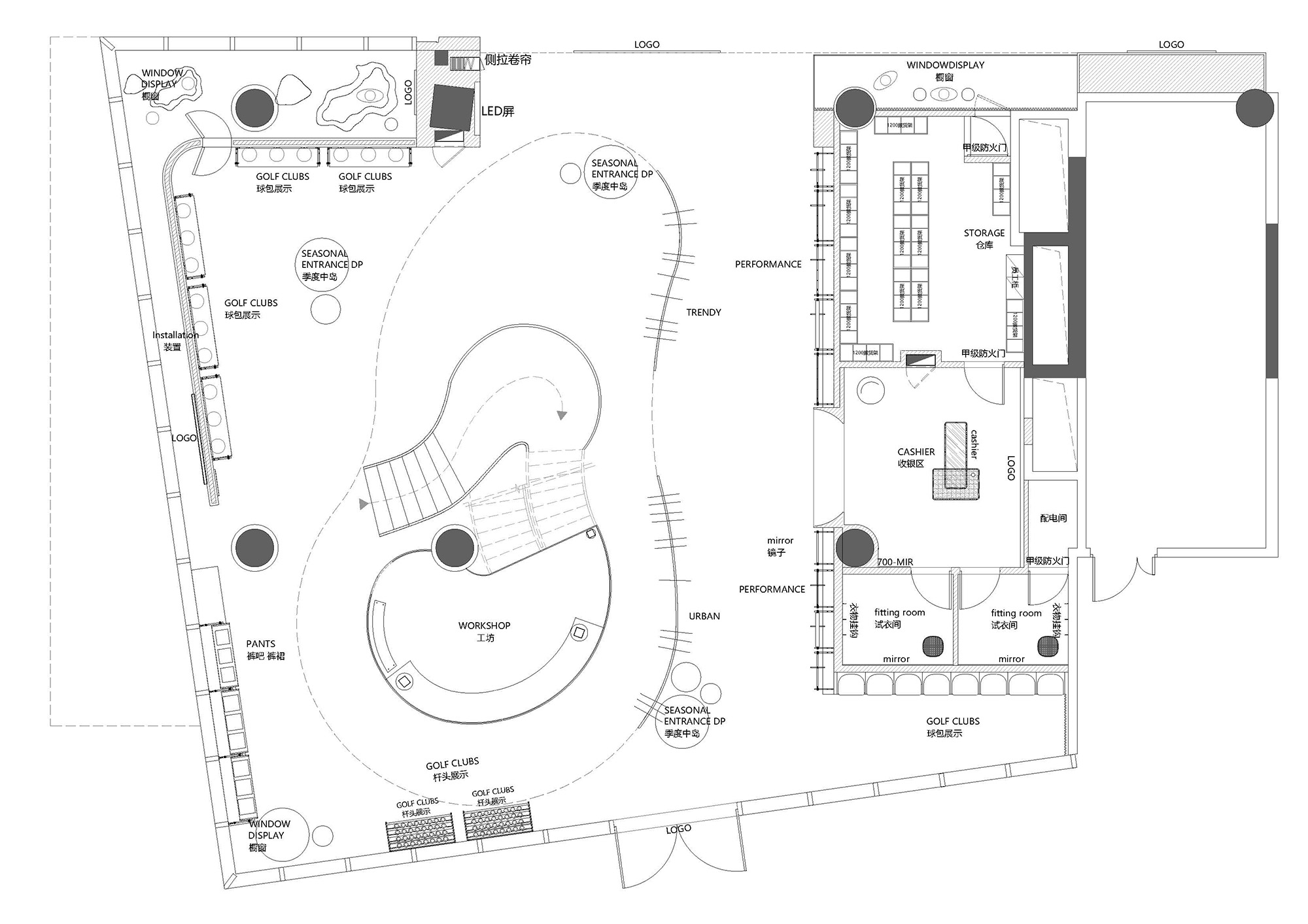
整個門店由700平方米的兩層空間組成,外立麵以通透的玻璃幕牆和超挑高的尺度利落地勾勒出明亮的室內環境,巨大的高爾夫球裝置則作為外在的視覺錨點演繹強烈的吸睛感和震撼效果。
∇ 圖片由HONMA提供
∇ 左圖 © DCDC DESIGN;右圖 ©雲眠攝影工作室
∇ 圖片由HONMA提供
位於商場內部的櫥窗以原木格柵帶來自然的感覺,高球運動場獨有的地形融合在一層的櫥窗內,引導來者進入延綿起伏的果嶺情景,二層放射性弧線的意象回應高球運動中的揮杆軌跡和優雅姿態,打造HONMA的品牌個性和記憶點。
∇ © 雲眠攝影工作室
#03 空間律動
木與織物交融
{ Wood blends with fabric }
∇ © 雲眠攝影工作室
踏入HONMA,大片的原木和淡綠奠定空間基調,演化為地麵、牆飾至柱體的室內裝飾一部分,以環繞形態、柔和肌理、織物質感表達球場草地的律動感,營造空間的清新感和溫馨氛圍,使得消費者自然沉浸於運動的休閑鬆弛感。
同時,透過圓形矩陣的天花日光作為空間主照明,保證產品的主角光環外,溫潤的朦朧感讓空間整體通亮且不搶眼。
∇ © 雲眠攝影工作室
一層主要以回旋樓梯為空間軸心打造環島式動線,依牆之間置入專業產品的陳列係統。采用纖細的金屬框架,意圖凸顯品牌與科技感、工藝感的結合,致敬HONMA的工匠精神。
品牌對高球運動的專注與熱情,也在服飾、球鞋和設備配件等紛繁類目所組成的經典單品中盡數體現,以兼具時尚造型感的設計美學獲得受眾的青睞,打造一站式購物聚集地。
∇ © 雲眠攝影工作室
一個自然木質包裹起來的區塊,放置著收銀櫃台,緊鄰兩側的是試衣間。
∇ © 雲眠攝影工作室
猶如“屋子”的構造給予消費者更友好、更安心的試衣體驗,連同模擬日間的天光營造至柔至暖的木質氣息。
∇ © 雲眠攝影工作室
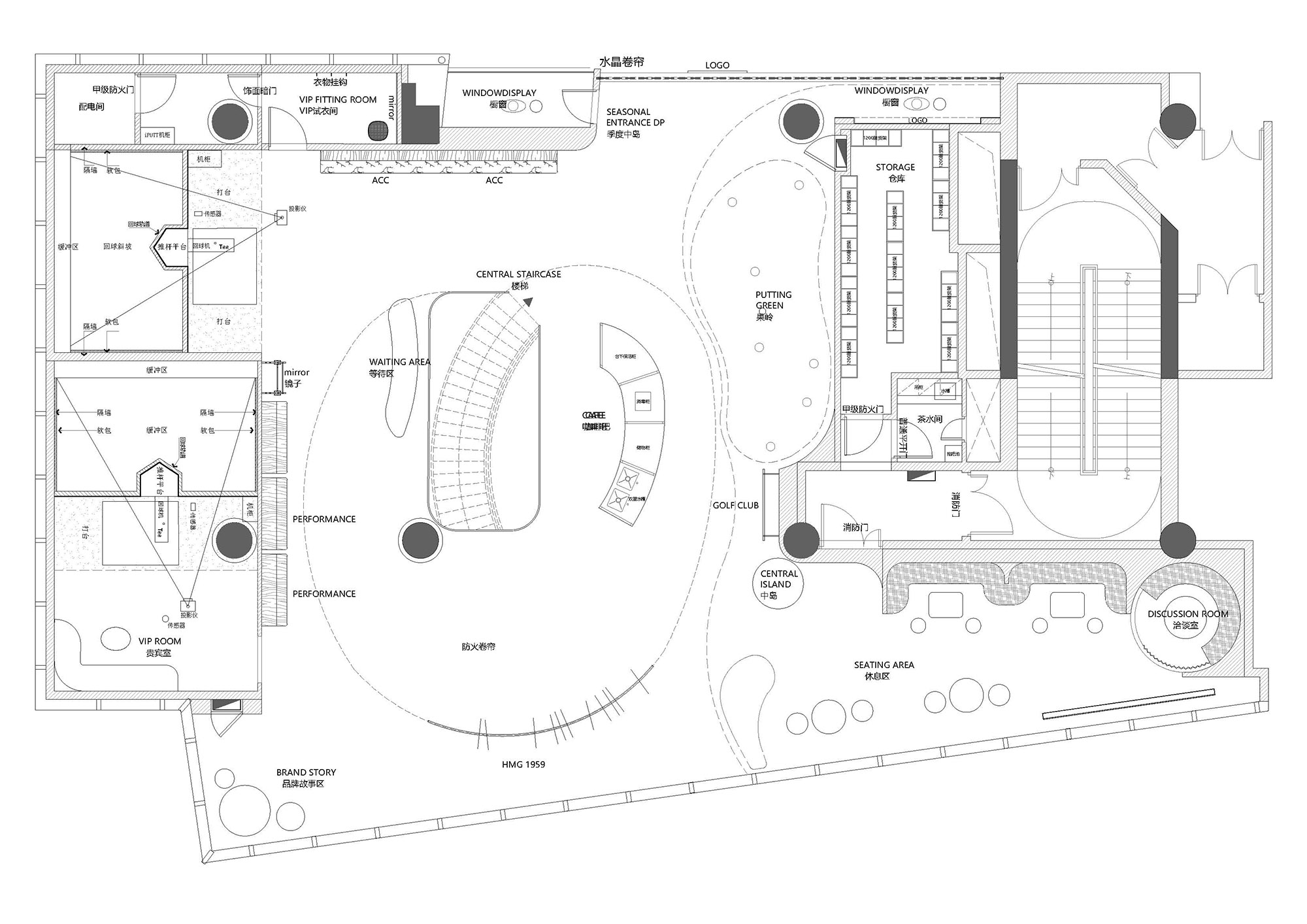
順著空間邊緣向中心收緊,讓視覺重回到回旋樓梯本身,獨特的構造、漸變的色彩和多重功能的承載使其成為內部空間中的視覺焦點,既是串聯上下層次的垂直交通,也是大師工坊區域。
∇ © DCDC DESIGN
∇ 左圖 © DCDC DESIGN;右圖 © 雲眠攝影工作室
HONMA日本酒田工廠名匠為用戶進行私人化球杆定製服務,以此傳遞出HONMA工匠們對每一件匠心之作的誠摯和珍視,為消費者創造更親密的接觸和更真實的體驗。
∇ © 雲眠攝影工作室
∇ 圖片由HONMA提供
#04 共生情景
擁抱多元體驗
{ Embrace multiple experiences }
活力的漸變綠躍然地向上盤旋,以此為界,上下空間布局和規劃流暢分明。相較於多為零售區塊的一層,二層則讓渡了部分零售空間,留出更多可能為消費者打造豐富的品牌體驗。每個區塊分布在空間各處,卻有著共生的聯結性,消費者在這裏可以同時體驗到多種場景。
∇ © 雲眠攝影工作室
∇ 圖片由HONMA提供
木質咖啡吧台位於空間中心,半開放式布藝卡座落於玻璃幕牆旁,來往客流在駐足挑選之餘,愜意品嚐咖啡和擁抱陽光,也讓空間成為一個促進人與人交流、聚集的社交場域。
∇ © 雲眠攝影工作室
體驗區域分布在空間邊緣,由室內高爾夫揮杆模擬器、推杆果嶺和VIP揮杆私享體驗空間三大區塊構成,把高爾夫球場的綠茵氛圍帶到都市中,真實還原球場的地形、視角和擊球方式,鼓勵高球玩家們盡情自由地揮杆,親身享受運動的樂趣。
∇ © 雲眠攝影工作室
DCDC DESIGN從“生活方式”出發,讓柔和、律動落於都市一隅,以新的視覺話語重塑品牌對藝術、自然的追尋和有關於品牌工匠精神的表達,也以此回饋消費者一個收獲美好的旅程。
∇ 空間平麵圖 © DCDC DESIGN
項目信息
項目名稱:上海HONMA之家(上海新天地店)
項目麵積:700㎡
開業時間:2024.1.9
設計公司:DCDC DESIGN
設計方團隊:金波-Kibo、Gianmaria、吳夢青-Ferretti
品牌方團隊:衛覺鋒DEL、劉琦、徐灝SIM
項目經理:甘泉-Enzo
平麵圖:吳煌-Ugo
效果圖:戴明偉-Elvis、遊文濤-Walker
施工圖:張曉-Jack
項目攝影:雲眠攝影工作室










































