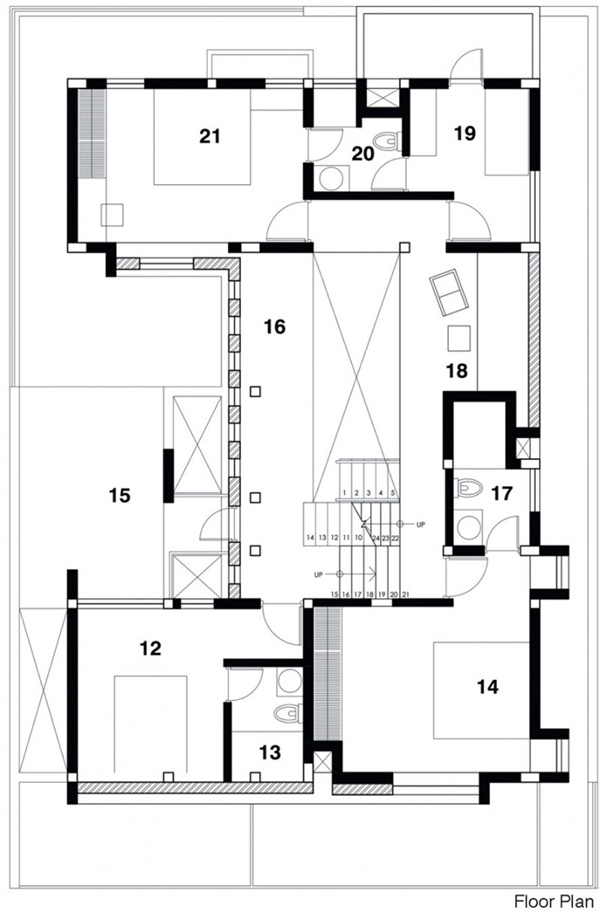
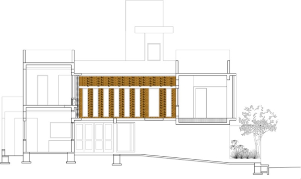
這間LOFT風格的住宅位於印度班加羅爾的卡納塔克邦,由建築師Gaurav Roy Choudhury設計,住宅的建築麵積為334平方米。建築外觀雖很普通但卻擁有良好的通風和采光,室內建有看似複雜的錯層結構。很喜歡這個LOFT住宅的內部設計,沒有過重的工業元素,不單調,能給人清淨居家的感覺。前段時間看到一個住宅的設計,號稱輕工業風格,而是簡單的羅列和堆加一些不著邊的工業元素,對室內裝飾沒有實質性的作用,反而會突兀和礙眼。
Photos © Tina Nandi
Content Copyright © www.online4teile.com
版權聲明:本站所有文章除投稿授權發布外,其他文字內容均為原創,享有著作權保護,未經許可不得以任何形式進行轉載(包括且不限於:媒體、網站、公眾號等)。所有項目照片/設計圖形版權歸原作者所有。本站部分內容源自網絡公開資源或用戶分享,如若侵犯了原作者的合法權益,可聯係我們進行處理。





























