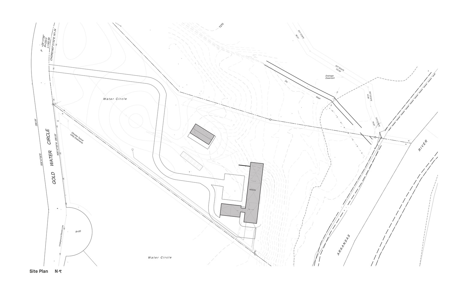
這棟山景別墅位於科羅拉多州薩立達的山區小鎮,位於以藝術為中心的阿肯色河邊,擁有360度的山景視野。居住空間的設計同時將用戶與俯瞰毗鄰阿肯色河的不可思議的景色和4200m高的雄偉的遠處景色連接起來。可遠眺沙瓦諾山、安特羅山、普林斯頓山,還有其他大的山峰。
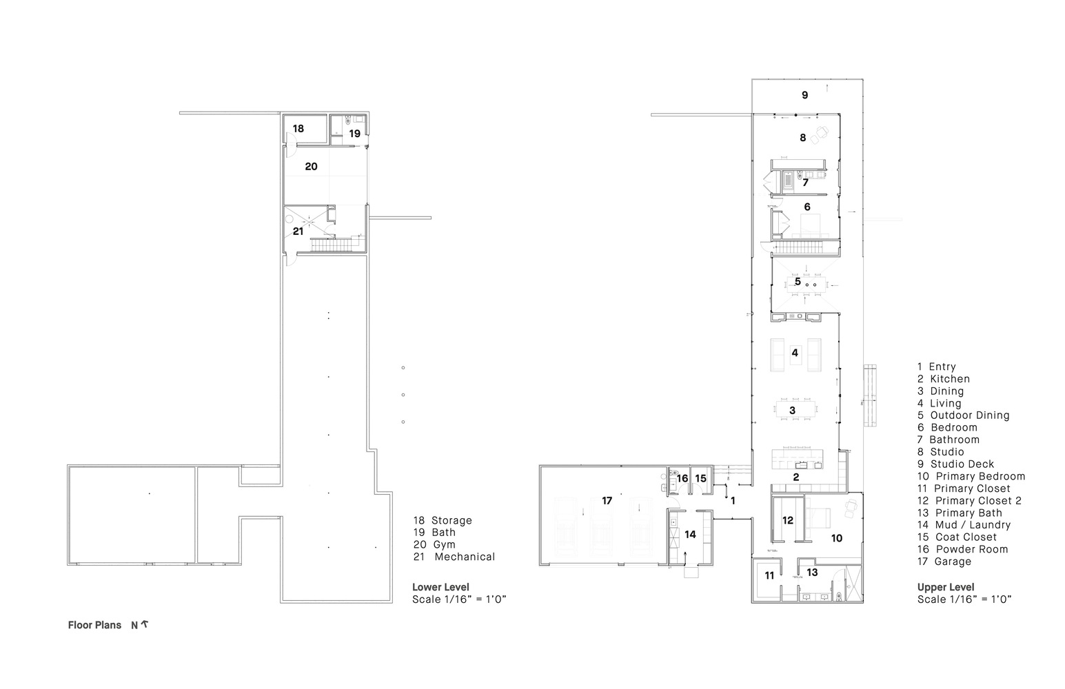
∇ 平麵圖
版權聲明:本站所有文章除投稿授權發布外,其他文字內容均為原創,享有著作權保護,未經許可不得以任何形式進行轉載(包括且不限於:媒體、網站、公眾號等)。所有項目照片/設計圖形版權歸原作者所有。本站部分內容源自網絡公開資源或用戶分享,如若侵犯了原作者的合法權益,可聯係我們進行處理。




































