上海被認為是世界上咖啡館最多的城市之一。 這一現象的部分原因是大型咖啡連鎖店的迅速擴張,但同時也有許多獨立咖啡館。 我們參與了幾家獨立咖啡館的設計,其中之一就是我們去年設計的 SPOKE BEVERAGE ROOM。
這家咖啡館位於上海市中心一座公園旁的大樓底層。雖然這裏是公園,但商店前麵有一堵石牆和一片樹林,可以說是公園的 “後麵”。因此雖然位處鬧市,卻遠離喧囂,有一種無拘無束的輕鬆自由氛圍。
在開始設計之前,店主發給我們一張單人自行車的照片。那輛明亮的藍黃相間的自駕車是這家咖啡吧的設計靈感源泉。其結果是:一個有多種用途,類似車庫的空間。
∇ 設計靈感
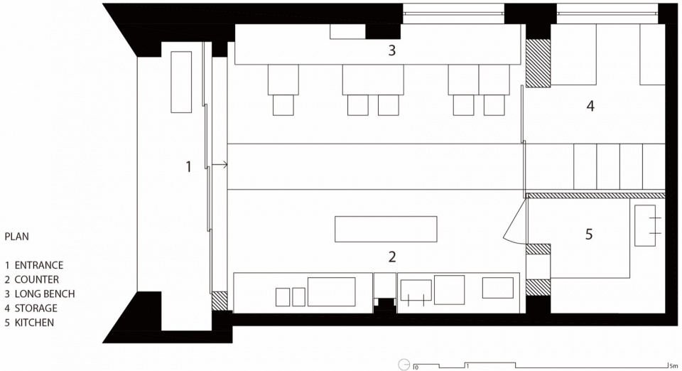
設計以簡潔明了的布局為基礎。具體來說,長凳和櫃台靠牆擺放,確保了中央區域的可用性。 此外,還采用了推拉門,使入口和後麵的儲藏室可以大開。 入口處比現有位置後退一步,以保持店鋪與街道之間的適當距離,從而在屋頂下創造出一個空間。
完工後,店內擺放了各種自行車零件和工具,還安裝了一個大型揚聲器係統,這是在計劃之外的。 後麵的倉庫被用作 DJ 台,定期舉辦活動。 店外沒有任何標誌,所以乍一看很難分辨出這是一家什麼店,但這種難以界定的雜亂感給來訪者帶來了一種放鬆感。
在陽光明媚的日子裏,店門口人頭攢動。 有時,客人會坐在對麵公園的石牆上喝啤酒,營造出一種開放的氛圍。公園後麵,人們在咖啡、飲料、自行車和音樂中享受自由。
∇ 平麵圖
∇ 剖麵圖
項目信息
項目名稱: SPOKE BEVERAGE ROOM
建築師或建築公司 :一岸建築
地址: 上海市長寧區華山路1520弄121號105室
完成月年份: 03.2023
麵積 : 58 sqm
攝影師: Alessandro Wang
版權聲明:本站所有文章除投稿授權發布外,其他文字內容均為原創,享有著作權保護,未經許可不得以任何形式進行轉載(包括且不限於:媒體、網站、公眾號等)。所有項目照片/設計圖形版權歸原作者所有。本站部分內容源自網絡公開資源或用戶分享,如若侵犯了原作者的合法權益,可聯係我們進行處理。
























