未/WAY Studio 為北京市中心營建了一所小型綜合體建築。在這個改造的項目中,未/WAY Studio通過雲廊的銜接去闡述人造與自然的關係,從而進一步探索城市更新與城市的公共性。
新舊交替”人與建築、人與自然
本項目作為一個創新大膽的嚐試,在設計當中並未簡單的複製那早已完美無暇的亭台樓閣四合院,反而采用現代的曲線來詮釋“舊”,在有取有舍的反思當中突出“舊”的價值。設計通過重塑空間秩序,改變人們對傳統四合院的慣性思維。
項目位於北京市中心,緊鄰故宮東側,於90年代改為獨立的私用四合院。此次改造將原來私人空間,轉變為現代的城市公共空間,420平方米的院子形成一個多功能城市客廳進而迎合城市的不同需求。
∇ 項目緊鄰故宮東側
在功能流線組織中,保留傳統中式四合院的設計理念的同時,通過上下雙流線的安排讓空間從原本私密的、缺乏合理性的無序布局轉變為具有現代功能與空間層次感的小型商業綜合體。
雲廊、洞天
人,人造,自然,造景
為了激活城市深處的公共空間,未/WAY Studio在改造時並沒有變動傳統建築本身,而是加入廊橋,對院子中的“空”進行設計。將其以裝置作品的形式與空間進行對話,“天人合一”的理念,在空間中以各種姿態演繹。人們對曲線天生有著某種程度的迷戀,其與人的搭檔顯得毫無違和感,可能是因為人本身也是曲線構成的原因。
未/WAY Studio在改造的過程中,通過雲狀連廊重塑傳統四合院的天際線,讓自然與人造空間形成新的 關係。進門後的第一印象是雲狀連廊懷抱著兩顆參天大槐樹的院子,樹蔭清爽了整個夏天,抽象扭曲的鏡象懸浮於天花板上,隨著夜幕的降臨變得光怪陸離,一步步引人入勝。
曲徑通幽後便來到主院,傳統的四合院天井形象從此消失的無影無蹤,取而代之的是自己的映 像之河與天空的碰撞,雲狀連廊使四合院各個房子之間形成了新的天際線。廊橋成了建築的延 伸,重組其虛實關係,於室內外形成“灰空間”。正是因為有了這些能提供遮陽避雨的人尺度 空間使其逗留,才凸顯出讓城市客廳的意義,建築的社會性也由此產生。
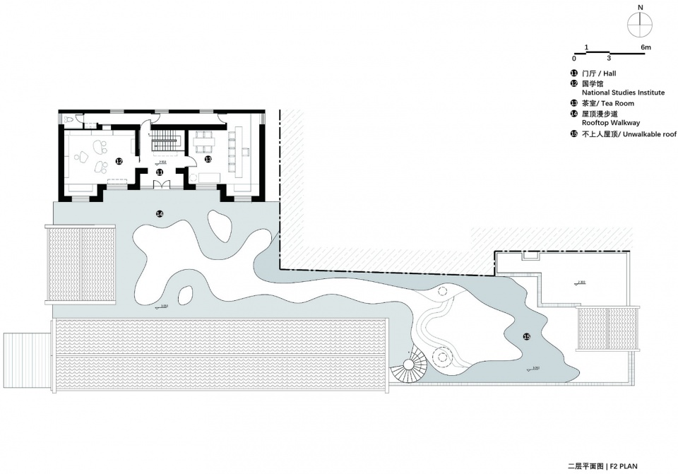
室內外由兩部樓梯與雲廊連接,步入雲廊之上,傳統的四合院屋頂如島嶼般被其環繞,心中不免泛起上房揭瓦的衝動。一層院子的輪廓在二層被雲廊勾勒出豐富的層次,最重要的是這些戲劇性的曲線欄杆與人形成的有趣的互動,為空間增添了最重要的人文色彩。
城市客廳
靈活多變的城市客廳/小型綜合體
未/WAY Studio在梳理各個功能的可能性及核心空間需求的同時,盡可能的保留了空間的多功能性及模糊性以適應不同。室內空間主要由四部分組成:進入院內,北側原傳達室被改造為咖啡茶館,主體建築的南房亦由展廳及一個可供14人用餐的長吧台銜接,北屋一層作為包間使用,二層作為國學交流中心分別設有茶室和國學堂。幾個主題功能亦根據日夜時間轉換或者節日、活動等,互相調配空間使用及院內的公共空間。
園中呈現全日的生態轉化,為了適應時代的多樣性,形成自己的一套日出而作日落而息的狀態。晚上作為餐廳運營,整院可接待約50名賓客,極限的活動狀態可達到200位以上的客人。應對不同的需求,呈現不同的應變,從而實現了靈活的城市公共空間。
∇ 拆解軸測圖
東方美學 – 別有洞天,別有天地
35號院的項目也像是東方美學價值觀落地的嚐試,讓人們跳脫出所謂”中式空間”的固有印象,而是在現代功能與東方美感中完成一番“別有天地”的創新嚐試。體驗與功能同時呈現流動的狀態。
別有天地的概念來自李白的《山中問答》,問餘何意棲碧山,笑而不答心自閑。桃花流水窅然去,別有天地非人間。
∇ 一層平麵圖
∇ 二層平麵圖
∇ 剖麵圖
項目信息
功能:小型綜合體(咖茶、餐廳、中式生活用品、畫廊、國學館、茶室)
地址:中國北京
麵積:440平米
高度:12米
設計團隊:鄭濤, 黎紫翎 Fernie Lai,張澤群,方文,王天墨,陳宇
總包單位:北京赫立達建築裝飾工程有限公司
攝影:高原;曾皓;AkunLee
項目周期:2022 – 2023

































