這座度假別墅位於上海浦東郊外 。2018年春天,我們收到業主的委托郵件,希望拆除舊宅,建造一棟新房,供兄妹兩家在周末和假期從都市切換回鄉村,看望父母、品茶聚餐,在田園的寧靜中休憩,體驗自然的生活節奏和氛圍。
我們的設計概念包含以下三點。自然的要素被放在首位,雖然基地正對一片果樹林,且建築正前方有一片場地可用作花園,我們仍然希望在建築空間中引入綠色,借鑒了東方傳統庭園的理念,讓自然滲透到建築內部,消除室內外的對立與隔絕。其次,作為大家庭住宅,內部的公共空間成為重要議題,開放舒適的公共空間可以為家人間的交流創造更多的機會,獲得融洽的家庭生活氛圍。第三,現代性是這次鄉村建造實踐貫徹和堅守的原則,無論周圍村鎮環境如何,我們認為在這塊小小的宅基地上樹立一座現代建築白房子,是這個項目的重要意義。
根據上海的鄉村住宅建造規範,拆除前的老宅體量決定了新建建築的形態——一層的建築輪廓線被確定,東側的體量高度被限定為2層,其餘為3層,且坡屋頂和簷口高度也有明確的限製。在這些條件下,我們仍希望貫徹自然的設計理念,在不同樓層植入內庭院和天井,創造立體和內向的庭園,以確保其營造的內在氛圍;同時,建築主體的姿態是外向的——21米長的橫向體量被明顯地懸挑架空托出,麵向果林,西側3.5米的懸挑體量直抵基地的邊界,也解決了因空出內庭院而產生的麵積需求問題。自然光通過內庭院和天井的大麵積開窗進入室內,營造出充足且柔和的光感氛圍。結構和構造的設計也完全遵循當地農村施工的技術,我們指導那些沒有任何現代建築施工經驗的工人,以最普通的鋼筋混凝土框架填充磚牆的方式構造建築體量。
別墅建成後,現代的外觀從某種層麵影響了村民對現代住宅的認知和接受。業主家的老人作為原住村民照常在這座現代建築裏過著農耕生活——種植蔬菜養殖家禽,中年的業主也將上海城市生活的習慣帶回鄉村,麵向庭院喝著咖啡,達到了某種程度的和諧。對於上海這座大都市,郊外的鄉村別墅可以緩解城市環境的壓力;鄉村居民們認為,自建的住宅相比於大多地產別墅項目,更有機且貼近生活的需要,結合中國當代的土地政策,對於他們這些有宅基地的本地居民來說建造自己的住宅相比購買也更加經濟。希望這個項目在美學、實用性和建造技術上可以探索出適合當代中國的現代鄉村住宅類型。
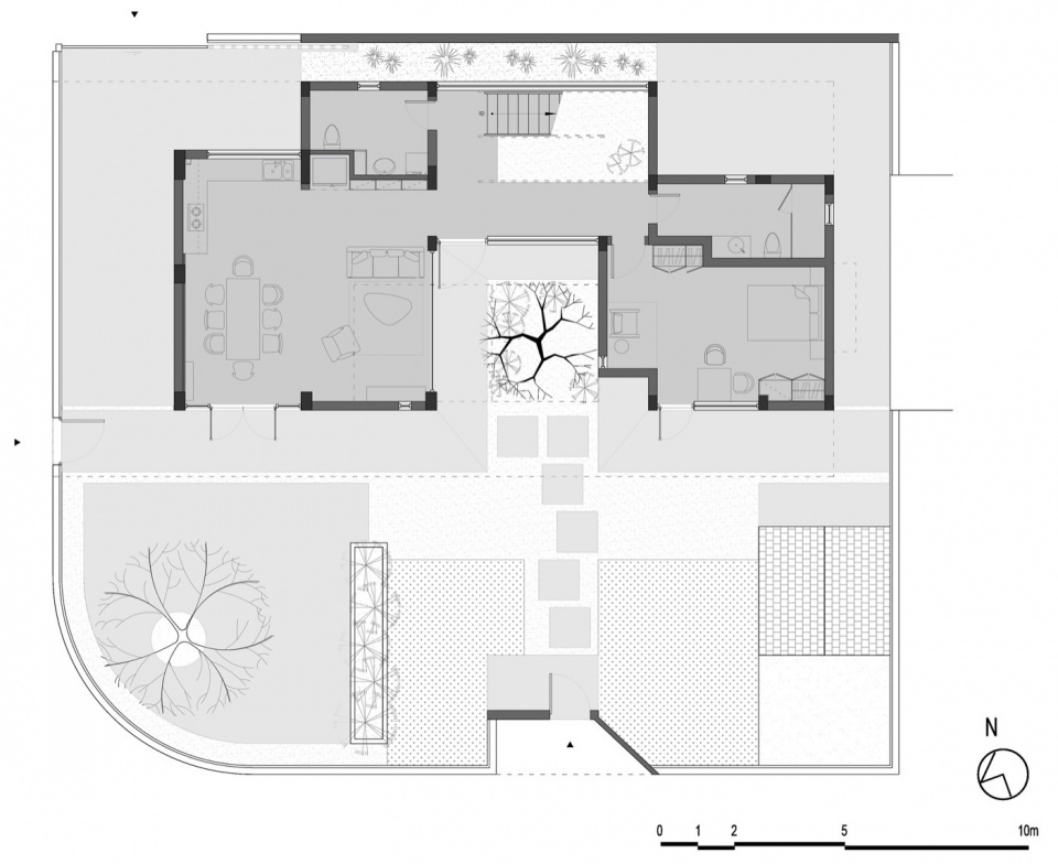
∇ 一層平麵圖
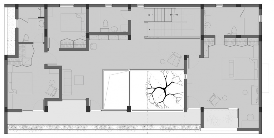
∇ 二層平麵圖
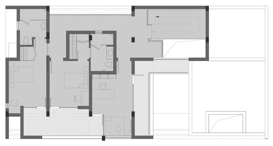
∇ 三層平麵圖
∇ 剖麵圖
項目信息
項目名稱:上海浦東田園住宅
項目類型:獨立式住宅/建築
設計方:柯笠建築
項目設計:2018
完成年份:2023
設計團隊:李柏、李璿、謝金輝(結構)、張道光(機電)、顧宗良(給排水)、徐煜超(實習)
項目地址:上海市浦東新區萬祥鎮
建築麵積:430㎡
攝影版權:WM STUDIO (照片及視頻)












































