人類建立起來的城市空間之所以對小動物們“不友好”,是因為它是以人類的尺度和行為模式作為設計的依據。這些行為模式又形成了一些固有的“概念”,比如室內、室外、門窗、台階、鋪地、綠化、家具、燈具。建築師以往的工作是圍繞這些概念進行的,甚至“貓咪友好設施”也是這些概念中的一個。我們所做的工作則是消解這些概念,讓場所中的“物”回到一種平等的狀態。
我們有意的忽略了室內外的區別,而采用了一種“延綿起伏的地形”來覆蓋整個地段。這些“地形”之中的元素又模糊了台階、坡地和座凳的區別,代之以“供人類和其他動物行走和停留的坡麵與平麵”。植物則毫無規律的從這些“平麵”中生長而出。在植物的種類上,我們主要選擇了一、二年生的草本植物,讓植物可以直觀的反應季節和環境的變化。在地形和植物之外又漂浮著一些“發光的圓片”,人類可以將它們作為桌椅使用,而貓咪則可以將它們作為遊戲的場所。
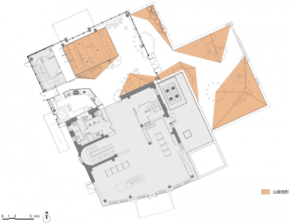
∇ 山坡地形
∇ 圓片係統
為了讓這些設計的結果更加抽象,避免人類產生對材料和形式的任何“故事性”的聯想,我們使用了完全人工的材料和幾何化的構成。坡地的平麵是樹脂製作的人造木,而圓片則是白色烤漆的不鏽鋼材料。這樣的設計反而讓使用者(人類和動物們)更加關注材料本身的顏色、溫度、硬度和表麵摩擦力。
最終呈現的空間是地形、植物、圓片三個係統的簡單直接的疊加,三個係統都是勻質的,他們的之間的關係是直接和不妥協的。三個係統像是在競爭和互相融入,正像是在自然中的發生的事情。
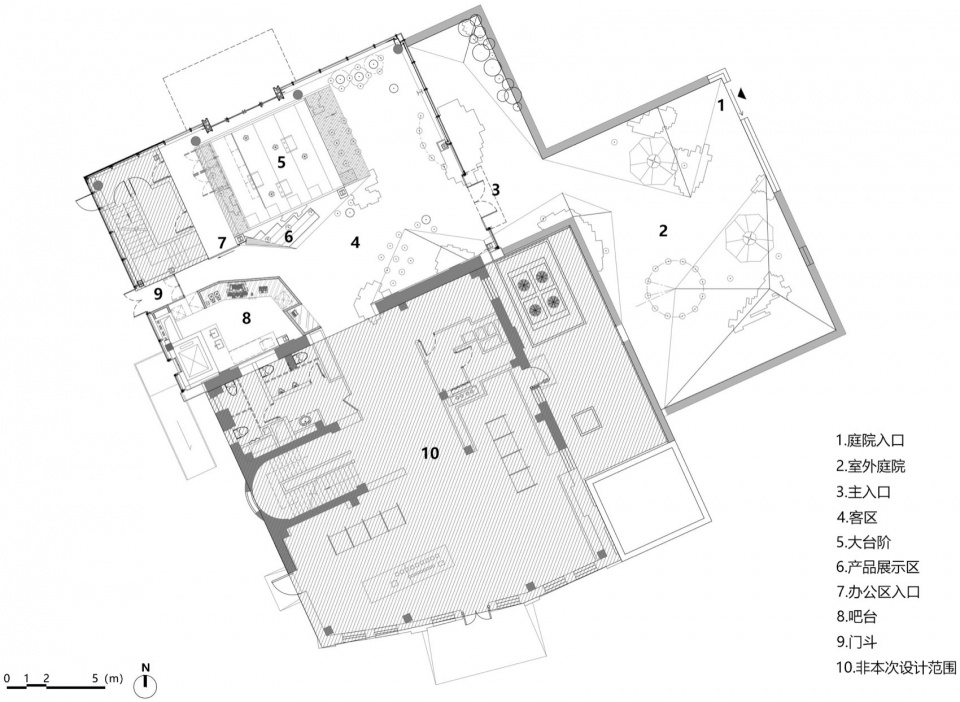
∇ 平麵圖
∇ 綠植
項目信息
設計時間:2023年6月-2023年9月
施工完成:2023年11月
主創設計師:汪錚
項目負責人:楊傑
設計團隊:向懷誌,曹智超,王方超,魏穎楠
施工圖負責人:許輝
攝影:金偉琦
攝影版權:空間站建築師事務所





























