這棟800㎡的獨棟別墅位於佘山腳下
1000㎡的花園打造遠離喧囂的度假宅
極簡現代主義的外觀,賦予建築空間的藝術美感。
玄關大片落地窗與頂麵不鏽鋼鏡麵相輔相成,將外景引入室內,有種空間挑空的錯覺,更顯通透。
CELINE同款黑白花磚連接玄關和客廳,充滿張力的花色如同夜空中璀璨的銀河,優雅且神秘。
牆麵嵌入金屬色的展示櫃,給家裏擺件和收藏安個藝術質感的家。
客廳圍繞承重柱橫向展開,沙發麵向挑空落地窗,春看花夏看雨,秋看落葉冬看雪。
灰色調客廳被銀色承重柱點綴,金屬的光澤自帶未來感,啞光的質感也保留了一份克製。
折線燈從餐桌一路蜿蜒曲折,將整個公區聯動,充滿空間互動感。
餐廚區用木飾麵裝飾,和客廳分割,形成一個Box空間。
餐區大片窗景,仿佛置身於森林餐廳,舉目望去,皆是綠色。
走廊盡頭的圓形燈環,仿佛時空隧道的入口,能夠通往未來世界。
純白的樓梯猶如置身藝術館,視感整潔統一,宛若靜止的雕塑。
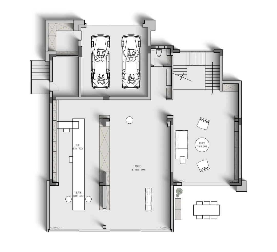
負一層最內側的空間是屬於男主的書房,獨享超長島台書桌和書架,工作也可以是享受。
外側則是留給女主的健身空間,整牆玻璃鏡麵映入園景,運動和賞景同時進行。
鏤空的櫃體作為隔斷,將負一層分成兩個功能區。
利用二層挑空的半牆做書桌,和次臥窗台一起賦予空間通透寬闊之感。
全景落地窗的陽光房留給貓貓做貓房,把最通透的景色留給貓貓們,享受喵生。
進入主臥的長廊給休憩帶來儀式感,“豁然開朗”的視覺有種來到“桃花源”的錯覺。
主臥和現代感的公區不同,木格柵返璞歸真的自然質感,溫暖素雅。
低飽和的灰色次臥,在陽光下,有種清冷的鬆弛感。
∇ 1F平麵圖
∇ 2F平麵圖
∇ B1平麵圖
項目信息
項目名稱|未來之家
設計範圍|全案設計
項目地點|上海市·鬆江
項目麵積|建築麵積800㎡、花園麵積1000㎡
設計機構|FF DESIGN
設計總監|費崎峰
工程總監|陳曉峰
設計團隊|李智民 劉娟娟
參與人員|柳 文 王宇棟
項目攝影|徐義穩
部分主材|F+、德國schroeder、IMOLA小蜜蜂 蘭
部分軟裝丨PRO101





















































