場地位於上生新所(COLUMBIA CIRCLE)的3號樓。該地在租界時代是供西方人度假放鬆的哥倫比亞鄉村俱樂部,於2018年經由OMA改造後的“COLUMBIA CIRCLE”重新開放。
改造前建築麵向噴泉廣場的是一個封閉立麵。 我們通過向外延展的“大棚”,將廣場和景觀延伸到室內,我們希望人們能夠從各個方向自由地聚集在這個大棚下。
coffea SHED是一個咖啡農業零售空間。向公共廣場和社區開放,成為居民日常的聚集地。這裏出售咖啡及農副產品和日用服飾雜貨。
店名中的SHED,靈感來源於咖啡產地隨處可見的“棚”,以柱子支撐屋頂,結構非常簡單,在大棚下農人們閑聊、休息、吃飯,緩解農活的疲勞。在城市中我們也想搭建這樣的“大棚”讓忙碌的人可以休息、彙聚、愉快交流。
我們認為,一個連接城市消費者和生產者的平台應該在這樣一個大棚下的寬敞、開放空間裏。寬敞的“大棚下”設計采用壓型金屬板,這種材料通常應用在農業生產中的倉庫等構築。
∇ 分析圖
這種板材加工容易,且可將照明與噴淋等消防設備結合在一起。在壓型金屬板內凹的部分置入日光燈管,並在板材間的橫梁上設置軌道射燈。這樣的天花照明設計可以適應空間靈活變化的布局。
此外,通過將與店鋪前的戶外廣場上使用的花崗岩磚延用到空間內部,盡可能地消除內部和外部之間的界限。
場地和後麵的公寓樓之間有一個小後院,這個小院原來被閑置了。我們希望通過“大棚”的元素將廣場前的開放空間和後院連接起來。
室內也可以麵向後院開放,後院明亮陽光和植物的生命力進入到室內,讓人可以在大棚子下待上一段舒適的時間。
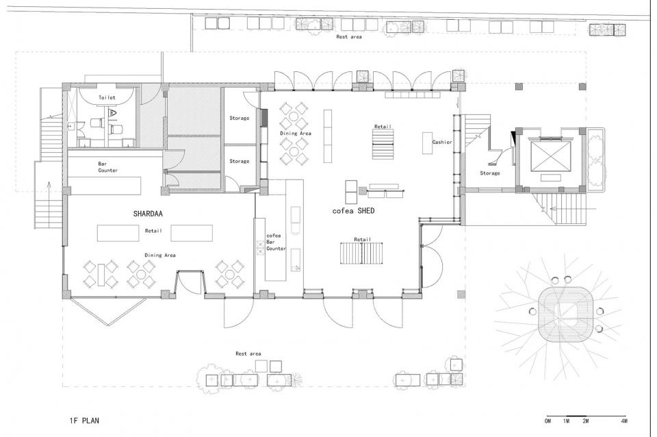
∇ 1F平麵圖
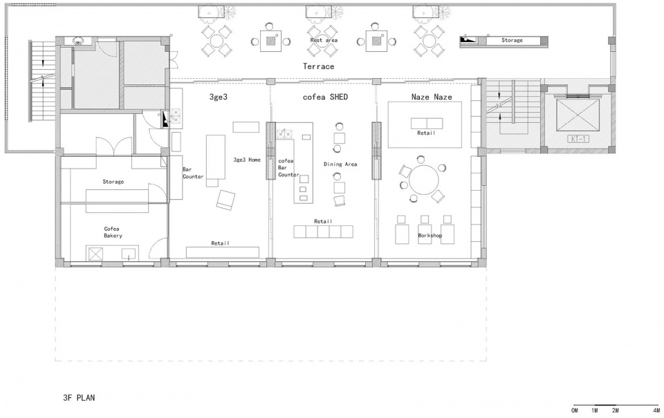
∇ 3F平麵圖
項目信息
項目名稱: coffea SHED上生新所店
建築事務所: 小大建築設計事務所
項目完成年份: 2023年6月
建築麵積: 400㎡
項目地址: 上海長寧區延安西路1262號上生新所3號樓1F, 3F-
設計團隊: 小嶋伸也,小嶋綾香,北上紘太郎,黃永順、羅伊
攝影師: 堀越圭晉,朱潤資






































