紅蘋果集團總部全新生活空間體驗館,演繹溫暖自在的理想生活。
在嶺南這樣的地方,四季並不分明,有時候從樹木很難判斷時間的流逝,以為它靜止不動,但是一個生長了40多年的場地,你會發現自然生命的跡象無比蓬勃。
樹影在牆壁上遊走,樹梢從窗戶探出腦袋,樹枝橫著肆意生長,新葉經曆冬天再次出發……一切都在不斷變化的進程中,人與場地也在尋找更加默契與平衡的相處之道。
場地,時間的痕跡
這是香港家居品牌紅蘋果位於深圳的總部園區,曆經40多年,場地成為了時間的見證者。當BDSD吾界的設計師第一次走進園區的主建築時,沉穩、滄桑、繁盛的生命力是它最深刻的痕跡。
這兩年,紅蘋果家居迎來新的發展階段,原有的建築形態和辦公空間也到了需要展露新麵貌的時機。此次,BDSD吾界的設計包括建築2F入口、文化大廳以及5F生活空間體驗館。
“在台階上坐著,陽光從細碎的葉片間穿過,投下斑駁的影子,風一吹葉子也開始晃動,好像時間就靜靜地在眼前。再看到門口擺放的老機器,斑駁的鏽跡,這是一個40多年曆史的品牌。當初建造這個建築時,很多結構細節其實做的特別好。我們希望能夠保留‘時間感’,從而獲得建築的厚度。”BDSD吾界設計創始人林文科說。
原主建築入口功能不清晰,人行與電動車沒有分離,削弱了進入建築的儀式感和品牌形象。BDSD吾界設計重視建築入口與周圍環境的組合、共生關係,通過人車分流、對功能的規劃、細節縫隙的處理、植物的錯落,台階層次的重設,重新建立了人的視覺和行為動線。
將建築與周圍環境、與人、室內外形成了新的對話和融合關係,構成了開放的場所特性,增強了場地的秩序感,也體現出建築的謙遜。
輕盈,如美術館般的文化大廳
文化大廳的內部改造包含機器陳設、紅蘋果企業文化長廊。改造重點是:基於場地的特點,讓原本深邃複雜的空間變得透氣舒展,讓空間更加友好,從而呈現出品牌的親善性。
BDSD吾界設計更新了原有玻璃門,以整幅落地玻璃拉近室內外距離;改變原先室內複雜的界麵關係,統一材質,在開合之間平衡空間狀態;取消原室內的植物種植槽;增強秩序感;讓自然光與人造光完美配合,呈現幹淨輕盈的視覺效果。
在統一界麵和材質上,設計師選擇了玻璃磚,既保證了良好的采光性,又有效屏蔽了室外複雜的園區環境。牆麵的細節處勾縫,讓大麵積留白的牆體變得透氣舒展,視覺不斷延伸。
當植物將綠色的光影投射在玻璃磚上,有韻律地灑進室內,隨著時間的變化,形成迥異的光影,形成了更加輕盈、優雅、詩意的空間氛圍。
在這種開放的空間姿態下,人與人的溝通變得更加靈活,形成了空間多樣化的使用場景。整個室內環境與外界有效分隔,隻剩下平和與寧靜。
設計師將原有短促的台階拉長形成完整的平麵,提取紅蘋果的品牌色,構成立體架構嵌入空間,與簡潔的品牌logo,形成了強烈的視覺衝擊,強化了品牌形象。
在企業文化長廊部分,設計師創造了一個簡單,但是內向開放的空間,通過玻璃磚延續與外部的光影聯係,這裏主要的敘述者是光。光引導著人向前,與牆麵上娓娓道來的企業故事相呼應,讓每一個員工及來訪者對品牌產生更深的情感認同。
∇ 2F 爆炸分析圖
品牌新展廳,流動的生活畫卷
位於5F的紅蘋果理想生活空間體驗館是此次設計的重點,BDSD吾界設計從品牌最新的產品理念“空器合一”出發,將新展廳定義為“安放器物的場所”、“實現功能所需的場所”、“人活動的場所”,從而實現空間、器物與人的和諧統一。
∇ 外觀概念手稿
∇ 設計概念
5F是紅蘋果的辦公、接待區,尺度巨大,圍繞著場地四周是水係和植物種植區。在複雜的場地環境中,BDSD吾界設計選擇了形體簡單的方盒子予以回應,以“內建築”、“和諧性”、“通透性”,作為整體建構與美學的核心關鍵詞,既不破壞原場地的建築結構,在紛繁中尋找統一,又能很好的強調新展廳的功能。
步出電梯,一麵完整簡潔的品牌logo牆赫然呈現於眼前。鏤空的方格取自原品牌第一代logo的圖形標識,與“器”字相呼應,用形體詮釋品牌“空器合一”的理念。
懸浮的牆體讓方盒子顯得更加輕盈,與縱向的木飾牆麵相交叉,營造出一個輕鬆自然的場域氣質,有趣的外表打破了沉悶的形體,延伸出來的木質底座,形成了人與空間的交互關係。
圍繞著方盒子的外側行走,水平長窗吸引了人的視線。在柯布西耶的薩伏伊別墅中,他提出“橫向長窗”是現代建築的五要素之一,不需要承重之後,立麵得以大麵積打開,帶來了優良的采光和通透的視野。
在新展廳的方盒子上,設計師用水平長窗實現內外的交互功能。消除了大麵積牆體的壓迫感,帶來更加靈動的立麵效果,以極平靜的方式悄然打開觀看通道。
當人從內向外觀看時,視線範圍內遮蔽掉了地麵和頂麵環境,讓室內花園成為主體,實現了人與自然共生的場景;當人在建築外走動時,室內家居體驗館的不同章節和主題,依次呈現於眼前,場景轉換,一幅當代人的生活畫卷在眼前緩緩打開。
沿著水平開窗轉折,延伸到另一個入口,窄窄的窗變成了開闊的門洞。整個立麵去形式化,實現結構與空間邊界、建築骨架和表麵的統一,通過牆體下方的燈帶營造出輕盈的感覺。不斷變化的牆麵結構,豐富了內建築的造型,與大的場地環境構建多重關係,為人的行為營造了多種體驗感。
建築,生活的容器
方盒子的內部按照功能分為:入口品牌文化展示區、情境空間、單品展示、組合展示、樣板空間、辦公空間。空間阻而不隔,形成完整的洄遊動線。
“內部空間最重要的是激發一種全新的體驗感,充分體驗產品的細節之處,同時,通過多個生活場景呈現出紅蘋果‘溫暖自在每一家’的願景,鼓勵來訪的人以輕鬆自在的方式與產品和空間發生互動。它也是一個靈活、可不斷重新組合的展示空間,為日後的使用帶來便利。”林文科說。
∇ 裝置概念
在品牌文化展示區,以榫卯結構製作而成的藝術裝置,既表達了作為家具品牌製造商的匠心精神,又成為奇妙的空間隔斷。
作為一個商業展示空間,在內部打造一個集⽂化、產品、展示、沙⻰、體驗、辦公於一體,便於線上線下宣傳的多功能複合型展廳是核心功能訴求。通過展廳傳遞家的溫暖,重視場景的私密性和個性化,讓空間、器具與人的生活融為一體,是品牌的精神需求。
BDSD吾界設計長期耕耘於住宅空間設計和商業空間設計,深諳構築外在的空間的同時也構築心靈空間。
以素雅的材料、溫馨的色調,突出紅蘋果全新家具產品對“溫暖自在”的演繹,增強室內空間與周圍自然環境的視覺連接,創造出和諧、寧靜的室內氛圍,營造居住空間的場域感。
在這樣的空間裏,人自由穿行,在令人鬆弛的自然光氛圍下,選擇一把舒適的椅子坐下,感受著風從建築的外窗,穿過方盒子的長窗吹進來,水流湍湍的聲音不絕於耳,欣賞室內庭院的自然美景,一種莫名的安全感與歸屬感油然而生。
∇ 2F 平麵圖
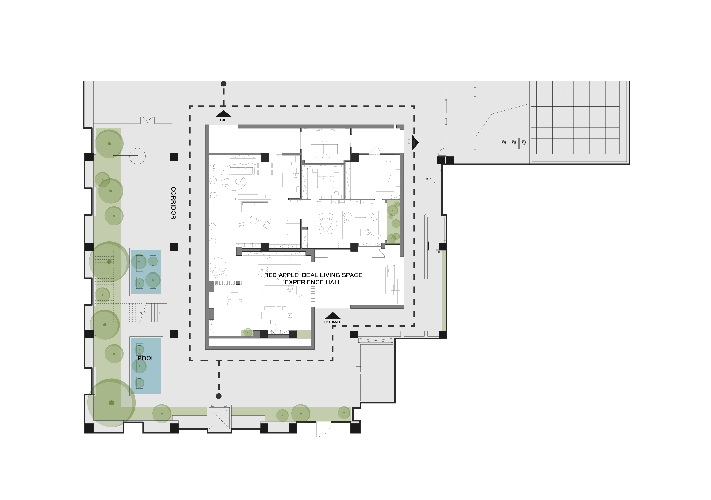
∇ 5F 平麵圖
∇ 5F 展廳平麵圖
項目信息
項目名稱 | 紅蘋果理想生活空間體驗館
項目麵積 | 1500 m²
項目地點 | 中國 · 深圳
設計團隊 | BDSD吾界設計
主案設計 | 林文科 孫征遠
參與設計 | 葉向真 蘇日賢 何海權 潘美嘉
軟裝設計 | BDSD吾界軟裝 / 董洪瓊 葉佳欣
產品設計 | 紅蘋果家居集團
項目業主 | 紅蘋果家居集團
項目建造 | 研工良造
項目攝影 | 瀚墨視覺 葉鬆
項目攝像 | 瀚墨視覺 梁振興
品牌策劃 | 回響之外


















































