在當下城市中,人們的生活在公司和住所之間兩點一線不斷反複。閉上眼,回憶一下一天中我們經曆的城市空間,我們會發現熟悉的城市空間往往是玻璃幕牆包裹下的高樓、寬闊的馬路和快速的車流。在這樣直線形的光滑表麵的高效的空間中,在快節奏的被手機信息充滿的日常裏,我們的生活在哪裏呢?
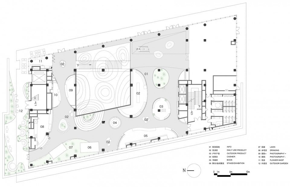
“大屋頂SPACE&銀鹽”集合空間位於居住小區附近的地鐵站周邊區域,是一個在上下班路上路過的空間。這片區域曾經是一片濕地,設計從場地的記憶出發,從濕地的線條和包裹式的形態中提取靈感,塑造出整體空間形態。整個空間用曲線包裹著功能空間,成為多個“功能泡泡”。
∇ 曾經是濕地地貌的場地
∇ 從濕地的線條和包裹式的形態中提取靈感
就像濕地中豐富的空間體驗一樣,這一個個“泡泡”空間是一個個生活場景的展示,這裏是生活場景的集合,也就是一個微縮城市。在不同的材料和不同的形態的塑造下,不同的空間展現出自身的空間特性。主入口被植物填滿的“泡泡”用貼著磨砂半透明貼紙的玻璃進行圍合,來呼應濕地的霧氣朦朧感。磨砂中還有著透明的洞,引導人們在“霧裏”探索。除此之外,濕地的元素如彩蛋一樣出現在空間中,比如,座椅的軟包采用了綠色織物,多種顏色混合編織帶來了內斂下的豐富的質感等等。
戶外產品空間采用了水洗石、水泥塗料和金屬波浪板來塑造出戶外的氛圍。舞台區域則用綠植、戶外細條木地板和折疊的軟裝桌椅來打造戶外露營的體驗。舞台區對麵的座椅區域則是一個開放的台階式的“泡泡”,黃色水洗石用溫暖親和的顏色和可觸摸到的小石子質感來營造社區街角小公園的親切感和熟悉感,留住路過的人們落座。同樣是在室內展現戶外空間,四種不同的處理方式得出了四種不同的戶外體驗。生活區和書籍區需要給人們舒適和親切的感受。所以,這兩個空間采用了木飾麵作為主要材料,生活區采用淺色白蠟木飾麵板展現明快的空間氛圍,書籍區采用了原色白橡木飾麵板來體現較為安靜的氛圍。
水吧區主要負責白咖夜酒,整體外觀上采用了手工磚和原色白橡木飾麵板的組合,結合吧台座椅,整體營造出家樓下的社區咖啡小店的質感。兩個為攝影設備和攝影作品展示而設計的攝影區,分別使用了原色黑胡桃木飾麵板和淺灰色胡桃木飾麵板。這樣在相鄰的形態功能接近的空間之間形成對比,形成藝術的張力。“泡泡”之間的地麵采用了骨料斷麵為圓形的綠色水磨石,這樣不僅與濕地的概念相呼應,同時,綠色水磨石作為這個空間中貫穿始終的材料,引導人們探索這個空間,這個“小城市”。當人們意猶未盡地推開大門,會發現這個“小城市”延續到了露台。在這裏,曲線引導著人們在微風中繼續探索之旅。
∇ 在“功能泡泡”中間漫步的空間
實際使用中的更新讓這個空間更像一個在不斷發展的有活力的城市。設計給實際運營中的更新和變化做了預留。洞洞板可以適用於產品變化帶來的展示方式的變化。可移動的“泡泡”形狀的展台的曲線不僅是濕地的曲線形態和多樣化的再一次展現,也讓不同尺寸形狀的展台拚合的時候不會出現直線邊緣常出現的密拚對不上縫的尷尬。可多種組合的展示方式適用於多種展示場景。
∇ 靈活組合的展台
與自豪地擁有著主軸線串聯著地標的現代城市空間相比,這個空間沒有特別明確的中心。這裏也沒有光滑的玻璃幕牆和寬闊的大馬路,這裏的不同的空間之間視線可以互相對望,是有著“孔隙”可以互相交流的空間。去中心和有著“孔隙”的空間引導人們不斷探索和漫遊。從形態上看,當現代人的生活中充滿了高效的直線的時候,柔和曲線的漫遊空間可以讓人們喘口氣。除了用自然的曲線塑造整體空間,設計在實際的空間場景中融入的綠植和大台階,從傳統商業的角度,這樣是麵積浪費,並不是一個高效空間。但是,正是因為這樣的“浪費”和不高效,這個空間更讓人感受到難得的放鬆。
在工作結束後,回家的路上的地鐵站邊,這個空間可以為人們提供一個放鬆十分鍾或者半小時的場所,這裏成為了在工作和生活之外的屬於自己的第三個場所。
∇ 方案平麵圖
項目信息
項目名稱:“大屋頂SPACE&銀鹽”集合空間
項目類型:集合商店室內設計
項目位置:中國浙江省杭州市餘杭區
建築麵積:860平米
完成時間:2023年12月
設計公司:B.L.U.E.建築設計事務所
設計團隊:青山周平、藤井洋子、曹宇、郭思琦、謝舒婕、楊辰、陳心恬(實習生)



































