既承歡膝下 亦承歡自己
空間美學精神源於日常行為關聯的物件體驗
轉換為一種情感的輸出······
在快節奏的城市生活中,我們常感步履匆匆,時間化為無形之手,不斷催促著我們向外求索、追逐,無奈地與自然漸行漸遠。可我們從未忘卻,內心對它的向往,由此,本案設計主題——“極簡自然”便應運而生。
01 自然之境
從敘事性開始
將建築定義為一種敘事方式,以空間作為傳遞情感的媒介,借用自然實景與隱喻的交互,探尋空間性敘事的可能。
∇ 推門入戶,撞見光之來處,由暗至明,恰如人生路,褪去一身微塵,回歸純粹本真。
原始的肌理質感透過藝術塗料,在光線的襯托下更顯致璞致真,隱形收納櫃靜默無言,不過分彰顯自身,淡化了空間的功能性,將一切讓渡於敘事。
在人間 煙火常伴
越過門廳,餐廚區躍然眼前,西廚島台橫亙其中,與中空留白,在縱橫之間,將空間重新分割,呼應自然之境中的豁達之態。煙火之氣在此彌漫,滿足業主家人常伴的歲月靜好。
從複古馬紮燈到素色地麵岩板的表現形式,回溯空間敘事的探索,借助時間在空間中的回逆,擺脫設計的“一麵性”與“平均臉”。
02 自然隱喻
空間創造
室內詫寂風色調,是室外自然元素的一種強隱喻,設計師從“被肢解”的做舊空間塊中接觸自然,極盡展現空間敘事的多重可能性。
閑庭漫步,回廊之聲,藝動心弦,每個漫不經心的一瞥,自上而下,目光所及,皆是景致,晶瑩剔透的玻璃圍欄與長廊色調相互搭配,為空間塑造一份輕盈感,身處其中,仿佛隨時準備開啟悠然假期。
∇ 躍動光線,穿梭如風,風隨心起,光隨人行,公私相隔,景外有景,別有洞天
∇ 小景安臥一隅,隨光照變化,意趣各不相同
順著燈光指引,逐級而下,由獨立門廳、二樓小挑台和中空互動場景,構建的多重空間,隨著視角的變化,在眼前一幕幕揭開,恰如包羅萬象的自然之景,化形與意為空間之魂與魄。
修舊如舊 還原結構
所謂“修舊如舊”並非技藝的偷懶,而是在充分尊重原有建築結構的基礎上,構築最適合它的模樣。為滿足四口之家的多樣化需求,設計師大刀闊斧,將橫隔兩套別墅的牆麵拆除,使兩個客廳並構為一體,獲得最大化的公域空間,遵循它的下沉式結構,以地麵高低錯落,構空間自然之序。
∇ 躺椅|Cassina Wink
把時光躺成一抹“紅與黑”,此中一切由你品味
偌大的落地窗引導視線,借助色調與場景聯動創設自然空間,複古陳設靜臥其中,於此處聆聽,一場跨越時空的對話仿佛正在發生。
素色流淌其中,如展開的畫布,完美承托每一處細節,這份以內斂與克製打造的空間質感,如水彩繪本般自然。
眼為心靈之窗,窗為一家之眼,近可觀賞室外之景,退可私享靜謐時光,進退之間一切由心。
∇ 長凳|Living Divani.Track
觥籌交錯 以心會友
生活不止家人相伴的日常,設宴會客也必不可少,因此,設計師將用餐區納入公域,使客廳、餐區一體化,無論圍合而坐,推杯換盞,或是輕陷沙發,與客暢談,隨心隨性,行動由你。
∇ 餐椅|Cassnia . Cab412,餐桌|Poliform . Concorde
03 衍生空間
敘事可能
每個場景,都是一段戲劇化的敘事,而每個場景之外的場景,又能衍生出新的敘事以及可能性的空間。
∇ 沙發|living Divani . Bubble Rock
繞過電視牆,藏匿於此的起居廳,以碎破整,將空間敘事與生活情趣完美融合。設計師遵從自然主義,對空間進行解構與重構,試圖在自然之外尋找“自然”,在空間之內尋找“空間”,於局促中衍生鬆弛,於闊達處衍生私密。
從布藝沙發到細節裝飾,在這一方小天地中,柔軟了親子相伴的時光。
∇ 書桌|Cassina.Cavalletto,書椅|Tradition.Catch
探尋自然本質,成就極致設計
起承轉合 縱橫交錯
作為家的“橋梁”,樓梯縱橫交錯,自成一景,鏈接家的每一個故事,見證它的發生,每日每夜,每時每刻。
設計師遵循“不打擾”原則,將電梯按鈕沿牆嵌入,並采用暗色調,與背景相融,在美觀與實用之間,找到微妙平衡。
動靜皆相宜
設計師延建築結構,按不同功能創建彎曲路徑,使不同區域自成一體,各自完備,相互獨立,同時利用行動時區域之間遮擋關係的變化,勾勒出“景隨人動”的自然流動感。
在脫離忙碌的時刻,追逐嵌於樓梯的“陽光”,逐級而下,撞入一處小酌之地,它位於負一層,雖獨立於其他區域,但也自有一片天地,不至於過分僻靜,無論是獨自品茗擁抱陽光,還是與客小酌欣賞夜晚,輾轉騰挪間,是動靜皆宜的舒適感。
靜享私域 歲月低語
在臥室被喚醒的日常,是充分擁抱自我和家人之後的滿足,當你手捧咖啡,撞見陽光正透過一扇扇窗戶,鋪向室內,關於家的故事,就此展開:晨曦透過純白窗簾,給臥室打上一層柔光,從柔軟的床鋪蔓延至整個空間,品味著這份靜謐與舒適,心境透亮而明媚。
∇ 邊幾|班蘭.無雙
∇ 床|班蘭.臥雲
為使居住體驗最優化,設計師為所有房間配備完整設施,靜則獨享時光,動 也互不打擾。
雖然設計師以自然主義的敘事性定義了室內空間,但空間與自然的交融共生卻無法被定義,隨著時空遷移,二者所衍生出來的可能性也無法計量,於是,可能性的空間始終在不斷自然生長。
∇ 負一層平麵圖
∇ 一層平麵圖
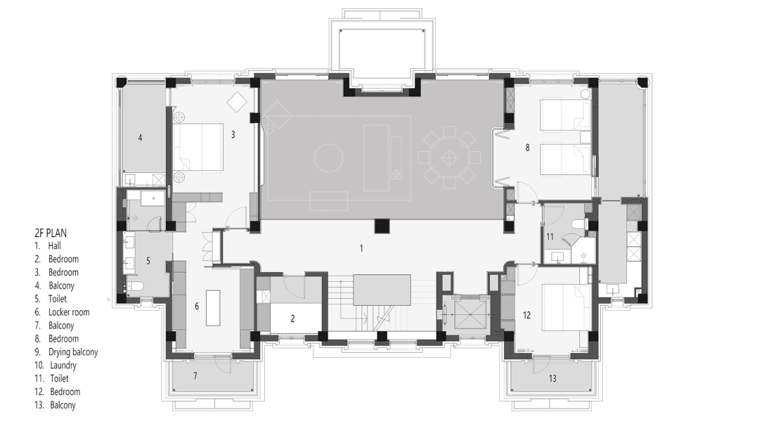
∇ 二層平麵圖
∇ 三層平麵圖
項目信息
項目名稱|自然之衍
項目地址|中國 浙江 台州
建築麵積|900m²
設計主持|薑萬靜
設計公司|GTTO竟向建築裝飾
設計參與|梁世傑、蔡麗君、林梨梨、潘琪靖、羅儒金、揚健、蔡藝鳴
軟裝陳設|今世家國際家居
全屋定製|優奇.盧賽世家
智能照明|柏意.歐頓
塗裝係統|藝空間牆體藝術漆
設計時間|2022.03
竣工時間|2023.12
施工單位|瑞合裝飾
內容策劃|橙設傳媒
項目攝影|張家寧
主要材料|榆木擦深灰色、顆粒質感烤漆、布藝硬包、水泥灰岩板、橡木地板、砂麵藝術塗料
















































