Legend Mansion 別墅設計為地上3層,半地下1層,從地基到屋頂總建築高度約16m;主要功能區域為:公共客廳、酒吧、娛樂區、影音室、主大堂、客廳、廚房、臥室結合花園。主要材料:本項目為花園別墅,所以項目所用材料均為當地常見材料。采用鋼筋混凝土結構體係,磚石牆體,環保免燒磚牆體。房屋裝修采用油漆、瓷磚、水磨石、花崗岩。
Legend Mansion 是一座附設在景觀綠化花園中的別墅;總體規劃色彩繽紛的花園與遊泳池、遊樂區以及高低起伏的地形相結合,打造出和諧的綠色建築。花園還融入到每個室內空間和立麵上的每個樓層,將所有人類活動與自然緊密而友好地聯係在一起。每個花園也像一層防塵麵罩和一層隔音層。花園還有助於減少太陽輻射,使空間涼爽,並保護建築結構。
∇設計概念
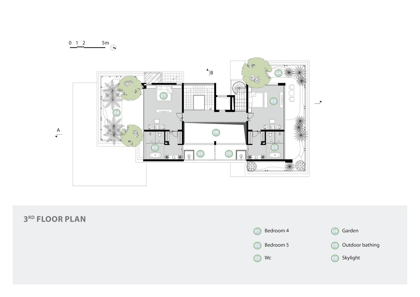
∇ 平麵圖
∇ 分析圖
∇ 立麵圖
版權聲明:本站所有文章除投稿授權發布外,其他文字內容均為原創,享有著作權保護,未經許可不得以任何形式進行轉載(包括且不限於:媒體、網站、公眾號等)。所有項目照片/設計圖形版權歸原作者所有。本站部分內容源自網絡公開資源或用戶分享,如若侵犯了原作者的合法權益,可聯係我們進行處理。






































