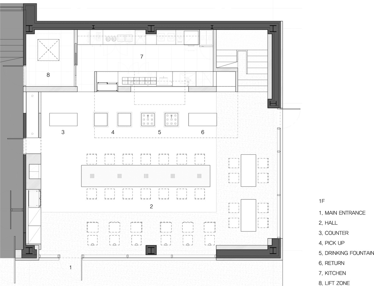
咖啡廳空間橫跨一樓和二樓,毗鄰智能農場。SUBTEXT希望這個空間感覺像是智能農場的延伸,而不是一個單獨的實體。SUBTEXT不僅考慮了形式,還考慮了反映智能農場係統性、規則性和衛生性的飾麵,讓這些特征無縫地融入空間的每個角落。進入一樓,遇到的天花板結構讓人想起智能農場的一部分。水是作物生長的重要媒介,是SUBTEXT的靈感來源。SUBTEXT設計了象征水、光和環境的天花板結構,確保其流動延伸到與顧客互動的飲水機,從而傳達其意義。
方形圖案從天花板開始,到達飲水機,並沿著牆麵繼續延伸,形成聚焦於農作物的小窗戶。這些圖案讓人想起農作物的生長模塊,與整個空間的中央桌子和家具細節相呼應,營造出一種有凝聚力的氛圍。照明的設計也注重功能而不是不必要的裝飾,沿著天花板結構以簡單的形式布置。在智能農場裏,人們可以實時看到農作物的生長情況,穿著實驗服的研究人員將新鮮種植的農產品直接送到咖啡館。廚房設計為開放式空間,顧客可以觀察產品的清洗、切割、調味和配料的過程。
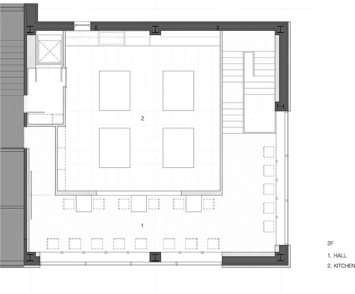
靠窗的座位麵向大窗戶,可以欣賞到外部景觀。SUBTEXT將室外地板材料延伸到內部,營造出與自然環境的聯係感。登上二樓,人們會發現一個通過電梯與一樓相連的空間,專門用於包裝新鮮收獲的農作物和沙拉。通過向客戶展示包裝和配送過程,該空間旨在向客戶灌輸係統和安全程序的觀念。SUBTEXT保持與一樓相同的天花板結構,以獲得連續感,並布置家具,以便在用餐的同時俯瞰戶外。此外,空間中還集成了一個將健康農作物直接運送到餐桌的係統,形成了提貨和產品展示區。
∇ 平麵圖
版權聲明:本站所有文章除投稿授權發布外,其他文字內容均為原創,享有著作權保護,未經許可不得以任何形式進行轉載(包括且不限於:媒體、網站、公眾號等)。所有項目照片/設計圖形版權歸原作者所有。本站部分內容源自網絡公開資源或用戶分享,如若侵犯了原作者的合法權益,可聯係我們進行處理。






























