穿過首爾龍山美軍基地前的小巷子,就來到了幽靜的華岩洞胡同,紅磚外牆像麵具一樣靜靜地隱藏著。紅磚外牆是日本殖民時代的遺跡,曆經時間考驗的木結構建築透過灰塵的黴味迎接我們。* Jalsan-gaok:日本強行占領朝鮮時,由日本人建造的具有日本風格的建築。
光線穿過場地堆疊的山牆屋頂和少數仍然矗立的木結構,Studio ELTM開始規劃一個空間,尊重它的年齡,但賦予它新的用途。一打開門,洞穴般的石頭質感從進入空間的那一刻起就令人難以抗拒,這是一個與幽靜的洞穴完全不同的密集過渡空間。
由過渡空間形成的石結構作為物體,同時象征著空間,包容和象征著石頭本身的物質性和存在的異質性和規模,充分發揮了物質性所能產生的力量。讓光線充分穿透的玻璃天窗、保留了窗戶功能的木結構、通過H型鋼完成後成為新結構的木頭,運用自然元素打造一個最接近自然的空間,捕捉並麵對流逝的時間,無論是在陽光明媚的時候,還是在黑暗降臨和寂靜降臨的時候。
為了保留現有山牆的曆史性,新屋頂的角度與現有屋頂的角度相同。新的飾麵與現有山牆的角度相同,並保留間接照明以營造柔和溫暖的氛圍。空間內的不同層次被視為結構的一部分,消除了任何差異感。設計團隊保留了庭院原有的位置,並以新的形式重新構想,在空間的中心創造了一個可以探索和欣賞建築的空間。
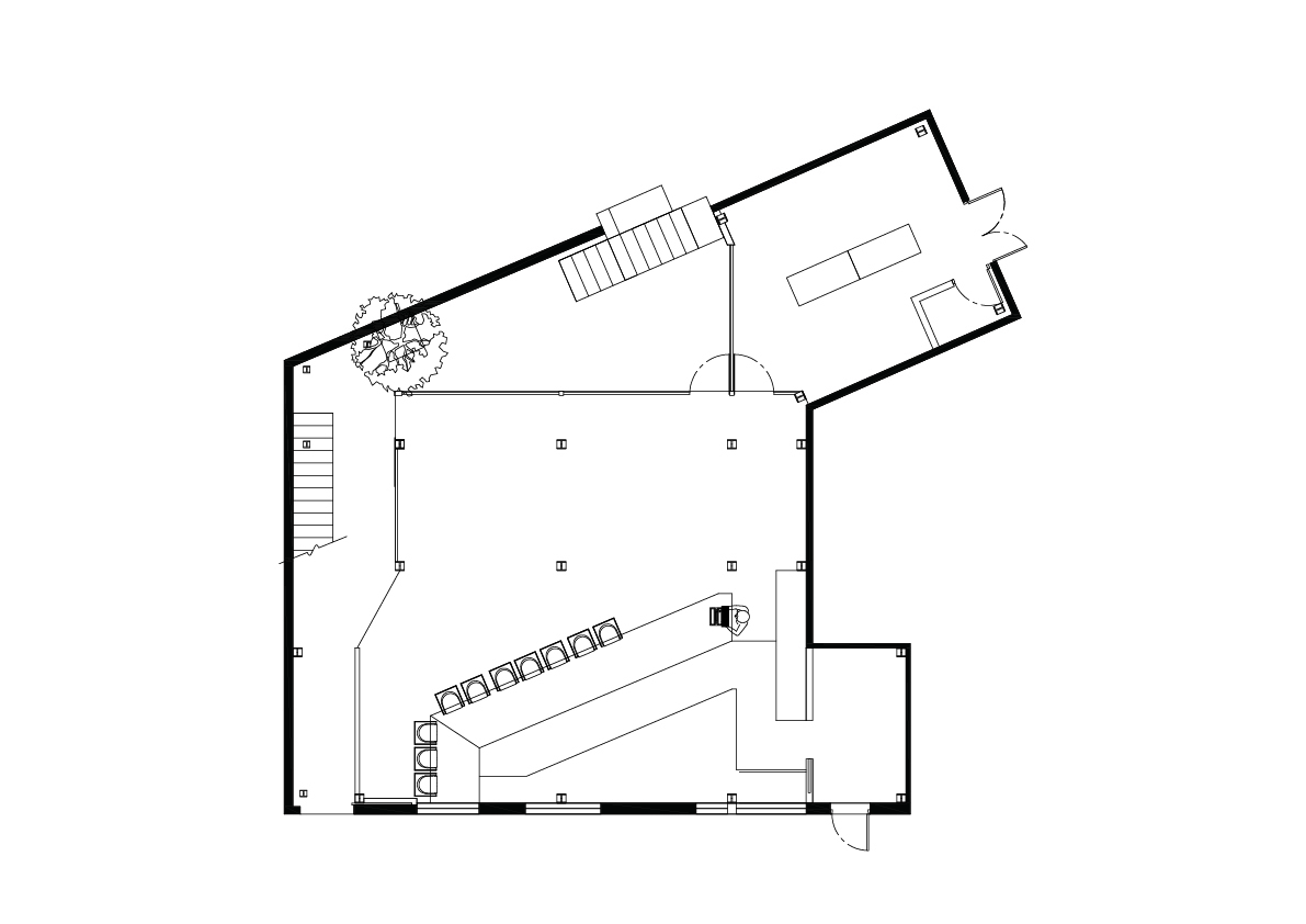
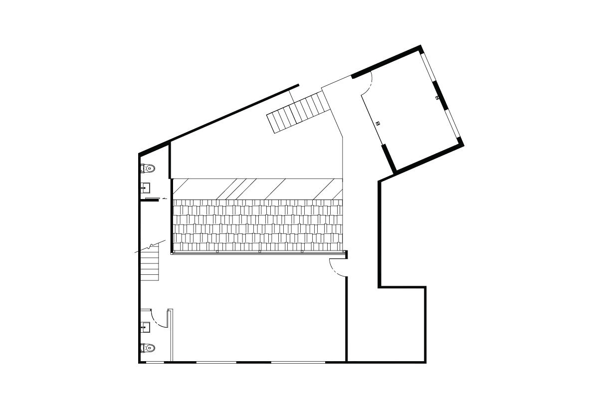
∇ 平麵圖
版權聲明:本站所有文章除投稿授權發布外,其他文字內容均為原創,享有著作權保護,未經許可不得以任何形式進行轉載(包括且不限於:媒體、網站、公眾號等)。所有項目照片/設計圖形版權歸原作者所有。本站部分內容源自網絡公開資源或用戶分享,如若侵犯了原作者的合法權益,可聯係我們進行處理。























