2021年誕生的NOA HOTEL,以獨特的選址及極具張力的空間設計,於城市中心連結潮流文化社群,結合精品咖啡和精釀啤酒的專業呈現,打造集聚新派生活方式和複合餐飲體驗的酒店綜合體。
酒店的建築外觀基於原有的工業廠房而改造,磚紅色的整體基調,以黑色鋁格柵橫向覆蓋,隱藏設備外機的同時為建築增加豐富的視覺層次。入口前區以啞灰暗黑色係低調入場,灰綠色工字鋼結合導視係統轉折延伸,引導空間動向。庭院地拚與景觀水池以四十五度斜向規劃,強調環境動感基因,也與室內空間動線連貫一體。
甲板空間呈現更為開敞的場域和暖調金屬元素,展現年輕精致的城市基底。設計以大麵積砂岩質感塗料砌築而成的牆體模擬巨石堆疊意向,複刻著城市建設之初因移山填海造陸而挖掘的采石礦場。縱橫交錯的金屬圓管猶如步步延伸向上的腳手架,隱喻這座城市日新月異的建設浪潮。
在營造大尺度與力量感的同時,於粗糲的混凝土柱縫隙中精心植入綠色苔蘚,以展現生命與自然的不可或缺性和平衡作用。用雲南老木頭設計而成的共享辦公長桌,在硬朗的工業格調下體現人文溫度。光亦是柔軟空間氛圍的重要筆觸,倒掛著的吊燈,猶如昔日來回忙碌著的運輸車,燈光傾瀉在桌麵上傳達的靜謐與舒緩,將老羅湖曾經的繁華場景悉數道來。
客房改造自廠房建築,具有3.8米的充足挑高。設計充分發揮這一優勢,對上下鋪和複式概念進行了升級——讓兩張疊放的雙床由一組木質台階銜接,木作框架與上下階梯營造空間愉悅氛圍。自由且獨立的床榻布置,可分享歡愉,可自在休憩,在有限的空間中嵌入舒適度共生模式。
客房牆麵延續礦山的設計概念,以凹凸結合不同色差的暖灰色,塑造統一而豐富的視覺感受。舒展的黃銅線條把壁燈、掛鉤、層板等細節功能結合一體,為灰色係空間渲染一抹暖色和構成趣味。
舊場被修繕,空間被激活,新世界的生機被煥發
種子在發芽,旅人在往來,不安分的群聚效應連鎖發生
城市的發展,因為有歲月的沉澱和創意的加入而更加的生機蓬勃
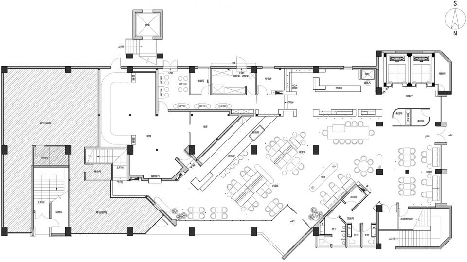
∇ 一層平麵圖
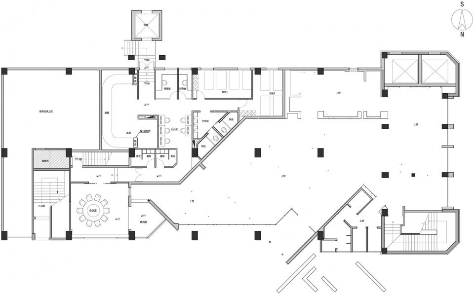
∇ 一層半平麵圖
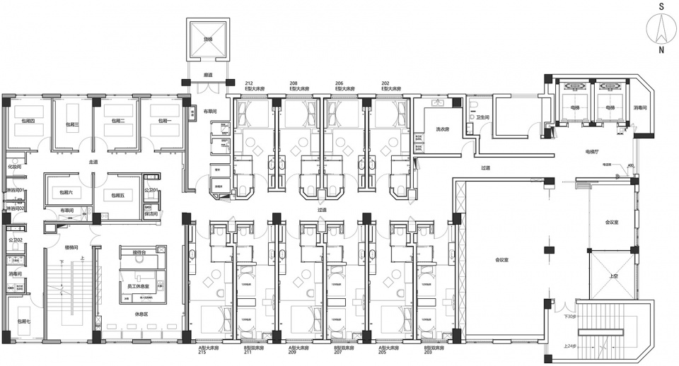
∇ 二層平麵圖
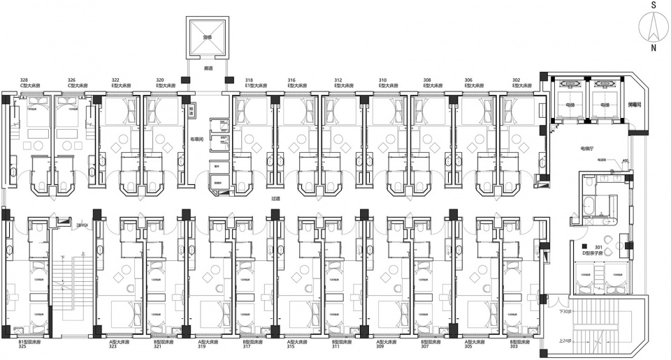
∇ 五層平麵圖
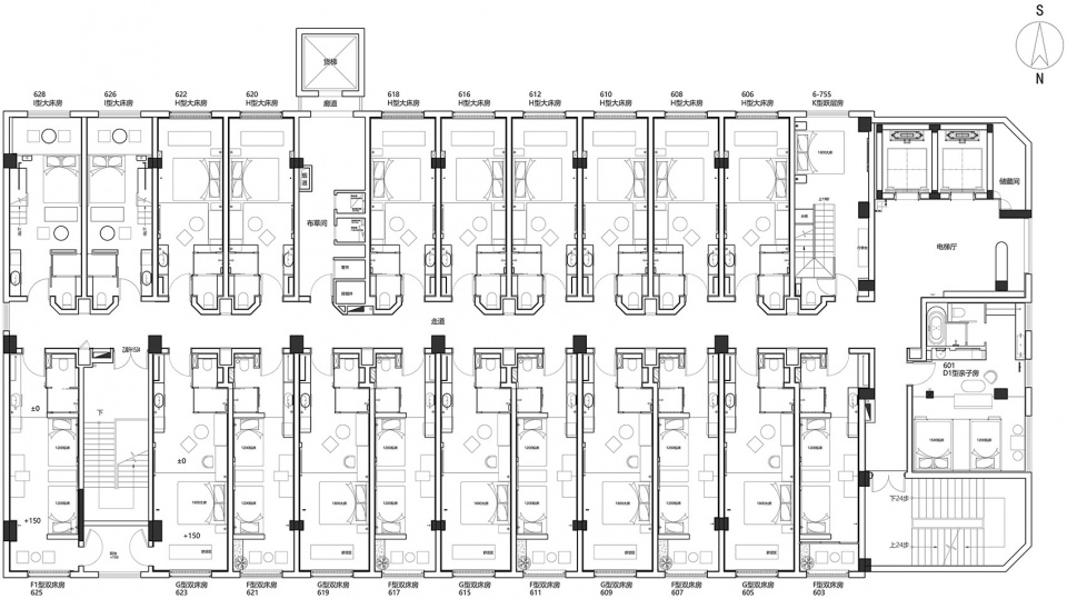
∇ 六層平麵圖
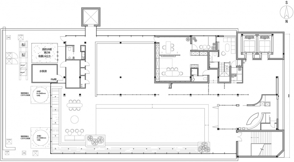
∇ 露台
項目信息
項目名稱:NOA Hotel 深圳
項目地點:中國 深圳 羅湖區 寶崗路5號
項目麵積:5600 m2
設計機構:寬品設計顧問
主持設計:李瀧
陳設設計:鄭鴻
設計團隊:孫曉楠、邱傑曉、李華欣、盧澤泳、張慧傑、李蘭君
家具定製:縵合家具 林偉民
竣工時間:2022.10
項目攝影:許曉東



































































