對望「巨輪」,藝術的味道複合空間
Looking at the “Giant Ship”, “Taste of Art” Complex Space
「藝術的味道」位於淮海中路與餘慶路交叉口,徐彙衡複風貌區內,為一處曆史建築的沿街底商,與宋慶齡故居相鄰,上海百年曆史建築武康大樓僅一路之隔,所在的位置有武康路、興國路、淮海路、天平路、餘慶路,五條道路交彙。
“Taste of Art” Space is located at the intersection of Middle Huaihai Road and Yuqing Road, within the Hengshan Road-Fuxing Road Historical and Cultural Landscape Area. It is a street-level store in a historical building, adjacent to the former residence of Soong Ching Ling, and only one way away from the Wukang Building, a century-old historical building in Shanghai. It is located at the intersection of Wukang Road, Xingguo Road, Huaihai Road, Tianping Road and Yuqing Road.
空間對麵的武康大樓,由鄔達克於1924年設計,這座30°斜角的法式外廊式建築形似船艦,總建築麵積9275平方米,代表了海派文化兼容並蓄的一麵,作為上海精細化更新中的一環,2019年經曆了外立麵及基礎設施更新,其所在的街道周邊也在近年來實現整體界麵提升。擁有獨特的城市位置,武康大樓周邊入駐了各類生活空間,文化地標等等,如被簡雅各布斯稱之為“街道芭蕾”的景象,而「藝術的味道」躋身其中。
The Wukang Building across the space was designed by Laszlo.Hudec in 1924. Shaped like a ship, this 30° angled French-style corridor building with a total floor area of 9,275 square meters represents the inclusive side of Shanghai culture. As a part of Shanghai’s fine-tuned renewal, it underwent facade and infrastructure renewal in 2019, and its street surroundings have also seen overall interface enhancements in recent years. With a unique urban location, the Wukang Building is surrounded by various living Spaces, cultural landmarks, etc., such as the scene called “Street Ballet” by Jane Jacobs, and the “Taste of Art” among them.
01 鏈接時間與空間
Linking Time and Space
「藝術的味道」通過建築外部連廊與沿街店鋪聯通,往來的人群由連廊穿行,或在此停留,觀賞對麵的武康大樓,空間恰好將流動的人群與建築一同納入取景框之中。
The “Taste of Art” Space is connected to the stores along the street through the exterior corridor of the building, where people walk through or stop to view the Wukang Building on the opposite side of the street. The Space fits the moving crowd into the frame of the view along with the building.
內部設計中,設計師意圖創造一處極具想象力的空間,成為藝術愛好者們的一處自留地,讓藝術交流能夠自然而然的發生。內容的趣味性讓原本均質的時間長度發生“褶皺”變化,提升了到訪者體驗時間的質感。
In the interior design, the designers intended to create an imaginative space that would serve as a place for art lovers, where artistic exchanges could take place naturally. The interesting nature of the content creates a “fold” in the otherwise homogenous length of time and enhances the visitor’s experience of the time.
廊下的入口位置並不突出,設計師選擇采用未來與現代,原始與自然的反差元素融入空間設計語言,塑造一處令人群向往“探究”的地方。入口采用W型現代折疊門,一改平鋪直敘的開門方式,玻璃門上采用塗鴉字樣,營造意想不到的視覺效果,凸顯入口形式。
The entrance under the corridor is not prominent. The designer chooses to use the contrast between future and modern, primitive and natural elements into the spatial design language, to create a place where people want to “explore”. The entrance adopts W-shaped modern folding door, changing the traditional way of opening the door, and graffiti characters are used on the glass door to create an unexpected visual effect and highlight the entrance form.
02 空間吸引力法則
Laws of Spatial Attraction
空間有它的吸引力法則,針對品牌麵向年輕群體的定位,設計上大膽突破做傳統藝術空間的做法,既要有曆史記憶的厚重感,又有前衛科幻的未來感,融合了潮流美學和未來文明的反差。
Space has its own laws of attraction. In response to the brand’s positioning for young groups, the design boldly breaks through the practice of doing traditional art space. The design should have both a heavy sense of historical memory and an avant-garde sci-fi sense of the future, blending the contrast between trendy aesthetics and future civilization.
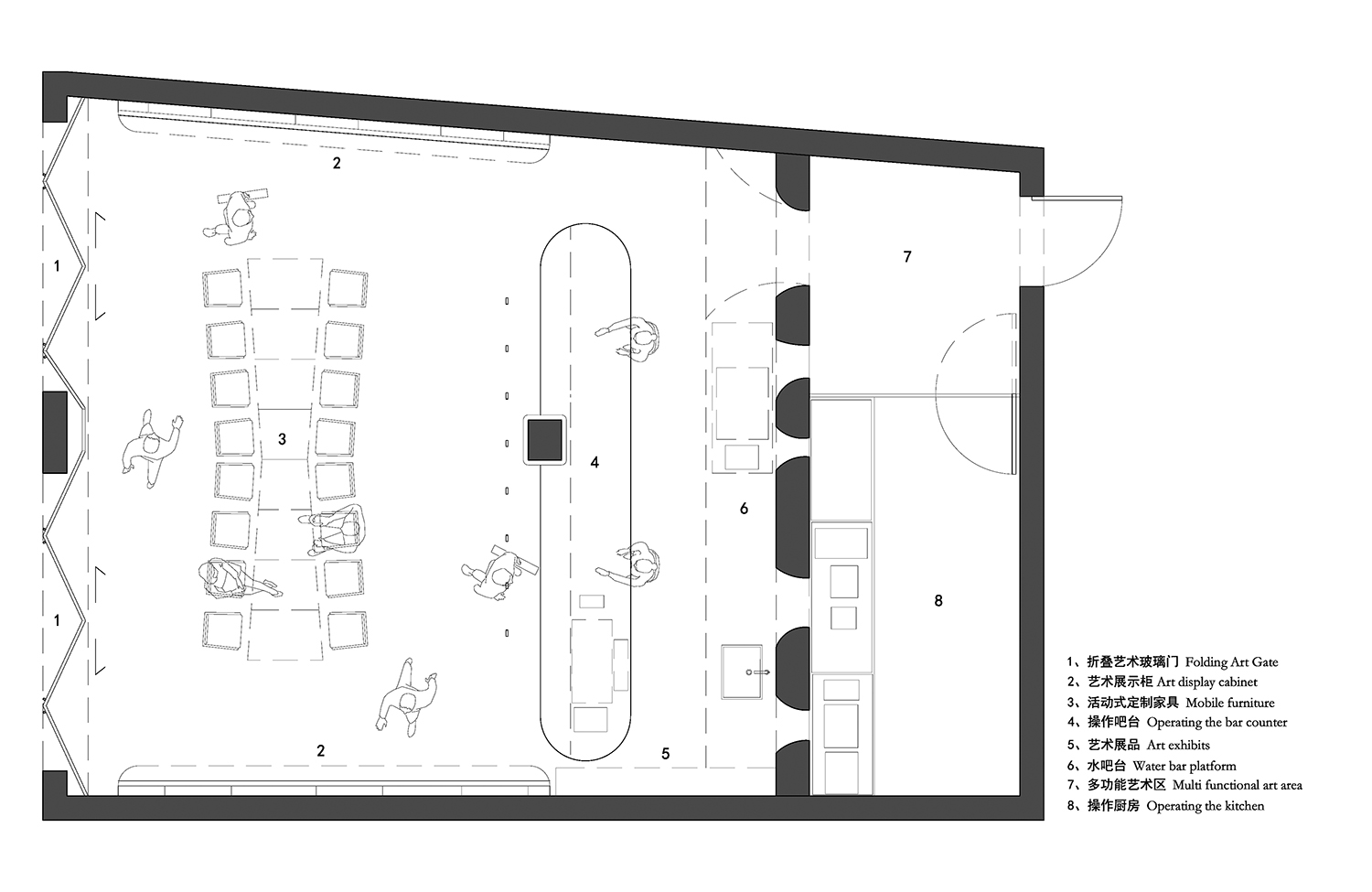
「藝術的味道」原本集約空間需要容納藝術展示,茶吧,活動等功能,設計師試圖在藝術和潮流之間找到愉快的平衡,褶皺感的屋頂采用倒模處理呈現大小,半徑不一的內凹形態,吧台牆麵開洞,作為與備餐區的互通界麵,整體利用燈光的加持,仿佛置身於宇宙。
The Taste of Art was originally an intensive space that needed to accommodate art displays, a tea bar, events and other functions, and the designer tried to find a pleasant balance between art and trends. The folded roof is treated with inverted molding to present concave forms of varying sizes and radii, and a hole is made in the wall of the bar as an interface with the dining area, and the overall use of lighting makes it seem as if you are in the universe.
屋頂處理難度大且耗時長,頂麵結構利用grg開模,數字扭曲生成模型,在現場組裝設計完成,確保預設中的精確度的同時,能夠靈活高效的應對現場環境的偏差。吧台造型借鑒船體,呼應原名諾曼底公寓的武康大樓,通體包裹亞克力燈箱,原本空間之中的結構柱被作為燈柱包裹,發出漸變光線。
The roof is difficult and time-consuming to handle. The roof structure is modeled using grg, digitally distorted to generate the model, and assembled and designed on-site to ensure the accuracy in the preset design while being able to flexibly and efficiently cope with the deviations of the on-site environment. The bar styling borrows from the hull of a ship, echoing the original name of the Wukang Building of the Normandy Apartments, and the whole body is wrapped with acrylic light boxes, and the structural columns that were originally in the space are wrapped as light columns, emitting gradient light.
03 組合式藝術空間
Combined Art Space
正如空間所需的複合功能,內部陳設家具與室內設計一體化開展,滿足收納展陳,不定期舉行的藝術交流活動,及日常經營等使用,桌子可分可合,桌麵形狀略有差異,而拚合的一起則構成一張完整的幾何長桌,折線型單人椅外觀隱藏支撐架,實際上,內部是由鋼板焊接組成,再由板材封麵完成,椅子的支撐力被包裹在柔和的板材下。
As the space requires complex functions, the interior furnishings are integrated with the interior design to meet the needs of storage exhibitions, occasional art exchange activities, and daily business operations. The table can be separated or combined; the table tops are slightly different in shape, while together they form a complete geometric long table. The Folding Single Chair hides the support frame, but in fact, the interior is made up of welded steel plates, which are then finished with a sheet cover, where the support of the chair is wrapped under a flexible sheet.
兩邊展櫃分別設置5麵顯示屏,播放藝術品電子影像,櫃體采用多元化結構抽出及合並,提供空間更多收納及展出方式,同時暗藏玄機,輕按櫃子可展開櫃板,瞬間成為單人椅,並設計能夠抽出的,方便放置茶飲的托架。盡管到訪者是因為藝術而聚攏,卻可能因新奇有趣的事物發生更多的交流契機,這正是設計者對於品牌商業和情感價值的疊加考量。
There are 5 displays on each side of the showcase to show electronic images of the artwork. The cabinet adopts a diversified structure to draw out and combine, providing space for more storage and display methods. At the same time it has hidden mystery. When you gently press the cabinet, it can unfold the cabinet board and instantly become a single chair, and be designed with a bracket to pull out and easy to place the tea drink. Although the visitors are gathered because of the art, they may have more communication opportunities because of the new and interesting things, which is precisely the designer’s consideration of the brand’s superimposed commercial and emotional value.
04 設計力的長尾效應
The Long Tail Effect of Design Power
心理學家葛妮瑞特·舍澤爾曾經說過:“溝通的意義不僅在於傳遞信息,更重要的是建立情感紐帶。”
Psychologist Garnet Scherzer once said, “The point of communication is not only to convey information, but more importantly to create an emotional bond.”
空間的內核卻不僅限於表達想象力,「藝術的味道」集結一批蜚聲內外的知名藝術家,及當代嶄露頭角的青年藝術家群體,同時開放的迎接形形色色的訪客,讓空間與城市,藝術與大眾得以深層交互。
The kernel of space, however, is not limited to the expression of imagination. Taste of Art” gathers a group of renowned artists, both inside and outside the country, as well as a group of young contemporary artists. At the same time, it is open to welcome all kinds of visitors, so that the space and the city, the art and the public can interact with each other on a deeper level.
如今,藝術不再是社會的背景色,而是更直接的去影響城市更新、生活方式以及商業語境,澱川設計打造「藝術的味道」,與城市發展的呼吸同頻,並期待發生長尾效應,當藝術不再被束之高閣,與城市語境互補,生命力才得以充分釋放。
Nowadays, art is no longer the background color of society, but more directly affects urban renewal, lifestyle and business contexts. DCDSAA Design creates “Taste of Art” , which is in sync with the breath of urban development and expects a long-tail effect to occur. When art is no longer confined to the shelf and complements the urban context, its vitality can be fully released.
盡管在流量主導時代,圖像帶來直觀的視覺衝擊以及可複製的運作模式,但拉長時間的維度,在對舊建築或者場地的城市更新迭代過程中,視覺化傳播終究會被場景化的深層體驗所替代。體驗的內核是文化,而藝術作為文化的枝幹,此藝術文化空間與城的市未來會產生怎樣的鏈接,「藝術的味道」正以空間場景體驗去回應城市課題。
Although in the traffic-dominated era, images bring intuitive visual impact as well as replicable modes of operation, however, in the dimension of prolonged time, in the iterative process of urban renewal of old buildings or sites, visual communication will eventually be replaced by scenic deep experiences. The core of experience is culture, and art is the branch of culture. What kind of link will be created between this art and culture space and the city in the future? “Taste of Art” is responding to urban issues with spatial scene experiences.
∇ 項目區位圖
∇ 平麵圖
∇ 頂部設計圖
∇ 立麵圖
項目信息
項目名稱:藝術的味道上海淮海中路概念店
項目地點:中國·上海·淮海中路1863號
項目業主:藝術的味道Art Taste
設計範圍:建築改造、室內設計、家具設計
建築麵積:88平方米
設計公司:DCDSAA澱川建築事務所
公司網站:www.dcdstudio.cn
主持建築師:王皓
設計團隊:袁鄭亮、唐超、徐大明
設計時間:2023年10月
建成時間:2024年3月
施工單位:上海澱川建築設計有限公司
照明設計:dcdsaa lighting
主要材料:鋼板、木飾麵、玻璃、金屬、肌理漆
項目攝影:吳清山
內容策劃:意料文化

































