感官在《漢典》中被解釋為感受外界事物刺激的感覺器官。亞裏士多德將人體的感官分為五種,即觸覺、嗅覺、味覺、聽覺和視覺。在《設計中的設計》一書中,日本著名建築設計師原研哉將感官體驗理論及其應用進行了相應的闡釋,並提出“了解人的感覺及感受形式,然後利用設計讓受眾得到並了解訊息,是二十一世紀設計發展的新方向”。
In the Handian, it is interpreted as a sensory organ that feels the stimulation of external things. Aristotle divided the body’s senses into five: touch, smell, taste, hearing and sight.In the book “Design in Design”, the famous Japanese architect Kenya Hara explained the theory of sensory experience and its application accordingly, and proposed that “understanding people’s feelings and feeling forms, and then using design to let the audience get and understand the information, is a new direction of design development in the 21st century”.
∇ 項目概覽,Project overview ©徐英達
湖州歐思蘭企業展示空間位於中國浙江省湖州市吳興區—湖州歐思蘭化妝品有限公司。該項目突破傳統的以視覺和和聽覺為中心的設計手段,轉向了以多感官協調共同發展的體驗式設計。從多方位、多角度地去刺激人的感官係統,給人帶來身臨其境的感官體驗,更精準地向人詮釋和傳遞信息以及情感。將該設計策略結合場地現狀,並運用科技和一定的美學藝術,使企業形象、文化和產品得到一定的影響力傳播。
Huzhou Ousilan enterprise exhibition space is located in Wuxing District, Huzhou City, Zhejiang Province, China – Huzhou Ousilan Cosmetics Co., LTD. The project breaks through the traditional visual and auditory design methods, and turns to the multi-sensory coordination and common development of experiential design. To stimulate people’s sensory system from multiple directions and angles, bring people immersive sensory experience, and more accurately interpret and transmit information and emotions to people. The design strategy combined with the current situation of the site, and the use of technology and certain aesthetic arts, so that the corporate image, culture and products get a certain influence to spread.
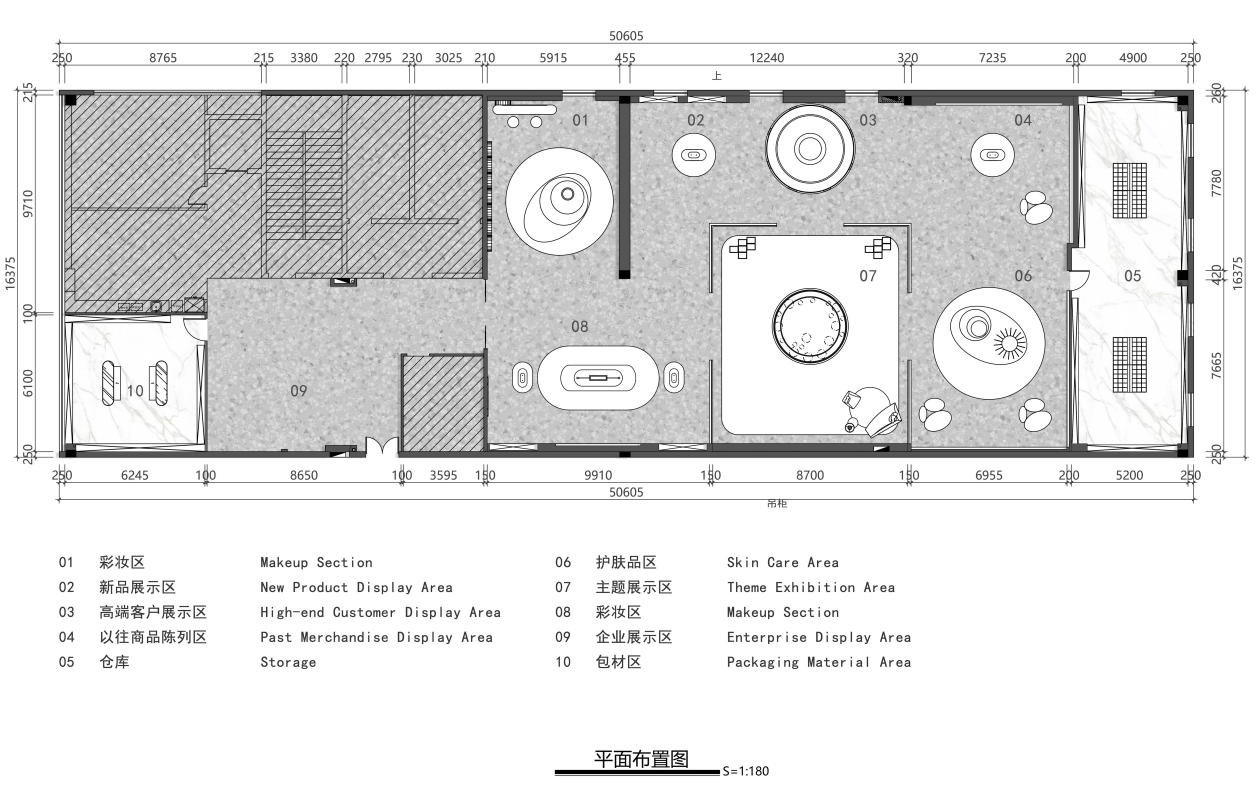
將整個展示空間按照四大部分功能進行切塊,分別為包材區、企業文化展示區、展廳以及倉庫。展示空間的整體方向圍繞感官體驗以及歐美元素的融入而展開,利用裝置造型、材質、商品陳列、智能數字化屏幕影像、背景音樂等,展示和傳遞著本季度業務向歐美國家拓展的信息。展廳依據感官的分類並結合所需陳列的商品價值、功能、研發、合作方、季度主題等劃分為七個功能區,分別為彩妝區、新品展示區、高端客戶展示區、以往商品陳列區、護膚品區以及主題展示區。展廳空間皆采用圓形或弧形的裝置,弱化了規矩且帶有棱角的長方形空間,並結合對角線的方式進行大小有序的排列布局。
The whole display space is segmented according to four major functions, namely the packaging material area, the corporate culture exhibition area, the exhibition hall and the warehouse. The overall direction of the exhibition space revolves around sensory experience and the integration of European and American elements, using installation modeling, materials, product displays, intelligent digital screen images, background music, etc., to display and convey the information of business expansion to Europe and America in this quarter. The exhibition hall is divided into seven functional areas according to sensory classification and combined with the value, function, research and development, partners and quarterly themes of the products required to be displayed, which are respectively color makeup area, new products exhibition area, high-end customer exhibition area, past products exhibition area, skin care area and theme exhibition area. The exhibition space adopts circular or curved devices, which weakens the regular rectangular space with edges and corners, and combines with the diagonal way to arrange and layout the size and order.
∇ 平麵布局及人流動線,Floor plan and people flow line©平介設計
對於空間中的人流動線,本次設計注重以人流動線與空間之間相互作用的一種秩序感,以及穿插著自由的動線類型,避免了人群堆積的問題又能使參觀者發揮自我意識與展品進行互動,更好的挖掘出空間中潛在意思。在整體空間的流線設計上則采用單一的串聯式布局,按照線性順序組合排列且非常明晰,簡化不必要的幹擾元素,從文化宣傳—材質—產品的一種模式,使參觀者的遊覽路線將展示與體驗交叉進行,並隨著遊覽路線的一步步推進和空間呈現內容的變化,除視覺和體驗以外的其它感官也得到逐漸增加,參觀者在展示空間內的情緒也逐漸發生變化。此外,在感官體驗下的展示空間設計實踐中,展廳則作為展示空間的重要節點,其客源數量相比於其它功能區域也較為聚集。
As for the human flow line in the space, the design focuses on a sense of order in the interaction between the human flow line and the space, as well as the type of free moving line interspersed, avoiding the problem of crowd accumulation and enabling visitors to exert self-awareness and interact with the exhibits, so as to better explore the potential meaning in the space. In the streamline design of the overall space, a single serial layout is adopted, which is arranged in a linear order and is very clear, simplifying unnecessary interfering elements. From a mode of cultural publicity – material – product, visitors’ tour route will cross the display and experience, and with the step by step advancement of the tour route and the change of the content of the space presentation, In addition to vision and experience, other senses have gradually increased, and the emotions of visitors in the exhibition space have gradually changed. In addition, in the display space design practice under sensory experience, the exhibition hall is an important node of the display space, and the number of visitors is more concentrated compared with other functional areas.
在展廳空間設計上圍繞本季度業務向歐美國家拓展的信息以及以芭比元素為主題進行展開,以當代的手法進行演繹來彰顯具有品牌特性的企業展示空間。將觀賞、交互、產品體驗加入到展廳空間中,並使用不同的材料進行疊加,形成截然不同的質感來尋求材料性上的對比。高貴的金色、端莊的白色、嫵媚的粉色,以及時尚界經典的黑色,無不逐一的散發著女性的魅力。
In the exhibition hall space design, the information about the expansion of business to Europe and the United States in this quarter and the Barbie element as the theme are carried out, and the contemporary method is interpreted to highlight the enterprise display space with brand characteristics. Viewing, interaction, and product experience are added to the exhibition space, and different materials are superimposed to form completely different textures to seek for material contrast. Noble gold, dignified white, charming pink, and the classic black of the fashion world, all exude the charm of women.
∇ 展廳空間,Exhibition space ©徐英達
通過人造光和自然光的折射使參觀者的視覺係統開始運作,並結合空間中的點、線、麵、色彩等這些基礎要素的組合,對空間形成一個立體意識。
Through the refraction of artificial light and natural light, the visitors’ visual system begins to operate, and the combination of points, lines, surfaces, colors and other basic elements in the space forms a three-dimensional consciousness of the space.
展廳空間中除了運用仿照西式風格的拱門形態牆體作為區域之間的隔斷外,還通過裝置將空間進行劃分,引導參觀者在空間中的動線走勢。
In addition to the use of Western-style arch shape wall as a partition between areas, the exhibition space is also divided through the installation to guide the movement of visitors in the space.
∇ 視覺體驗,Visual experience ©徐英達
彩妝區在造型元素上借鑒了歐洲女性的層疊式裙裝以及克利諾林裙撐的形式,並以大大小小的圓和橢圓的形式進行穿插、疊加進行體現,具有支撐作用的立柱采用LED燈鑲嵌的手法,並結合飄帶的形式層層旋轉並纏繞在立柱上的玻璃展示架上,以此來弱化支柱的力量感和存在感。
In terms of modeling elements, the makeup area draws on European women’s layered dresses and the form of Klinolin skirt, and is interspersed and superimposed in the form of large and small circles and ovals. The supporting columns are inlaid with LED lights, and the form of ribbons is rotated layer by layer and wrapped around the glass display rack on the columns. To weaken the strength and presence of the pillar.
新品展示區與以往商品陳列區的裝置,兩者以高端商品展示區的裝置為中軸線,對稱且造型一致鋪設開來。兩個區域的展示台采用重心向下的方式,與高端商品展示區呈重力向上的裝置區分開來,並且兩個區域使用圓形吊燈的方式以此達到三者視覺上的高度統一。以往商品陳列區的牆麵安裝大麵積的數字屏幕,其目的不僅是為了陳列出產品的更新迭代,還為了展現各大品牌的企業合作方,以此達到一種該品牌的業界認可度與知名度。
The device of the new product display area and the previous product display area take the device of the high-end product display area as the central axis, symmetrical and consistent in shape. The display stands in the two areas use a downward center of gravity, which is distinguished from the high-end product display area with a gravity upward device, and the two areas use a circular chandelier to achieve a high degree of visual unity of the three. In the past, a large area of digital screen was installed on the wall of the commodity display area, whose purpose was not only to display the update and iteration of the product, but also to show the enterprise partners of the major brands, so as to achieve the industry recognition and popularity of the brand.
高端商品展示區的裝置造型將猶如蝴蝶翩翩起舞形式的金屬吊燈和星空頂,以禮盒的形式喻義將一切美好和浪漫包裹其中。
The installation shape of the high-end commodity exhibition area will be like the metal chandelier and the starry roof in the form of butterfly dancing, which will wrap all the beauty and romance in the form of a gift box.
護膚品區為了體現出產品的質量,以藍色作為背景色代表其成分的天然、純淨。運用大麵積的牆麵數字化屏幕,呈L型鋪設開來。裝置造型采用樹的結構,將製作成弧形的彩色亞克力呈順時針的方向依次穿插在白色亞克力發光柱上,猶如向上伸展的樹枝,並搭配條形花紋地毯,猶如樹根一樣向四周蔓延的生命力。淺金色不鏽鋼材質的展台與亞克力材料的對比,虛與實的結合,模糊兩者之間的界限,通過數字化屏幕內容的色彩變化,其裝置在反射與折射的多重影響下創造出不同的光感變化。
In order to reflect the quality of the products, the skin care area uses blue as the background color to represent the natural and pure ingredients. Using a large area of wall digital screen, laid out in an L-shape. The design of the installation adopts the structure of a tree, and the curved colored acrylic is interspersed on the white acrylic luminous column in a clockwise direction, just like the branches extending upward, and the strip pattern carpet is matched with the vitality spreading around like the roots. The contrast between the light gold stainless steel booth and the acrylic material, the combination of virtual and real, blurring the boundary between the two, through the color change of the digital screen content, its installation creates different light changes under the multiple influence of reflection.
主題展示區的裝置造型采用芭比公主的夢幻元素,將化妝品製作成超大的藝術裝置,也是在很多展覽中都會采用的吸人眼球和打造空間中心點的軟裝搭配手法。
The installation shape of the theme exhibition area uses the dream elements of Barbie princess, and makes cosmetics into a large art installation, which is also a soft outfit collocation method used in many exhibitions to attract people’s attention and create the center point of space.
在展示空間中,包材區內部陳列著更新迭代的產品及包裝。企業文化展示區梳理著自公司成立以來到現如今的發展脈絡及成就等信息映入參觀者的眼簾。
In the exhibition space, the packaging area displays updated and updated products and packaging. The exhibition area of corporate culture presents visitors with information about the development and achievements of the company from its establishment to the present.
聲音能夠創造溝通與參與,並具有吸引參觀者注意力的效果,通過聽覺的感受可以激發參觀者的情緒和腦部的思考,從而使其得到豐富感受的層次。在空間中,聽覺主要基於工作人員對參觀者進行產品等設計理念的闡述,以及企業文化展示區和展廳區域的設備等。如:護膚品區域的裝置會隨著穿插在白色亞克力發光柱上的彩色亞克力片,光的流射呈縱向流射並伴隨著發出聲音。相對於傳統的以圖片、文字和產品向參觀者傳遞信息而言,此空間對於聽覺的設計,可以使參觀者的聽覺與視覺形成關聯,更好的增強空間立體感,並且起到舒緩心理的作用,使參觀者延長在展示空間中的停留時間,強化服務的效果。
Sound can create communication and participation, and has the effect of attracting the attention of visitors. Through the feeling of hearing, visitors can stimulate their emotions and brain thinking, so that they can get a rich level of feeling. In the space, the hearing is mainly based on the staff’s elaboration of product design concepts for visitors, as well as the equipment in the corporate culture exhibition area and exhibition hall area. For example, the device in the skin care area will follow the color acrylic sheet interspersed on the white acrylic luminous column, the light flow is longitudinal flow and accompanied by sound. Compared with the traditional images, words and products to convey information to visitors, the design of this space for hearing can make visitors’ hearing and vision form a correlation, better enhance the three-dimensional sense of space, and play a soothing psychological role, so that visitors can extend their stay in the exhibition space and strengthen the effect of service.
∇ 聽覺體驗,Auditory experience ©徐英達
觸覺是一種更直接的感受,它可以將參觀者融入周圍的空間中。參觀者通過與真實事物的接觸而產生反應,並對整體空間融入自我的主觀感受,從而對空間、產品以及設計等信息產生更深刻的理解。在包材區,參觀者可以對產品的包裝材質,感受到肌理的變化的同時也能感受到產品包裝設計的演變過程。
The sense of touch is a more immediate sensation that can integrate the visitor into the surrounding space. Visitors react through contact with real things, and integrate their subjective feelings into the overall space, resulting in a deeper understanding of space, product and design information. In the packaging area, visitors can feel the changes in the texture of the product packaging material and the evolution of the product packaging design.
在設計上通過對裝置造型進行改造,以及材質的對比使用,產品的體驗來達到參觀者的觸覺認知。如:設立在入口處的兩個彩妝區,一是圍繞產品展開,二是圍繞對產品的體驗,參觀者不僅可以在展廳內進行簡單的與產品接觸外,還可通過上妝的方式,感受產品的質感及效果等。此外,整個展示空間定位的是高奢風格,其在設計時所用到的材質大多為金屬質感,並使用亞克力、白色烤漆木飾麵等材料搭配作為點綴。參觀者可以通過對材料的接觸,而更容易的清晰捕捉到產品的定位。
In terms of design, visitors’ tactile cognition can be achieved by transforming the shape of the installation, comparing the use of materials and the product experience. For example, there are two makeup areas set up at the entrance, one is around the product, and the other is around the product experience. Visitors can not only simply contact with the product in the exhibition hall, but also feel the texture and effect of the product through the way of applying makeup. In addition, the entire exhibition space is positioned in a high luxury style, and the materials used in the design are mostly metallic texture, and acrylic, white lacquered wood finishes and other materials are used as embellishments. Visitors can more easily and clearly capture the positioning of the product through contact with the material.
∇ 觸覺體驗,Tactile experience ©徐英達
嗅覺和味覺與人的情感和記憶緊密相連。嗅覺反應會即時且直接地延伸至大腦,且氣味常常伴隨著多種感官聯覺作用。空間中本季度的展品包括彩妝以及護膚品都是圍繞自然、原生態等展開,打造成分安全的理念,參觀者在空間中可以通過聞產品本身的氣味來分辨添加的內容,以及開設相關區域進行原材料的體驗,從而使參觀者對產品製作過程產生聯想。
Smell and taste are closely linked to emotions and memories. The olfactory response extends immediately and directly to the brain, and odors are often associated with multiple sensory synesthesia. This quarter’s exhibits in the space, including makeup and skin care products, focus on nature and original ecology to create the concept of ingredient safety. Visitors can distinguish the added content by smelling the smell of the products themselves in the space, and set up relevant areas to experience the raw materials, so that visitors can associate with the production process of the products.
∇ 嗅覺和味覺體驗,Smell and taste experience ©徐英達
隨著技術、材料等不斷地更新,以及通過感官與感官之間的相互交織、相互增強,使得展示形式和空間設計能給予參觀者更加震撼的、真實的沉浸體驗,不僅可以提升參觀者和合作方的滿意度,也能有效地傳播其展示目的等信息,為其商業帶來新的發展機會。
With the continuous updating of technology and materials, as well as the interweaving and mutual enhancement between senses and senses, the display form and space design can give visitors a more shocking and real immersive experience, which can not only improve the satisfaction of visitors and partners, but also effectively disseminate the information of its display purpose and bring new development opportunities for its business.
項目信息
項目名稱: 歐思蘭化妝品展廳
設計公司: 平介設計
項目完成年份:2024
建築麵積:400㎡
項目地址: 中國浙江省湖州市吳興區湖州歐思蘭化妝品有限公司
攝影版權: 徐英達
設計團隊: 李筱葳,楊楠,常博文
委托方:湖州歐思蘭化妝品有限公司
網站: https://www.parallect-design.com/
聯絡郵箱: info@parallect-design.com
Information of the project: Osilan Cosmetic Exhibition Space
Year:2024
Area:400㎡
Site:Ousilan Cosmetics Co.,LTD., Wuxing District, Huzhou City , Zhejiang Province,China
Copyright of photography:Yingda Xu
Design team members:Xiaowei Li, Nan Yang, Bowen Chang
Website of the company:https://www.parallect-design.com
Email:Info@parallect-design.com

























