項目位於COSMO商業綜合體內,覆蓋商場的3F-5F,在4F公共戶外平台處以籃球場與財富中心住宅隔開,作為COSMO-INNERCO的設計延伸, 獨特的選址注定CO#NER不僅是個全時段供應餐食,小吃,飲品的餐飲空間,更是一個兼具社交屬性的多功能場所,甚至是增強鄰裏互動的社區活動中心。
CO是COSMO旗下的子品牌抬頭,也有合作的意思。CO#NER諧音CORNER,”# ” 這個符號象征空間裏被劃分的若幹小空間,由多種業態組合成的一個為大家提供社交、辦公、餐飲的城市角落。
Co#ner的售賣形式以模塊化的“檔口”為主,結合POP UP快閃店鋪,持續且多變的結構,旨在為顧客提供更豐富,更多樣的用餐體驗。“食堂“形式的座位,孩童繪畫的筆觸和手寫字混合排版的視覺係統,讓用餐的氛圍更輕鬆自在。
位於四樓的公共戶外平台是項目最特殊的元素。在改造的過程中我們多次與業主溝通,希望通過對原有平台的改造,緩和商場與住宅之間疏離緊張的狀態。將商場原有封閉的磚牆,替換為玻璃幕牆;內退部分商場空間作為戶外休息區域;翻新原老舊的籃球場。
∇ 項目區位
不僅擴大了公共空間的麵積,凸顯其公共屬性,同時讓戶外環境甚至戶外活動自然地融入到商場中去,讓商場與居民真正能夠互惠互融。
MOJO STUDIO盡可能地保留了原建築的結構,並將其梁柱裸露出來作為裝飾的一部分,自然粗糲的材料與施工過程中一些未完成的狀態共同來營造空間想要表達的鬆弛感,用不那麼“精致”甚至市井氣的表現來重構商場與顧客之間的心理距離,控製成本的同時,也讓吃飯,辦公的氛圍,變得更輕鬆愜意。
部分隔斷與海報都選用了快拆的形式,針對不同品牌的不同需求,靈活地改變空間的分割和活動氛圍。
CO#NER的導視設計是其空間設計的重要組成部分,其中黃色的指示牌與清晰的指示標識幫助顧客輕鬆地找到他們需要的設施或服務。
另一方麵貫穿整個空間的立麵導視裝飾,同樣利用孩童插畫與手寫字,充滿趣味性地使人們在使用導視係統時感受到輕鬆愉快的氛圍,同時也使空間設計與導視係統形成一個整體,增強了空間與品牌的整體感。
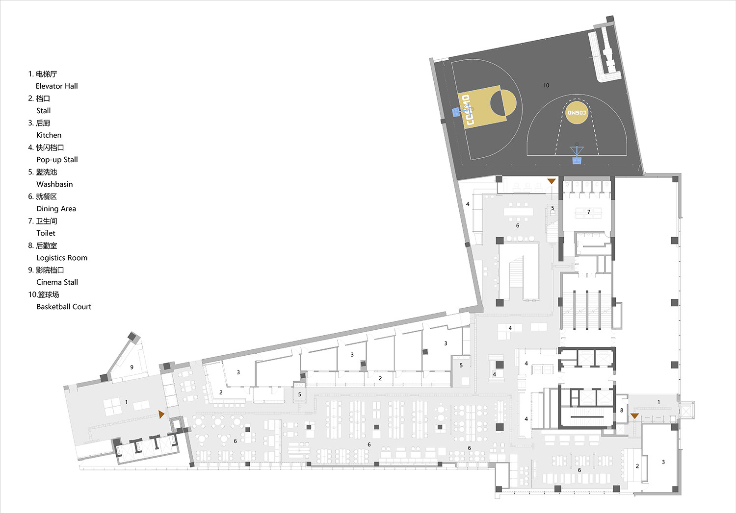
∇ 平麵圖
項目信息
項目地址: 成都錦江區錦興路68號COSMO
主創設計團隊: Mojo Wang | 邱天 | 卿輝豪
CAD設計: 王歡 | 熊銳 | 劉航
攝影: 形在建築空間攝影-賀川
項目麵積: 室內 – 1850 ㎡ | 室外 – 458 ㎡
項目時間: 2024








































