曾幾何時,我們的美學更多表達出“貴族”和“書卷氣”的口味。這可能是一種更安全、更具有形式感的空間意象,但卻使我們在其中的生活變得扁平和概念化。
在營建過程中,設計師易平一開始就決計反對一切人作的所謂 “氛圍東方”,轉而使用我們耳熟能詳的日常話語,創造出有體溫、能卸下生活的沉屙日常、非正式的社交空間,讓人感受到別樣的輕鬆、暢快。
出身和成長於川南地域的易平,對他影響至深的是川南場鎮的人來人往和市井的隨意和隨之而來的生活噪聲,這些日常生活的場景盡管有情感的溫度,但今天隨著時代的發展已經漸行漸遠,那種粗放、憨呆兼而有之的人情味卻如同磁石一般,在易平心中成為永恒的記憶。於是,設計師帶著這樣剝落、有噪點的記憶開始了“沏茶師“設計構思!
臨街茶鋪
首先,他設定了川南場鎮的臨街茶鋪作為“沏茶師”消費場景,這時,成都天空中少見的陽光傾灑進院落,成為空間的重要取光方式,仿夯土圍牆和沿街區形成的古舊、傾斜的屋簷形成豁口,規定光線以折射的方式進入室內。
走進麓湖“沏茶師”,恍如走進開敞的院落,夯土牆圍合成尺度適宜、又可越牆溝通的場所,牆與牆之間留有交通通道,它與麓湖島商業街區的喧囂結合在一起,形成當代的生活噪聲,動線生動、興味盎然,具有整體感。
體塊切割
設計師在屋簷下的中庭設計了一處步道樓梯,樓梯的形式簡單,以此回應了民間具有親切感的交通路徑,把室內一樓和二樓連接成一體,讓空間體量在整體的視線下變得豐滿而多姿,每個角落變成有節奏和控製的有機體,自然而不做作,節奏怡然。
在樓梯的切割下,呆板的現代建築空間被切割成不規則的體塊,但是氣息卻屬於整體空間所共享,設計師僅僅利用座位朝向關係,將關注焦點落在與其同來的人身上,空間的公眾與私密就此分開,設計師順勢將角落空間的活力激發出來,讓它成為具有安定感的角落空間,撫慰希望與社會相處的人的心靈。
落座姿態
沿樓梯和陽光拾級而上,進入二樓,這裏,設計師用一個“觀景平台”作為迂回空間,人們可以在此停歇觀賞麓湖島街區的人來人往,也可以到戶外簷上座位,在屋頂上曬太陽、360度觀看麓湖島的全貌。屋頂曬太陽,這本是川南人獨有的休閑、獲取冬日暖陽的方式,被設計師引用致“沏茶師”落座的姿態,不得不佩服設計師的想象力恣肆卻恰如其分。
這時,我們可以仔細查看腳下的坡形屋麵,這是自然起伏的室外簷頂,設計師用鋼架仿照自然的扭曲作為支撐,覆蓋上雲南大理地區常用的屋頂木板和木皮,它們源自民間的疊蓋簷口,具有極強的柔韌、防雨和抗曬性能,古舊的外觀更有民間的煙火氣。遠觀和近看,都與樓盤的現代感和科技化形成強烈的反差又具有奇妙的融合度,讓人對時光飛逝有一種莫名的憂傷,對未來有一種獨特的期盼。
室內氣韻
在二樓的室內,設計師用老茶鋪的標誌——老虎灶組織出整體動線,座位在空間中或聚合或分散,既使空間具有熱鬧、喧囂的氛圍,又保證作為社交空間私密性的需求,設計師在人的駐留與移動方式上破費周章,動線在不幹擾客人落座的前提下,靈活、曲折而貫通,保證了空間的趣味性和留住客人的氣韻。正因為如此,業主將這個項目命名為“沏茶師・遊園”。
任何一個空間,如果隻有懷舊而不會向未來看,必然會衰敗。因此,在麓湖島“沏茶師”的空間形態設置中,設計師融入進被年輕一代消費者熱捧的咖啡館、酒吧的元素和中式民間的陶藝……這一切在設計師手中被處理得自然而妥帖,毫無拚貼的痕跡。
這是一個值得稱道的設計。正如建築大師格倫・馬庫特說的那樣:“我們當然需要理解問題,但最首要的問題是要知道自己的位置,才能看見並找到最合適的方向——而不是最時髦的方向。”
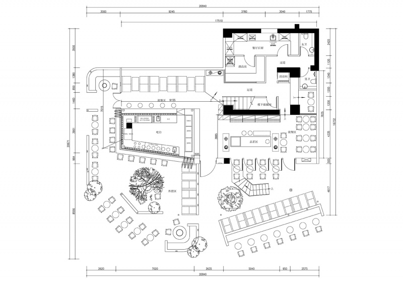
∇ 一層平麵
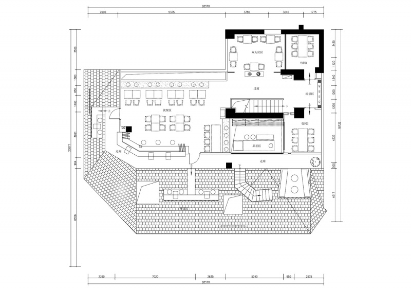
∇ 二層平麵
項目信息
項目名稱:沏茶師CHICHAS·遊園
項目類型:茶飲空間
主創設計:易平/易禾上品 張武/沏茶師
完成年份:2023
設計團隊:張裕楚、陳洪誌、劉東川、李顯龍
項目地址:成都市麓湖北街麓坊中心
建築麵積:280㎡
攝影版權:存在建築攝影
合作方:臥羊照明 張帆研物
客戶:沏茶師
材料:夯土、木瓦、塗料、金磚石
文案:張軼青













































