111 House項目源於房主創造一個多功能空間的願望。該空間將發揮多種功能,如休息室、用餐、與家人一起參加各種娛樂活動以及為朋友舉辦小型派對。老房子缺少一個可容納所有這些活動的區域,導致建造這一河濱館。
這所房子的一個亮點是它的黃金位置旁邊的一個大運河,周圍的土地仍然保持其花園般的質量。這是一個寧靜的環境,讓家庭遠離城市的喧囂,一整天都能看到河流的景色和體驗涼爽的微風。
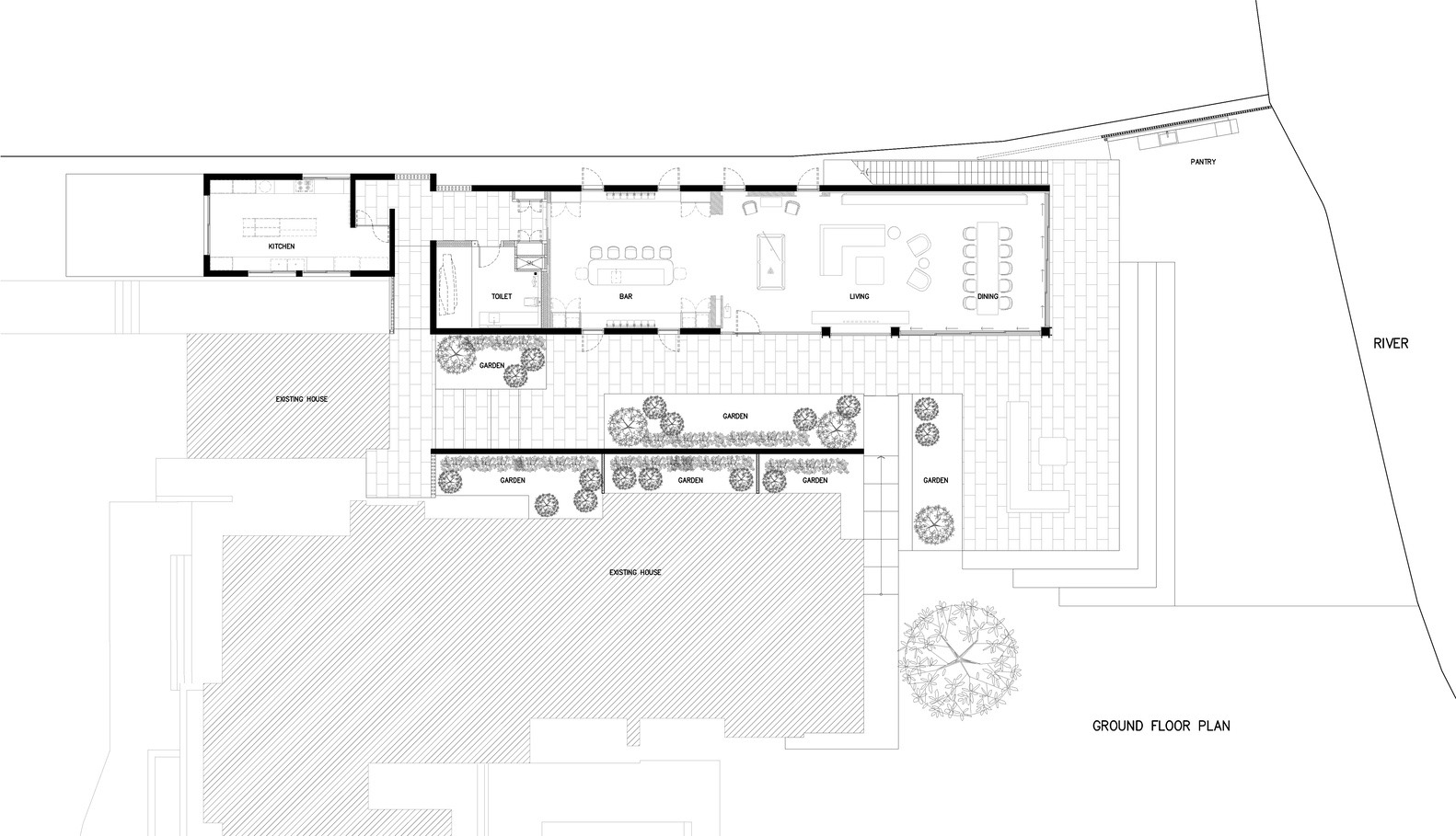
建築師提出了單層建築的設計理念,周圍有透明的玻璃牆,確保建築的每一個部分都能看到河流景觀。玻璃牆設計成滑動門,可以打開與室外河邊地區連接,使房主能夠無縫地在室內和室外空間之間切換,供各種用途,特別是在聚會期間。
建築強調一個簡單的設計,不會掩蓋花園和河邊環境的自然美。該設計優先考慮了來自外部和內部的視圖,以及別墅和河邊區域之間的功能連接。這兩個空間通過半室外區域連接,如人行道、新舊房屋之間的連接器和開放的河濱景觀。
與河邊平行的一個長樓梯連接著空間,在夜晚起著視覺向導的作用。河邊地區沒有圍欄,因為房主希望房屋、河邊空間和運河被集成,沒有明確的邊界,形成一個統一的整體。
∇ 平麵圖
版權聲明:本站所有文章除投稿授權發布外,其他文字內容均為原創,享有著作權保護,未經許可不得以任何形式進行轉載(包括且不限於:媒體、網站、公眾號等)。所有項目照片/設計圖形版權歸原作者所有。本站部分內容源自網絡公開資源或用戶分享,如若侵犯了原作者的合法權益,可聯係我們進行處理。


























