CASHHOOKED,一家嘻哈風格首飾服飾店,致力於打造城市生活中的街頭文化,為年輕人找到屬於自己的表達方式。這次CASHHOOKED與ZZARCH攜手在深圳市深業上城小鎮共同打造全新門店。深業上城內大膽的用色,無不彰顯著年輕多元的氣質。
CASHHOOKED, a hip-hop jewellery and apparel store, is dedicated to creating street culture in urban life and finding their own expression for young people. This time, CASHHOOKED and ZZARCH have joined hands to build a new store in Shenzhen UpperHills Town. The bold colors in UpperHills all show this young and diverse temperament.
∇ 深業上城地理位置表示
The geographical location of UpperHills is indicated ©ZZARCH
在外立麵設計上,我們選用了具有較強抗壓性和耐腐蝕性的鋁塑板材料,以確保建築外立麵的耐久性和穩定性。鋁塑板這種複合材料具有長久的使用壽命。我們選擇以黑色為主色調,以突顯CASHHOOKED品牌蘊含的嘻哈文化特征。
In the design of the façade, we selected aluminum-plastic panel materials with strong compression resistance and corrosion resistance to ensure the durability and stability of the building façade. Aluminum-plastic panels are composite materials that have a long service life. We chose black as the main color palette to highlight the hip-hop culture of the CASHHOOKED brand.
∇ CASHHOOKED外立麵 CASHHOOKED Facades ©張超
CASHHOOKED的位置位於十字路口處,人流量較大。所以我們設計了兩個窗口在此處。讓過往的路人都可以看到店內的首飾與服飾。
THE LOCATION OF CASHHOOKED IS LOCATED AT AN INTERSECTION WITH A HIGH FLOW OF PEOPLE. So we’ve designed two windows here. Passers-by can see the jewelry and apparel in the store.
∇ 街頭轉角處 At the corner of the street ©張超
∇ 窗口 Window ©張超
在內部展示設計中,考慮到CASHHOOKED擁有兩條產品線,分別是首飾和服飾。針對小型首飾如手飾、耳環和耳釘,為了讓消費者能夠近距離觀賞這些精美的藝術品,我們選擇了玻璃展示櫃來展示這些小飾品。而針對頸飾,我們采用了頸部展架,能最真實還原佩戴後的效果。
In the interior display design, it is considered that CASHHOOKED has two product lines, which are jewelry and apparel. For small jewellery such as hand accessories, earrings and studs, we chose a glass display case to display these small pieces of art in order to allow consumers to see these beautiful works of art up close. For the neck ornament, we used the neck display frame, which can most realistically restore the effect after wearing.
∇ ©張超
∇ 內部首飾展示 Interior jewelry display©張超
在服飾展示上我們定做了斜麵服飾展架,為了更好地凸顯品牌對於服裝上的設計。在旁邊我們使用了懸掛式服飾架,可以讓消費者直接進行選購。
In the clothing display, we customized the beveled clothing display rack, in order to better highlight the brand’s design on the clothing. Next to it, we use a hanging garment rack, which allows consumers to purchase directly.
∇ 內部服飾展示 Interior costume display©張超
∇ 軸測圖 axonometric drawing©ZZARCH
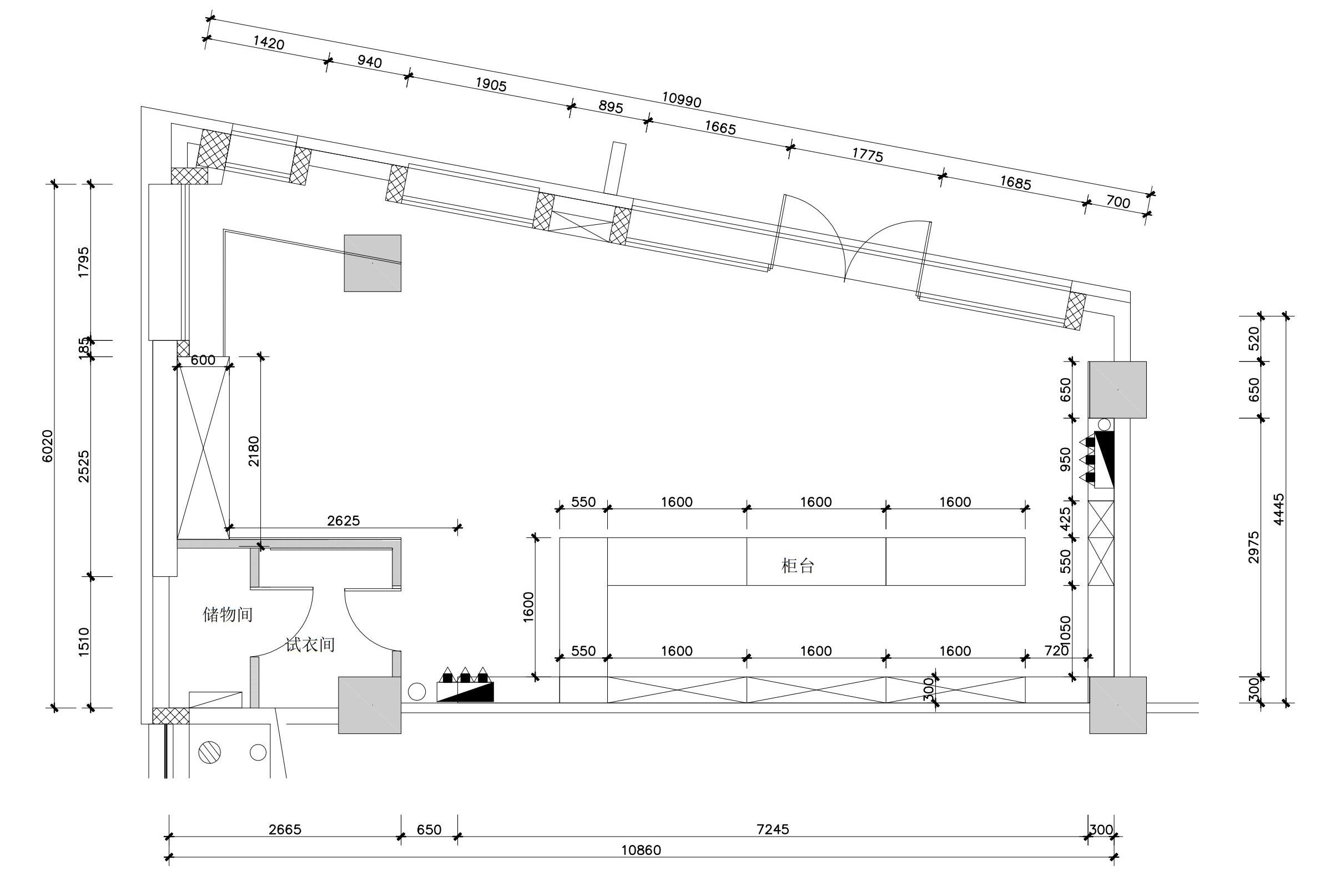
∇ 平麵圖 Plan©ZZARCH
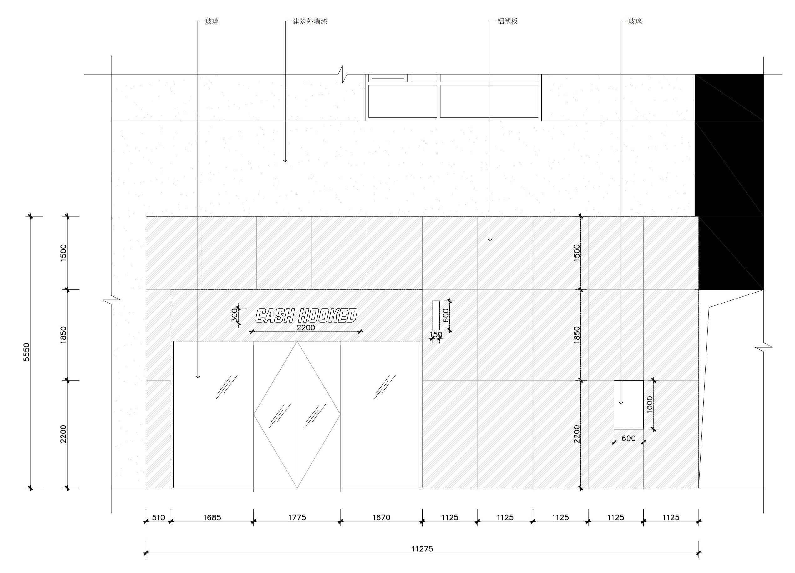
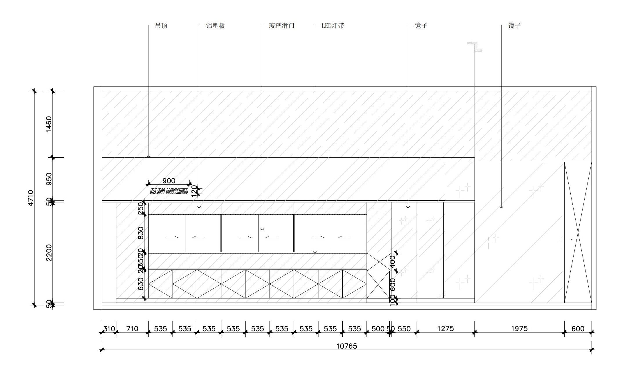
∇ 立麵圖 details©ZZARCH
項目信息
項目名稱: CASHHOOKED 深業上城店
品牌信息:CASHHOOKED
設計團隊:ZZARCH 自造設計
聯係信息:admin@zz-arch.com
微信公眾號:ZZARCH自造設計
項目地址: 中國深圳
項目時間: 2024
麵積: 60m²
項目攝影: 張超建築攝影工作室
Project Name: CASHHOOKED UpperHills Store
Brand information: CASHHOOKED
Design team: ZZARCH
Contact Information:admin@zz-arch.com
WeChat public account: ZZARCH
Project Address: Shenzhen, China
Project time: 2024
Area: 60m²
Project Photography: ZC Architectural Photography Studio
ZZARCH 自造設計
自造設計成立於2016年,由陳誠先生創立。自造設計立足於深圳,提供建築設計,室內設計,產品設計等服務,嚐試以建築視角窺探室內空間。以室內體驗反觀建築形態,以產品研究探尋三者之間的關係,建築的在地性,室內的體驗感,產品的趣味化是自造設計在每個項目中思考的核心內容。
Self-made Design was established in 2016 by Mr. Chen Cheng. Based in Shenzhen, self-made design provides architectural design, interior design, product design and other services, trying to peek into the interior space from an architectural perspective. Reflecting on the architectural form with indoor experience, exploring the relationship between the three with product research, the locality of the building, the sense of indoor experience, and the interest of the product are the core contents of self-made design in each project.




























