Dew House是一座擁抱自然元素、增強自然感的鄉村別墅。布局遵循標準的庭院住宅,但有一些額外的變化。住宅的設計旨在讓居民更接近自然元素,從而讓家庭成員彼此更親近。設計情懷讓人回想起傳統的泰國鄉村住宅,通過視覺、觸覺、嗅覺和聽覺的結合,親密地捕捉到一種地方感。標準的內向型庭院住宅的概念否認了建築及其所有者與周圍環境的任何關係。這所房子不僅尋求在社會層麵上與鄰居建立聯係,而且尋求在根本層麵上與自然元素建立聯係。
雙層通高的體量底部為玻璃,阻擋了從道路上直接看到臥室的視線。立麵調節室內視野,在一天中管理不同的隱私級別。立麵不僅充當視覺屏障,在關閉時還充當防盜欄,保護房屋免遭入室盜竊。設計了兩條通道來實現這兩種不同的功能。接待訪客時,需要通過順序通道進入房屋。進入順序之間的對比表明了精心安排的平衡,以便業主完全控製私人空間。客人的進入路線主要是戲劇性的,停留在外圍,可以一窺家庭生活。
與城市生活相反,在鄉村,隔離是常態,而住宅是同質社區的一部分。解決方案是讓社區能夠看到某些空間,並根據不同隱私級別的需求敏感地控製開口和立麵,並在整個過程中精心維護和控製,作為一種微妙的平衡行為。整體體量被分解成堆疊的體積,以減少其視覺衝擊,分為兩個主要區塊。場地後麵的臥室區塊被客廳遮擋。
核心庭院是一個雙層高的體量,屋頂上布滿了大小不一的圓形天窗,讓雨水和陽光可以落在樹葉和地麵上。庭院的設計不僅能起到封閉和防風雨的作用,而且有可控的開口,始終保持著聯係,這樣隨著一天的流逝,家人就可以通過這個庭院與外麵的天氣保持密切聯係。圓形天窗讓溫暖的早晨陽光照進來,在地板和牆壁上投下柔和的光影。早上隻要打開窗戶,就能聞到樹葉上新鮮的露珠的味道。
∇ 立麵圖
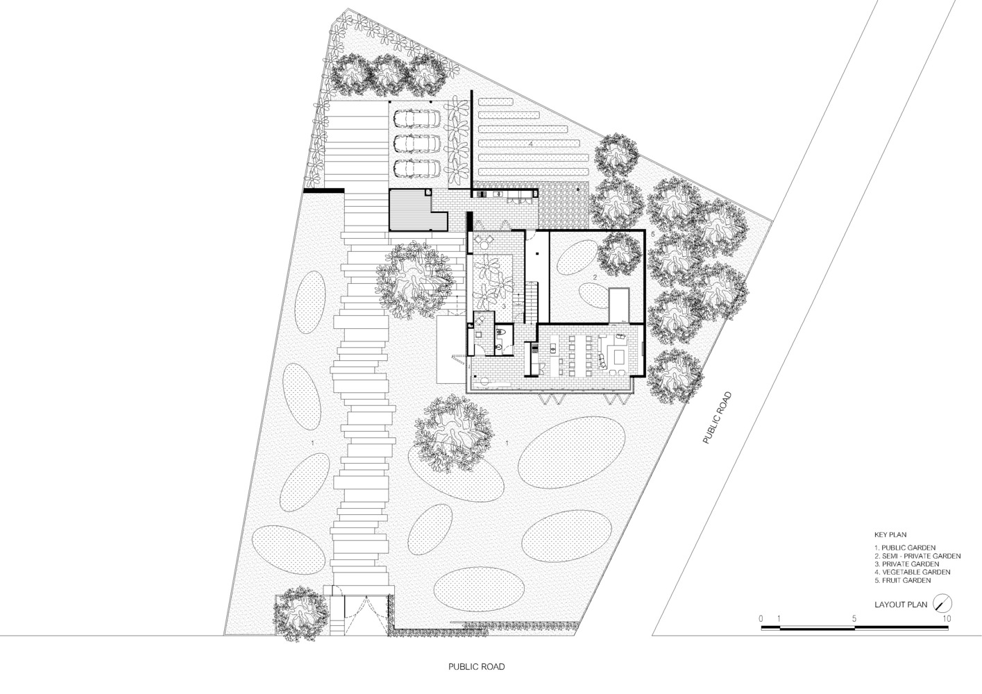
∇ 平麵圖
版權聲明:本站所有文章除投稿授權發布外,其他文字內容均為原創,享有著作權保護,未經許可不得以任何形式進行轉載(包括且不限於:媒體、網站、公眾號等)。所有項目照片/設計圖形版權歸原作者所有。本站部分內容源自網絡公開資源或用戶分享,如若侵犯了原作者的合法權益,可聯係我們進行處理。








































