前言
當城市化進程讓鄉村逐漸成為城市的另一種變體,鄉村失去了鄉愁,同時又未能獲得足夠的優勢與反哺。麵對日益加劇的農村人口老齡化、空心化等現象,如何通過設計重新激發鄉村活力並向城市人展現鄉間生活魅力,是近些年社會上熱議的話題。
實際上,隨著農村基礎設施建設日趨完善,且不再受製於物流不暢和信息不通,如今的鄉村有機會與城市互為補充,並連接成一體。當在城市打拚的年輕人想要額外購置住房就近贍養父母,並希望閑暇時能夠從繁忙的效率、指標、任務中抽離,感受大家庭的精神慰藉時,近郊便成為了最好的選擇。
不遠的未來,鄉村將具備流動、多元、互聯的特質,提供城市裏無法獲得的空間體驗和生活方式。新的鄉村能夠吸引新的鄉村人,並帶來新的社區形態。“母親住宅”項目正是在此契機下誕生的一個助力鄉村振興的獨立實驗樣本。建築師重構了鄉間現代家庭的生活場景,為房山西營村與北京城區建立新聯係提供了一份答案。
∇ “母親住宅”軸測爆炸圖
∇ 手工模型
走向鄉村新生活
一座帶庭院的獨立住宅,寄托了大量中國城市家庭對理想居住的憧憬。盡管今天高密度的城市環境已難以向居民提供獨屬的院落空間,在近郊廣袤的土地上卻依舊孕育著無限的可能性。
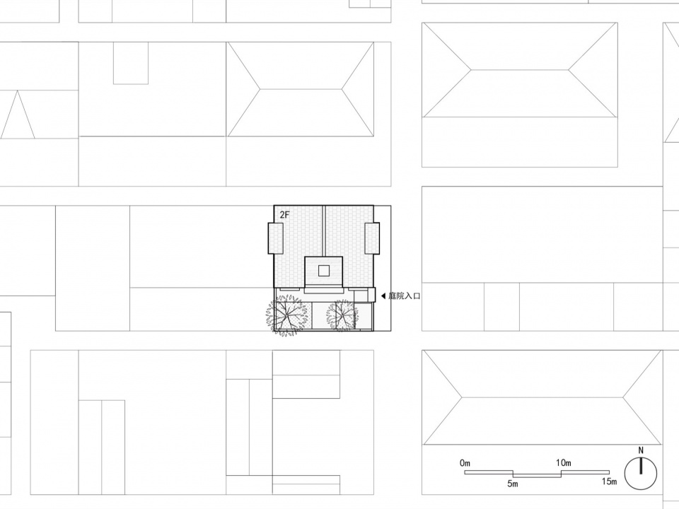
北京西南六環外坡峰嶺腳下,散落著成片的村莊,“母親住宅”所在的西營村就坐落其間。按照最初設想,這座院子是為退休老人設計的,到了周末也可以成為祖孫三代團聚的場所。為向撫育生命的母親致敬,特以“母親住宅”命名。
∇ 方格網街巷
村內房屋大多坐北朝南,每塊宅基地邊界相對規整,密集的農宅和方格型路網勾勒出縱橫交錯的街巷肌理。“母親住宅”主入口臨著基地東側的主街,南、北方向皆麵朝小巷,西側院牆與鄰居共用。身處實地,建築師開始在腦海中架構理想中的鄉村居住場景,思考什麼樣的建築能夠符合這一想象,以及未來這裏的生活又將發生什麼樣的改變……
內與外相生
住宅不僅僅是居住功能的載體,也是文化的一種延伸。住宅的“內”與“外”是中國傳統建築文化裏重要的一種關係,就像中國古代哲學中的“陰”與“陽”一樣彼此依存、互相促進、不可分離。“外”並不是“內”的附屬,兩者間是相互為用的關係,甚至設計“內”是為了實現“外”。“母親住宅”建築與庭院的占地比例接近1:1,通過凹凸的圖底關係,展現了兩者間的動態平衡。
∇ 空間生成示意圖
入戶門外簷下的灰空間正處於宅基地中央,是整個院落的視覺中心和象征家庭凝聚力的精神場域。這處灰空間讓居住者在一年四季裏的日常活動有了更多向室外延伸的可能性,夏夜可乘風納涼,冬日可在雪中圍爐煮茶,逢重要節日,全家人還能在此舉杯慶祝。
南立麵上,各主要房間的窗口如同取景器一樣將庭院之中的風景引入室內,淡化了“內”與“外”的界限。而內向的院落既是人與自然互動的場所,又能保護室內私密,就像一個超脫於外在喧囂的“內向宇宙”。
∇ 軸測圖
水平與垂直同構
在建築空間的整體設計上,建築師借鑒亞洲傳統空間智慧拓展並延伸了水平方向上的空間層次,同時圍繞通高的中庭創造出連續且豐富的室內豎向體驗。
∇ “母親住宅”剖透視圖
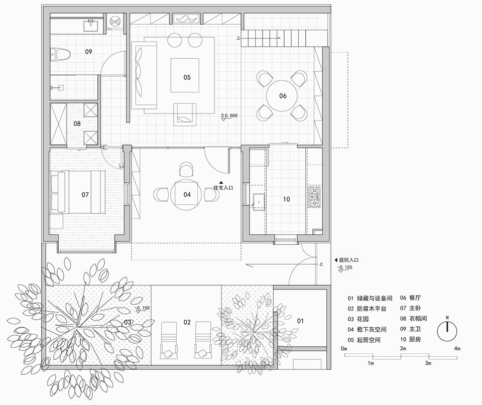
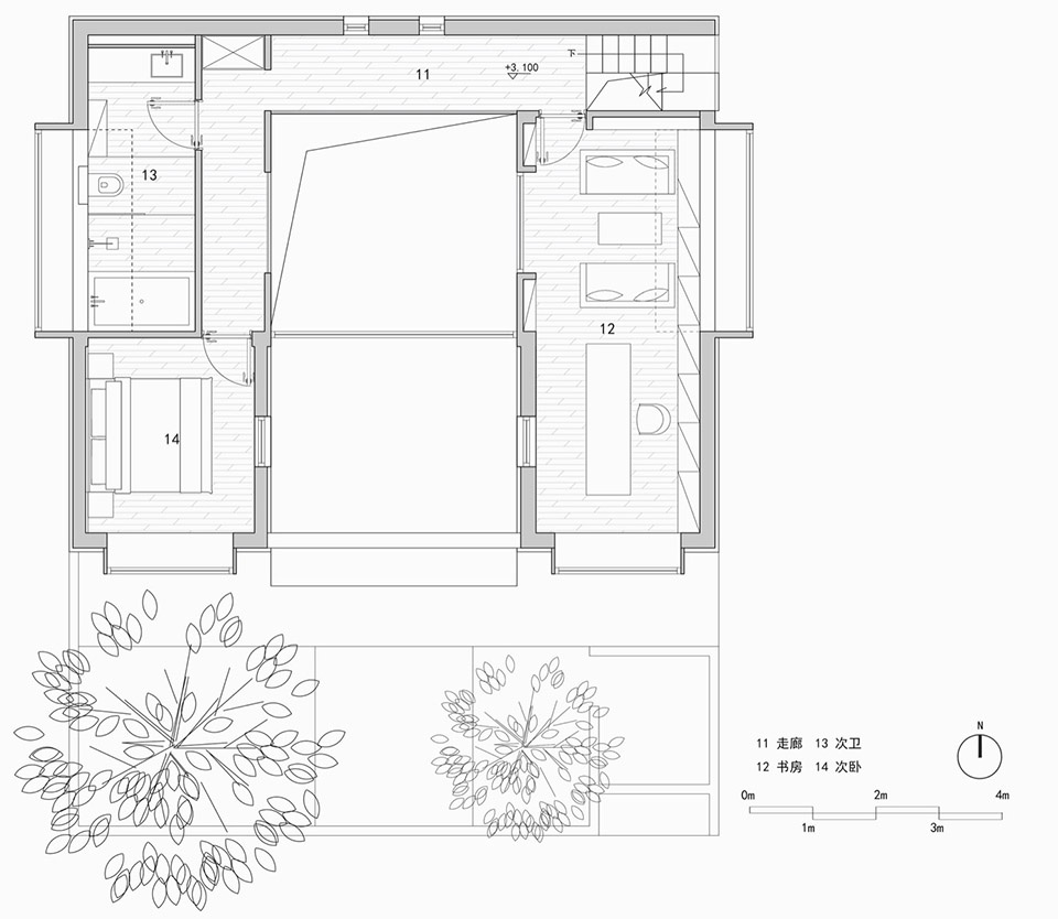
“母親之家”平麵布局由東向西分為三段。靠近主街的廚房及餐廳單元相對熱鬧,從廚房窗口可以隨時觀察到院子裏的情況。通高的中庭空間位於中段,作為起居活動區連接著各個房間。西側樓上、樓下各有一組臥室和衛生間單元,安靜並確保隱私。二層東側是一個書房,未來住戶也可以自定義使用場景,靈活置換成其他活動空間或者臥室。
由於是獻給母親的住宅,首層功能布置即可覆蓋老年人全部的日常生活需求,且室內外不設台階,高差全部用坡道解決,保障了高齡使用者的活動範圍。
設計還特意開放出圍繞中庭的豎向交通空間,不同角度的視線在不經意間產生交彙,使家庭成員的交流更為立體和富有趣味。此外,南立麵透明玻璃外牆最大程度延伸了空間縱深,人坐在中庭就能看到院子與天空。麵積100多平米的住宅既實現了功能的多樣性,又加深了家人的羈絆。
“V”字形屋頂與光線互動
出於對尺度和光線的雙重考量,“母親住宅”的屋頂呈“V”字形,屋脊壓低,東、西兩翼向外展開。反向坡屋頂的做法在保證二樓房間舒適度的同時,又避免了中庭過高而造成的尺度失衡和空間冗餘。從街道視角看,“V”字形屋頂勾勒出輕巧靈動的天際線輪廓,壓低的部分則為北側鄰宅盡可能留出視線和采光通道,避免了對鄰居的幹擾。
東、西山牆上的凸窗增加了立麵的層次和趣味,並連同中庭兩道隔牆上的高窗洞形成了“光的通道”。一天中隨時間推移而變化的光線沿天花板斜麵直達起居空間,讓整個住宅從早到晚的活動都充滿自然生機。
材質與色彩協調
建築室內外的主要材質色彩皆為大地色係,與鄉村環境融為一體。磚、石材、木材、金屬、織物以及塗料等各種材料,在明暗光線中交織出不同的溫度與質感,帶給人自然、質樸、溫馨、舒適的感受。
∇ 總平麵圖
∇ 首層平麵圖
∇ 二層平麵圖
項目信息
設計方:CPLUS
創始合夥人:程豔春、李楠
主持建築師:程豔春
設計團隊:薄忱、劉曉光、周珂帆
項目類型:住宅
項目狀態:已建成
時間:2023年04月-11月
地點:中國,北京
建築麵積:144.2平方米
攝影:劉晶、朱雨蒙













































