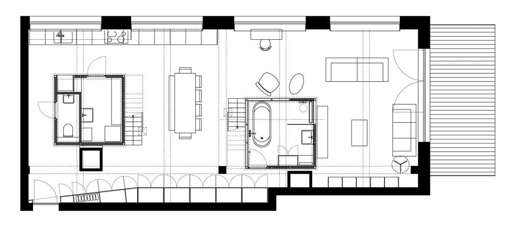
閣樓公寓位於布魯塞爾的一間舊工業建築內,由比利時著名設計工作室ADN Architectures設計。公寓麵積為90平米,室內為開放式布局,白色為主色調,整個公寓顯得極其幹淨和素雅。公寓被分為兩層空間,一層為客廳、廚房、餐廳、淋浴房、儲藏空間、衛生間等,二層為書房和臥室。
ADN Architectures工作室官方網站:ADN Architectures
Photos © Laurent Brandajs
Content Copyright © www.online4teile.com
版權聲明:本站所有文章除投稿授權發布外,其他文字內容均為原創,享有著作權保護,未經許可不得以任何形式進行轉載(包括且不限於:媒體、網站、公眾號等)。所有項目照片/設計圖形版權歸原作者所有。本站部分內容源自網絡公開資源或用戶分享,如若侵犯了原作者的合法權益,可聯係我們進行處理。




























