在長沙這座充滿活力的城市,快節奏的生活成為常態,人們在忙碌中愈發渴望鬆弛和寧靜。
In Changsha, a vibrant city, fast-paced life is the norm. People increasingly crave relaxation and peace in their busyness.
作為湖南最有人氣的烘焙品牌,羅森尼娜也在通過探索品牌的創新來應對新的消費趨勢。謎舍設計受到委托,負責操刀設計羅森尼娜最新策劃的概念店「羅森尼娜生活家NaNa」。
As the most popular bakery brand in Hunan, LSENna is also responding to new consumer trends by exploring brand innovation. Nazodesign was commissioned to design LSENna’s latest concept store ” NaNa”.
公園感 In the park
常規的羅森尼娜門店多聚焦麵包銷售效率,而羅森尼娜生活家則以 “慢” 為核心,將打造舒適愜意的休閑環境作為首要策略。我們圍繞這樣的定位提出了“公園感”的設計概念。
Regularly LSENna stores focus on the efficiency of bread sales, while NaNa is “slow life” as the core, and will create a comfortable leisure environment as the primary strategy. Based on this orientation, we proposed the design concept of “in the park”.
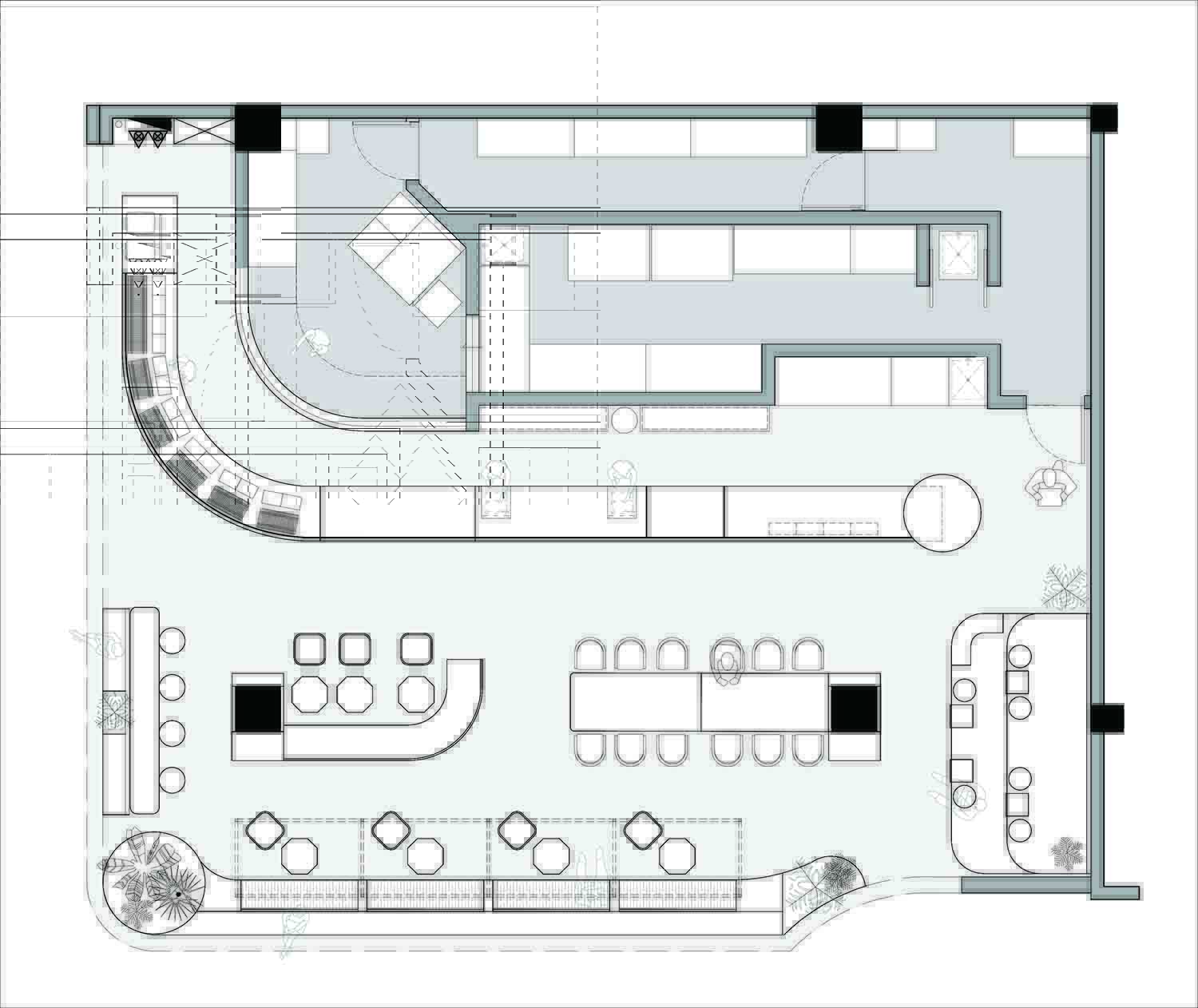
∇ 平麵圖
此處內容需要權限查看













