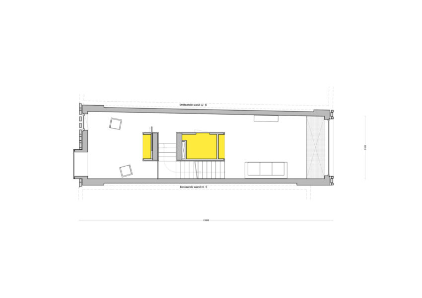
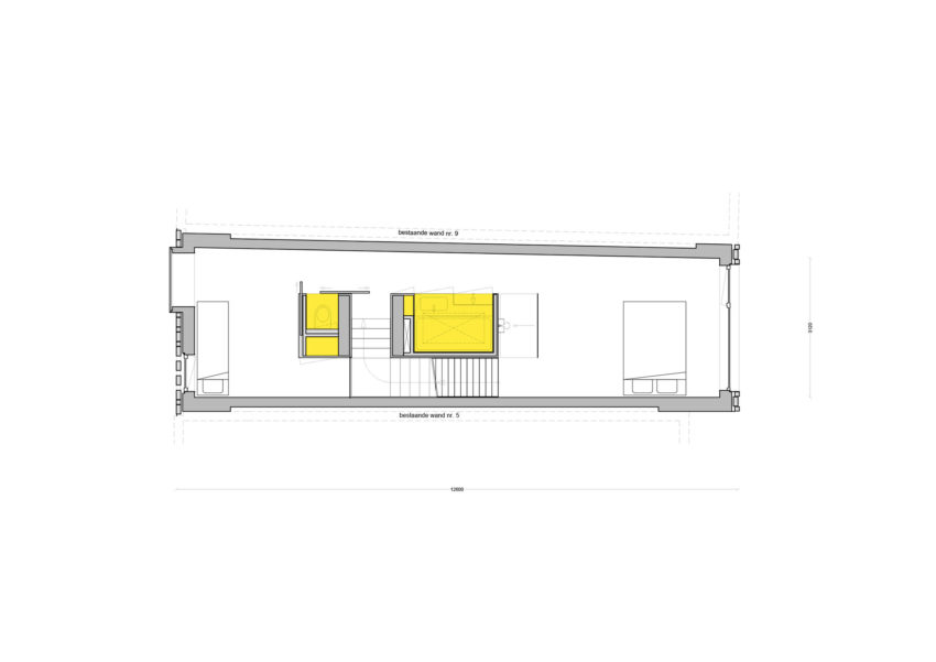
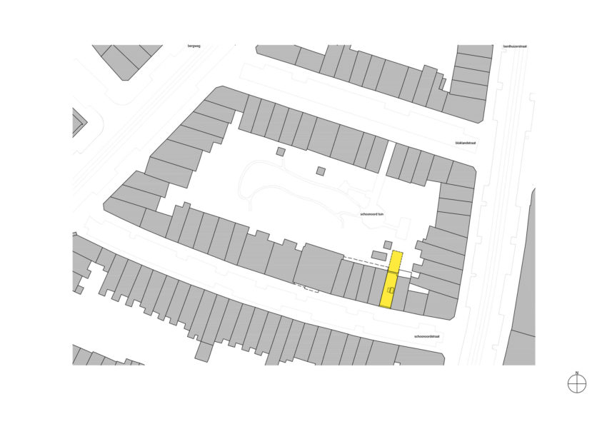
這棟美麗的黑磚建築位於荷蘭鹿特丹兩座公寓樓之間,於2016年由一對年輕建築師夫婦Gwendolyn Huisman和Marijn Boterman修複建造。雖然它有140平方米,但卻是3層樓的總和,每一層都是一個3.4×20米的狹長的長方形。他們最大限度地利用所有的空間,設法使其成為一個舒適的家。房間裏僅擺放少量的家具,是一個明智的決定。
陽光透過每層樓的大玻璃窗,使每個房間都充滿了自然光線。他們通過使用白色的牆壁和地板,來減輕狹長空間帶給人壓抑的感覺。生活空間的組織反映了他們全天的使用情況。一樓是一個寬敞的入口區和一個開放式廚房,通過高折疊門連接到花園。客廳和書房位於一樓樓梯上,主要在晚上使用,書房的深灣窗口延伸到街道,可以俯瞰鬱鬱蔥蔥的花園和公共街道。客廳的空間連接一樓和第一層的生活空間。網球吊床橫跨空間延伸,提供一個欣賞花園和天空的休閑地方。房子最私密的臥室和浴室,位於頂層,浴缸上方的天窗還可以看到飛過的鳥類和雲彩,並將自然的日光帶入房子的黑暗區域。
版權聲明:本站所有文章除投稿授權發布外,其他文字內容均為原創,享有著作權保護,未經許可不得以任何形式進行轉載(包括且不限於:媒體、網站、公眾號等)。所有項目照片/設計圖形版權歸原作者所有。本站部分內容源自網絡公開資源或用戶分享,如若侵犯了原作者的合法權益,可聯係我們進行處理。










































